Покрасочная камера для автомобилей — размеры, вентиляция, устройство и принцип работы
При строительстве даже небольших зданий встают вопросы об использовании материалов и технологий строительства. Производственные помещения последнее время все чаще строятся с использованием легких либо стальных тонкостенных (ЛСТК), либо металлических конструкций (ЛМК). Идею сборки окрасочно-сушильных камер для автомобилей из колонн, балок и ферм, выполненных в виде стальных профилей, можно назвать как продуктивной, так и крайне выгодной.
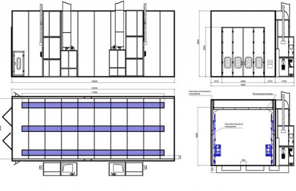
Внутреннее устройство
Автомобили окрашивают не только из эстетических соображений. Краска защищает металлические поверхности техники от коррозии. Без ее тонкой пленки, покрывающей как внутреннюю, так и внешнюю сторону, детали кузова быстро бы проржавели и пришли в негодность. Чтобы слой получился чистым, прочным и хорошо сцепился с металлом, покраску необходимо производить в закрытом помещении с определенным микроклиматом и оснащенным специальным оборудованием.
Поэтому помимо собственно каркаса и облицовки, операционная камера должна быть отделена от внешней среды герметичными панелями, иметь мощные системы вентиляции и обогрева, располагать инструментами, которые позволят быстро и четко выполнять работу персоналу.
Чтобы в помещение попадал свежий воздух, используются фильтры и нагнетающие вентиляторы. Для правильного движения приходящего потока вертикально сверху вниз, оборудование, работающее на вдув, ставят под потолком, а в подпольном пространстве организуют стек высасывающих помп. Вентиляционная техника обязательно снабжается регуляторами мощности, что позволяет создавать в покрасочной камере необходимое давление, обычно большее, чем снаружи для затруднения проникновения пыли.
Важнейшим является наличие нагревателей. Несмотря на появление низкотемпературных красок, сохраняется потребность в постоянстве температуры на протяжении отдельных стадий процесса. Такой стабильности без дизельных или газовых горелок, электронагревателей или паротеплообменников не добиться.
Для освещения подходят лампы, дающие спектр близкий к дневному – так удается правильно подобрать и нанести краску. Это особенно важно если производится декоративная дизайн покраска в рамках тюнинга. Количество источников света должно быть такое, чтобы поверхность автомобиля просматривалась без труда. Для защиты от краски лампы закрывают плафонами. Источники света, согласно наиболее популярной схеме, располагают с наклоном вдоль стен помещения под потолком и вертикально на уровне серединной лини транспортного средства.
Из инструмента, который должен присутствовать обязательно, можно отметить подъемники. Эти гидравлические или электрические устройства с различными видами приводов сильно облегчат труд, что непременно отразиться на результате в лучшую сторону.
В условиях массового производства используется конвейерная окраска автомобилей, о которой можно прочитать в отдельной статье.
Принцип работы
При правильной организации рабочего процесса на покраску и сушку в специализированном помещении уходит до двух часов времени, если не считать подготовительный этап.
А применение самой передовой техники ускоряет процесс в еще большей степени. Как бы то ни было, окраска автомобиля кропотливый труд, требующий внимательности и аккуратности. Поэтапно процесс выглядит так:
- создается дизайн-проект и подбираются подходящие краски;
- снимаются кузовные детали, препятствующие прямому распылению;
- поверхность автомобиля очищается от старой краски и ржавчины;
- металл покрывается грунтом и шпаклюется;
- послойно наносятся краска и лак;
- проводится просушка и полировка.
Механически снимать предыдущие слои краски лучше вне камеры. Иначе для удаления грязи и пыли придется делать генеральную уборку. Краска наносится краскопультом на корпус и, по отдельности, на демонтированные элементы, в труднодоступных местах – кистью вручную. Сушка проходит в камере.
Размеры
Габариты постройки из ЛСТК или ЛМК зависят от того планируется ли окрашивать легковой или грузовой транспорт. Для машин вплоть до микроавтобусов можно обойтись помещением 7х4х3 метров, а формфакторам: джип, седан, минивэн, купэ или хатчбэк подойдут и меньшие объемы.
Покрасочная камера для грузовых автомобилей имеет свои особенности.
Помещение будет более компактным, если вынести наружу под защитные кожухи и в дополнительные внешние отсеки вентиляционное и тепловое оборудование. Впрочем, для легковых авто стоимость сооружения будет совершенно невысока и на площади можно не экономить.
Установка и монтаж
Существует два метода возведения зданий из легких металлоконструкций. При первом – сборка происходит из готовых блоков, а во втором случае каркас из профиля устанавливается на месте и затем к нему крепятся фермы. Но в целом, оба варианта гарантируют минимальные сроки строительства, и предполагают схожие операции.
- Готовится площадка: зона застройки разравнивается, выделяется место, подвозится и выгружается стройматериал.
- Закладывается фундамент: либо заливается неглубокий ленточный, либо выкладывается из готовых бетонных блоков. Свайно-ростверковые или винтовые решения для небольших зданий используют редко.

- К фундаменту анкерами крепят колоны, к которым, в свою очередь – балки и фермы. Или, если строят из блоков, отдельные модули ставят прямо на фундамент, сразу формируя стены.
- Когда вертикальный периметр строения завершен приступают к обшивке. Если смотреть на формируемое перекрытие в торец и считать со стороны улицы слои будут располагаться так: профнастил, мембрана-пароизолятор, утеплитель, термопрокладка, профиль, финишная герметизирующая облицовка. При желании сделать фасад красивым, можно облицевать постройку и с внешней стороны.
- Кровлю организуют в виде обрешетки, крытой ветрогидроизоляцией и усиленной оцинковкой. Затем кладется утеплитель и кровельный материал.
Построенное здание из ЛСТК или ЛМК будет отличаться высокой прочностью и сможет прослужить десятилетия. Конструкция отличается высокой сейсмостойкостью и максимально пожаробезопасна. Кроме того, эксплуатация при правильно организованной теплоизоляции обещает минимальные теплопотери, а использованный материал экологически нейтрален.
При необходимости ничто не мешает быстро разобрать объект и возвести на новом месте, или даже повторно задействовать металлоконструкции в другом проекте.
Сравнительная таблица преимуществ использования легких стальных тонкостенных и легких металлоконструкций.
Использование ЛСТК | Сборка из ЛМК |
Монтаж с минимальным использованием спецтехники, но стоимость работ выше. | Профиль тяжелее и может понадобиться кран. |
Ферма доставляется в разобранном виде. | Блок чаще всего уже собран на заводе. |
Всегда присутствуют горизонтальные тяжи и распорки в фермах | В дополнительных элементах, увеличивающих прочность нет необходимости. |
Элементы конструкции тоньше, но шире, ребра жесткости занимают больше места. | Объем помещения получается больше, за счет повышенной компактности профилей. |
Колонны должны быть выше. | Колонны могут быть уменьшены |
Площадь ограждающих покрытий больше | Площадь стен, перегородок, кровли меньше |
Используется оцинкованный прокат | Применяются полимерные порошковые покрытия |
Срок эксплуатации до проведения первых ремонтных работ более 10 лет | В стандартных условиях конструкции без дополнительного окрашивания также прослужат более 10 лет |
В случае повреждения оцинковка восстанавливается только качественной циклонаполненной краской | Сколы и царапины прокрашиваются полимерной краской без труда |
Вес конструкций ниже, но количество конструкций необходимо больше | Обратная ситуация |
Конструкции не выдерживают пиковых высоких температур | Хорошая огнестойкость |
Нормативная база в России отсутствует, прохождение экспертизы для больших зданий (свыше 1,5 тыс. | В России есть вся необходимая документация и ГОСТы. |
Какой бы не была технология строительства, на этапе установки оборудования важно правильно подобрать климатическую и тепловую технику и обустроить согласно общепринятым нормативам. Немного подробнее об этих ключевых компонентах.
Вентиляция
Как уже говорилось выше, система забора и отвода воздуха покрасочной камеры для автомобилей состоит из двух частей. Отдел, работающий на вдув, оснащают такими вентиляторами:
- равномощными машинами, не создающими внутри избыточного давления;
- нагнетающими, создающими положительную разницу между давлением в помещении и снаружи.
Последний вариант предпочтительнее, так как исключает возможность проникновения пыли. На выдув работают вентиляторы высасывающие, они создают разряжение. Регулировкой мощности каждой из подсистем можно добиваться произвольных значений давления в покрасочной камере.
Согласно требованиям, климатическое оборудование должно быть достаточной мощности, чтобы обеспечивать 99 процентную степень очистки воздуха.
Фильтры применяют: ячейковые карманные, лабиринтные и кассетные. Потолочные – должны соответствовать классу очистки EU5 европейского стандарта DIN EN 779. Обычно используют – рулонные матовые, устанавливая в приточные воздухораздаточные панели. А напольные фильтры размещаются под напольной решеткой. К ним предъявляются менее жесткие требования – EU3. Этого достаточно чтобы не выпускать наружу краску. Также применяют и предварительные фильтры, увеличивающие степень очистки воздуха и продляющие срок эксплуатации основных фильтрующих элементов.
Температура в покрасочной камере
Тепловое оборудование стоит планировать мощностью от 20 до 1000 КВт. Типовая схема нагревательного контура выглядит так:
- теплообменник воздушный;
- вентиляторы;
- горелка и камера сгорания.
Пропорции энергопотребления следующие: до 400 КВт идет на работу генератора тепла, и примерно столько же забирают вентиляторы и теплообменник.
Горелки могут быть на природном газе, дизтопливе или отработанном масле. Расчет температурного режима делается по формуле:
воздушный поток в м3/ч х требуемая температура х 0,0003336 (коэффициент).
Для небольшой покрасочной камеры с габаритами 7 х 5 х 4 метра и потоком воздуха в 20 тысяч кубометров в час и максимальной температурой, свойственной работе с некоторыми видам красок в 80 °C, примерно понадобится количество тепла равное 533 КВт. Для низкотемпературных красок затраты будут еще меньшими – в районе 150 КВт. Отличные показатели для небольшого частного предприятия.
Покраска машины процесс трудоемкий и ответственный. Трудно представить реализацию бизнес-идеи без постройки быстровозводимых и малометаллоемких строений. Применение технологий ЛСТК или ЛМК – оптимальный вариант, запускающий целую цепочку экономически выгодных решений: от минимизации затрат при реализации проекта до малозатратной эксплуатации. При этом главным условием успеха является проработанный проект и его профессиональная реализация.
Как выбрать покрасочную камеру, рекомендации по выбору
Параметры хорошей окрасочно-сушильной камеры
Как выбрать покрасочную камеру? Для начала дадим определение понятию — «хорошая ОСК». Полностью автоматизированная окрасочно-сушильная камера высокого уровня, по всем параметрам соответствующая современным требованиям, — это камера, у которой параметры воздухообмена (скорость, равномерность, чистота воздуха) и температурные режимы окраски и сушки соответствуют требованиям производителей применяемых лакокрасочных материалов (именно они диктуют условия и тенденции развития конструкций).
Кроме того, хорошая камера обладает целым рядом конструктивных особенностей, обеспечивающих современный уровень экономичности, комфортности при проведении работ, а также простоту и большую периодичность проведения технического обслуживания ОСК, наряду с полной безопасностью в работе. А еще — способность на протяжении длительного времени поддерживать эти параметры.
Как выбрать покрасочную камеру
Дабы потом не сожалеть о переплаченных или недоплаченных (в убыток) суммах, необходимо сразу задуматься о «примерке», «прикидке» размеров и функций оборудования.
Рассмотрим cледующие:
Габариты и варианты установки
Пол
Потолок
Стеновые панели
Фильтры
Освещение
Габариты
Как и всякое «примерочное» мероприятие, подбор окрасочно-сушильной камеры начинается с обмера «собственных» габаритов. Именно они определят исходные данные для последующих решений и расчетов. Модель и тип камеры прямо и непосредственно зависят от планировки участка, где окрасочные работы будут производиться.
Внутренние габариты кабины — это важнейший параметр, на который необходимо обращать внимание. Именно он указывает на возможность (или не возможность) работы с максимально большим количеством автомобилей, которое определяется их размерами. Никто не станет приобретать несколько камер для работы с автомобилями, различными по габаритам.
Поэтому наибольшее распространение получили камеры, в которых можно окрашивать большинство легковых автомобилей с внутренними размерами 7000x4000x3000 мм. Такие размеры подходят как для «Таврии», так и для внедорожников, и микроавтобусов.
Но на универсальные габариты можно ориентироваться в случае, когда в цехе нет внешних ограничений. Здесь не лишним будет призадуматься над величиной проема въездных ворот. Например, широкий проем актуален, когда радиус въезда выезда минимальный, а перед воротами находится препятствие.
Есть и свои недостатки: широкий проем — это больше дверных створок, петель, запорных механизмов, а значит, возрастает вероятность проблем с ними, особенно при интенсивном использовании. Не спрятанные в теле ворот запорные механизмы могут исполнять роль нежелательных «пылесборников».
Варианты установки
Существует два варианта:
- Для установки на заранее подготовленное бетонное основание с устроенными в нем воздуховодами.
- На металлическом основании, которое позволяет устанавливать ОСК на ровной площадке, без устройства воздуховодов в полу.
Преимущественное число фирм, предлагающих ОСК, рекомендуют использовать металлическое основание только в исключительных случаях, когда невозможно устройство бетонного фундамента.
Необходимо точно оценить ситуацию и свои потребности. Ведь, обустройство бетонного фундамента оказывается дешевле, чем металлического основания. К тому же, бетонное основание более аэродинамически сбалансировано и удобно в эксплуатации.
Металлическое основание применяется в тех случаях, когда нет возможности установить бетонный фундамент (подвал, грунтовые воды и т.д.). В таком случае, высота металлического основания подбирается таким образом, чтобы обеспечить максимально возможные для нормальной работоспособности ОСК сечения подпольных воздуховодов при сохранении удобства при закатывании автомобилей.
Полы
Все полы различных производителей решетчатые. Так что, в первую очередь, нас интересует форма их исполнения, определяющая возможности и равномерность обдува автомобиля воздухом.
Существует четыре вида исполнения полов:
- однорядный;
- двухрядный;
- в виде овала;
- полностью решетчатый пол
Однорядные и двухрядные
Наиболее распространенные — однорядный и двухрядный.
У первого решетки расположены продольно в середине кабины, у второго — либо поколейно, либо рядом. Данные варианты относительно недороги и обеспечивают приличное качество обтекания воздухом автомобиля со всех сторон. Правда, придется смириться с некоторыми неудобствами — ежедневной и влажной уборкой, а также соблюдением чистоты вне решеток пола.
Пол в виде овала
Наиболее предпочтительней вариант в виде «овала» или, как еще называют в виде буквы «О». Автомобиль находится в границах овала и равномерно обдувается со всех сторон. Расчет в таких случаях делается на то, что пол не должен пропускать воздух по всей площади (как в варианте полностью решетчатого пола) или в «неэффективных» его частях (однорядный и двухрядный варианты), иначе он будет двигаться от потолочных фильтров к той стене, где будет расположена вытяжка, и автомобиль будет обдуваться воздухом неравномерно. Хотя с этим можно поспорить.
Полностью решетчатый пол
Полностью решетчатый пол «влетит в копеечку», т.
к. он дороже как в закупке, так и в эксплуатации. Количество фильтров, подлежащих замене, вдвое больше, чем у предыдущих вариантов, но, с другой стороны, наличие фильтров по всей площади пола позитивно сказывается на количестве пыли. Уборка пола становится ненужным мероприятием — фильтры задерживают практически всю пыль.
Стеновые панели
Поскольку ОСК работают в очень тяжелых условиях (избыточное давление и повышенная температура внутри кабины, сильная вибрация, большая нагрузка на пол, частое открывание и закрывание дверей и т. п.), не менее важны и другие конструктивные особенности, обеспечивающие не только удобство работы с камерой и простоту технического обслуживания, но и продлевающие срок ее службы.
Можно провести аналогию: если время жизни автомобиля определяется сроком службы его кузова, то и долговечность ОСК полностью зависит зависит от конструкции кабины. Корпуса всех кабин собирают из сэндвич-панелей, стыки между которыми полностью герметизируют, чтобы не допускать проникновения даже мельчайших пылинок через неплотности.
Срок службы самих сэндвич панелей определяется материалом теплоизоляции. Все панели приблизительно одинаковы по влиянию на качество окраски (прочность покрытия и отсутствие бликов) и возможностям теплоизоляции. По противопожарным свойствам панели с несгораемым мягким утеплителем лучше (и, соответственно, дороже), чем панели с полиуретаном.
В данном параметре самым важным является способ стыковки панелей между собой, а именно — площадь соприкосновения панелей друг с другом и надежность соединения. А споры о шаге панелей, преимуществах и недостатках каркасных и бескаркасных конструкций и прочее, зачастую беспочвенны. Эти особенности зависят только от выбора производителем той или иной конструктивной схемы. А последняя, в свою очередь, связана со степенью автоматизации производства и с угодным производителю размером раскроя листа.
Потолок
Конструкция потолка подчинена идее очистки поступающего воздуха, а также непосредственно влияет на процессы его фильтрации.
От конструкции потолка и качества потолочных фильтров зависит равномерность распределения воздушных масс по объему камеры. Если фильтр пропускает воздух неравномерно, то в кабине будут возникать зоны с разной пропускной способностью и скоростью движения воздуха. Потому, очень важной характеристикой потолочных фильтров является их способность равномерно пропускать воздух по поверхности.
В самой же конструкции потолка, при больших значениях воздухообмена, желательно присутствие рассекателей воздуха, предназначенных для превращения мощной и однородной струи от приточного устройства в рассеянную массу, равномерно заполняющую все пространство.
При этом, чем меньше рамок с фильтрами на потолке, тем меньше вероятность проникновения неочищенного воздуха, так как меньше количество стыков.
Жесткая конструкция фильтровальных рам должна обеспечить надежное крепление фильтровального материала, не позволяющее фильтру «переползать», даже когда рама открывается. И в то же время рамы должны быть выполнены так, чтобы фильтры можно было легко заменить.
Наилучшими конструкциями считаются те, где потолочный фильтр может заменить один человек. Это подразумевает, что в конструкции рам применены лифты и газовые пружины, которые позволяют плавно открывать их створки.
Вывод: площадь фильтрующего потолка должна быть максимальной, количество рамок — минимальным, наличие рассекателей — очень желательно, а замена фильтров с учетом очистки рамок производилась в течение полутора часов одним-двумя рабочими.
Фильтры в окрасочно-сушильной камере
Основные трудозатраты при техническом обслуживании ОСК приходятся на замену фильтров. Значит, чем дольше служат фильтры, тем лучше. ОСК снабжены двухступенчатой системой фильтрации воздуха.
Предварительные фильтры
Недорогие предварительные фильтры, которые обычно устанавливаются перед вентилятором, задерживают крупную и частично мелкую пыль. Чтобы эти фильтры служили дольше, их выполняют по возможности большей площади. Самой большой рабочей поверхностью обладают не плоские, а так называемые «карманные» фильтры.
Периодичность замены предварительных фильтров зависит не только от их площади, но и от места расположения станции технического обслуживания — рядом с пыльной дорогой менять их придется чаще.
Фильтры тонкой очистки
Воздух, прошедший предварительную очистку, окончательно очищается в фильтрах тонкой очистки, занимающих большую часть потолка кабины. Лучшие материалы для потолочных фильтров имеют пылеемкость до 430 г/мг — в 10 раз меньше, чем предварительные, они практически совсем не пропускают пыль к окрашиваемому автомобилю. Средняя периодичность замены потолочного фильтра, выполненного из хорошего фильтровального материала, может достигать 1500 часов работы ОСК, естественно, при исправном предварительном фильтре.
Фильтры «заградители краски»
Задача фильтров, монтируемых под решетками пола, — задержать частицы «перепыла», удаляемые потоком воздуха при проведении малярных работ. Эти фильтры так и называются — «заградители краски». Они способны поглотить до 3000 г/м2 частичек ЛКМ, но служат при этом до замены только 100-120 часов работы.
Чем выше их площадь, тем лучше: меньше сопротивление воздушному потоку и больше периодичность между заменами.
Датчики фильтров
Хорошая камера должна быть оснащена датчиками, показывающими степень загрязнения фильтров и снижение скорости воздушного потока до критической величины. Такие датчики позволят снизить вероятность появления дефектов при окраске и проводить техническое обслуживание ОСК в зависимости от фактического загрязнения фильтров, а не от усредненных, часто выданных «с запасом», норм.
Освещение
Следующей важной характеристикой ОСК является освещенность внутри кабины. Только «при хорошем свете» работать в камере удобно, а при недостатке освещенности качественная окраска может быть вообще невыполнима. Освещенность кабины должна быть не менее 1000 люкс. Больше — лучше, но это не единственное требование к свету.
В кабине, как в операционной, не должно быть теней, и окрашиваемый автомобиль необходимо равномерно осветить со всех сторон, чтобы даже в районе порогов освещенность была достаточна.
Эти задачи решают оптимальным расположением светильников внутри камеры.
Для стандартной 7-метровой кабины рекомендуется наличие 32 ламп, расположенных по 4 ряда в 8 панелях и под углом.
Одного верхнего ряда для «правильного» освещения недостаточно. Необходим еще нижний ряд и светильники в торцах кабины. Самый «качественный» свет получается, если верхний ряд светильников наклонен внутрь камеры под углом 22°. Такое размещение светильников является еще одним признаком качественной ОСК.
Боковой вертикальный свет (когда светильники расположены вертикально в панелях) дает равномерное рассеивание, но может «подслепить» маляра, работающего с противоположной стороны автомобиля.
Хотите узнать больше о том как выбрать покрасочную камеру? Позвоните нашим специалистам.
Оставьте заявку
Интересующее оборудование или услуги*Покрасочные камерыПромышленные краскиДробеструйные камеры
Павел Гриценко
← Запущена двухзонная окрасочно-сушильная камера ПАО «Днепрполимермаш»
Покрасочная камера для СТО «Пегас» →
Мини камера для покраски — Авто Брянск
Содержание
- 0.
1 Камера для окраски мелких деталей Эксперт ПО Микро 900К с сухой фильтрацией. - 1 Необходимое для постройки покрасочной камеры
- 2 Процесс постройки покрасочной камеры
- 3 Результаты сборки покрасочной камеры
Компактная покрасочная камера для автомобилей
Высокие скорости, неожиданные маневры и стремительные развороты – вот отличительные признаки современного городского автомобильного трафика. Все это, безусловно, хорошо, однако в плотном машинном водовороте очень часто происходят досадные инциденты, в результате которых красивые автомобили превращаются в поцарапанные и неприглядные жестянки.
Не секрет, что автомобильный парк увеличивается с каждым годом. Вместе с этим становится больше и автолюбителей, вынужденных обращаться в колерово-покрасочные автомастерские. На этом фоне покупка окрасочной камеры для покраски автомобилей — очень выгодное бизнес — решение, ведь постоянный приток клиентов сможет обеспечить стабильный доход в течение многих лет.
Для того чтобы пострадавший железный конь вновь обрел былую красоту его необходимо отрихтовать, обработать и, разумеется, покрасить. Покраска осуществляется в специальной герметичной покрасочной камере, хорошо защищенной от вездесущей пыли. Современная заводская покрасочная камера – это сложная и довольно дорогая конструкция (цена более 15 тысяч евро!), увидеть которую не всегда можно даже в арсенале продвинутых автомастерских.
Мы предлагаем проводить покраску при помощи недорогой окрасочной камеры, специально изготовленной с учетом всех требований, в которой можно качественно окрасить практически любую деталь автомобиля.
Покрасочная камера: характеристики
Наша покрасочная камера представляет собой металлический сборно-разборный каркас, обтянутый пленкой. Одна из боковых сторон (необходимую указывает заказчик) снабжается пластиковой дверью. Вентиляция покрасочных камер с потолочными фильтрами двухмоторная. Второй электродвигатель устанавливается в нижней части камеры.
Обогрев покрасочной камеры осуществляется за счет экономичного нагревательного элемента мощностью всего 10-12 кВт, который обеспечивает качественную полимеризацию краски.
Освещается малярная камера яркими люминесцентными лампами. Размер покрасочной камеры при внутренней высоте 2,1 м (с учетом вентиляционного короба) может быть: 2×3; 3×4; 5×2 и т.д. Общая площадь камеры — от 6 м² до 12 м². Необходимые размеры согласовываются с заказчиком в процессе взаимодействия. Кроме того окрасочная камера снабжается удобным пультом управления, с помощью которого можно регулировать уровень вентиляции, освещения и обогрева.
Покрасочная камера: принцип работы
Предположим, что все окрашиваемые поверхности автомобиля уже обработаны и подготовлены к покраске. Далее автомобиль подготовленной стороной подгоняется вплотную к пленочной стенке камеры. Затем по контуру окрашиваемой поверхности в
пленке проделывается отверстие, края которого надежно фиксируются скотчем по периметру обрабатываемой детали.
При этом сама деталь остается внутри малярной камеры. После этого включается вентиляция и воздух, проходя сквозь фильтры, очищается от пыли.
Камера для окраски мелких деталей Эксперт ПО Микро 900К с сухой фильтрацией.
Габарит
Глубина*Ширина*Высота, мм
450*980*1800.
Грубина рабочей полки 390 мм.
Окрасочная камера Эксперт ПО Микро 900К представляет собой локальное аспирационное устройство, оснащенное вентилятором и специальным краскоулавливающим фильтром, защищающим от краски окружающую среду, вентилятор, воздуховоды.
В данной модели используется современный картонный инерционный фильтр, работающий по принципу мультициклона. Главными достоинствами такого фильтра является его способность удерживать в себе большое количество окрасочного аэрозоля (пылеемкость), а также чрезвычайно стабильно низкое сопротивление в процессе эксплуатации.
Опционно может быть установлен дополнительный стекловолоконный фильтр для доочистки воздуха, увеличивающий совокупную эффективность очистки от краски до 99%.
Окрасочные камеры с сухой фильтрацией имеют ряд преимуществ по сравнению с водяной завесой:
1. Качество очистки воздуха доходит до 99% без применения громоздких каплеуловителей и коалесцирующих фильтров. Минимальный вред окружающей среде, минимум проблем с арендодателем, экологическими службами.
2. Стабильная работа, отсутствие необходимости тонкой настройки и постоянного обслуживания системы распыления и циркуляции воды.
3. Легкая утилизация ЛКП и фильтров. Картонные фильтры можно сжигать вместе с краской, либо вместе со стекловолоконными фильтрами утилизировать как ТБО. Нет необходимости обезвоживания шлама, покупки для этого специального оборудования и химических добавок.
4. Окрасочную камеру можно оснастить блоком угольных фильтров, что при эпизодическом режиме работы может заменить дорогостоящую приточную вентиляционную установку.
Основная проблема при самостоятельной домашней покраске, кроме врожденных дефектов верхних конечностей (они же руки), — огромное количество пыли, которую очень сложно устранить в жилом, или техническом помещении. Единственным эффективным решением данной проблемы является выделение отдельного пространства специально под покрасочные работы — постройка покрасочной камеры. Покрасочная камера эффективно решает проблемы запыленности помещений во время покраски.
Плюсы:
Относительная герметичность камеры предотвращает попадание пыли из вне
Отсутствие в камере всяческих «пылесборников» (ткань, ковры, мягкая мебель)
Изоляция от сквозняков и других потоков воздуха, которые переносят пыль
Относительная легкость внутренней очистки от пыли и уборки в целом
Избавление от возможности запачкать краской что либо лишнее
Покрасочную камеру можно разместить в любом удобном для вас месте: в подвале, в кладовке, в гараже, на чердаке или техническом этаже городской многоэтажки.
Постройка покрасочной камеры не требует каких-либо специальных знаний или инструментов — ее создание по плечу большинству людей. Любительская покрасочная камера по сути дела является отгороженным от остального помещения пространством. Чаще всего она состоит из каркаса и обшивки. Каркас зачастую делают из дерева, или металла (как металл, часто используют алюминиевый профиль) потому, что с этими материалами легко работать и их можно приобрести в любом строительном магазине. А обшивку просто сделать из фанеры, пластика, или полиэтиленовой пленки.
Для своей покрасочной камеры мы решили сделать каркас из дерева, а обшивку из полиэтиленовой пленки. Большая часть дерева для каркаса у нас уже была — осталось от предыдущих работ по дереву, а купить нам пришлось совсем немного. Полиэтиленовая пленка так же уже была в наличии.
Необходимое для постройки покрасочной камеры
Вот список всего, что нам понадобилось для постройки:
- Деревянные доски (много)
- Полиэтиленовая пленка (в нашем случае около 20 кв.
м)- Молоток
- Пилка по дереву
- Огромное количество гвоздей разных размеров
- Промышленный скрепер
- Канцелярское лезвие
- Широкий скотч
- Измерительная рулетка
- Маркер
- Прямые руки и много свободного времени
Процесс постройки покрасочной камеры
Мы решили, что наша камера будет 2 метра в высоту, 1.5 метра в глубину и 1.8 метра в ширину — вполне достаточный внутренний объем для моддерских нужд. Проверив наличие всего необходимого мы приступили к постройке. У нас было огромное количество досок не совсем подходящей по длине. Используя маркер и рулетку, мы их разметили, а потом при помощи пилы порезали.
С помощью молотка и гвоздей сбили из, полученных после распилки, кусков 4 доски длинной 1.8 метра (будут отвечать за ширину камеры) и 4 доски длинной 1.5 метра (будут отвечать за глубину камеры). От 4-х купленных досок 2.2 метра мы отрезали по 20 см для получения планок, которые будут отвечать за высоту покрасочной камеры.
После того, как все доски были готовы, мы приступили к сборке несущего каркаса покрасочной камеры. Из двух досок длиной 1.8 метра и двух досок двух 1.5 метра мы соорудили основание.
После этого мы установили 4 вертикальные балки длинной по 2 метра и собрали поверх вертикальных балок такую же конструкцию, как и снизу.
Завершив сборку каркаса, мы принялись прикреплять обшивку. Так как она у нас из полиэтиленовой пленки, то все просто: вырезаем канцелярским лезвием куски нужного размера (используем маркер и рулетку для разметки пленки) и прикрепляем куски к деревянному основанию с помощью промышленного скрепера.
Для удобства первым делом крепим верхнюю часть обшивки, при этом желательно, чтобы она была хорошо натянута и не провисала. Далее устанавливаем «пол». В отличие от «потолка» его ненужно натягивать, иначе при эксплуатации (ходьбе по нему) он прорвется. После этого по одной устанавливаем все «стены». Когда все «стены» установлены, пора делать вход в нашу покрасочную камеру.
Вход делается достаточно просто: в одной из «стен» канцелярским лезвием делаем разрез в форме перевернутой сверху-вниз буквы «П».
Результаты сборки покрасочной камеры
Для дополнительной защиты от попадания пыли извне можно установить своеобразный «бортик»: берем кусок полиэтилена шириной со стенку, в которой у вас вход, и высотой примерно в 30 см, и крепим этот кусок изнутри камеры в нижней части. Для той же цели, что и «бортик» можно установить второй лист полиэтиленовой пленки (шире, чем шторка входа), свисающий над входом — такая «двойная защита» лучше справиться с пылеизоляцией. И напоследок, все швы и стыки, кроме входа, разумеется, герметизируем широким скотчем. Желательно с обеих сторон. После этого можно провести легкую влажную уборку внутри камеры, дабы убрать всю появившуюся при сборке пыль. Воспользовавшись такой любительской покрасочной камерой, вы сможете довести качество покраски до профессионального уровня.
Испытав камеру на практике (покрасив пару деталей), мы выявили как сильные, так и слабые ее стороны.
Очень порадовало отсутствие дефектов на покрашенных деталях. Правда находиться в такой камере затруднительно даже в респираторе — концентрация паров аэрозольной краски просто запредельная. Дышать без респиратора могут разве что матерые токсикоманы.
Мы предполагали, что выявим негативные моменты эксплуатации камеры поэтому советуем вам снабдить свою камеру вытяжкой и хорошим освещением.
Руководство по размерам покрасочной камеры – Информация о размерах и размерах
Если вы работаете в автомастерской, вам понадобится покрасочная камера. Покрасочные камеры необходимы для повышения производительности автомагазина. Закрытая конструкция позволяет быстро производить и окрашивать различные транспортные средства и детали в контролируемой среде с превосходным освещением и потоком воздуха. Эти преимущества улучшают качество и время высыхания проектов и обеспечивают наилучшую возможную покраску.
Покрасочные камеры также имеют решающее значение для безопасности сотрудников автомастерской, поскольку постоянный поток воздуха предотвращает накопление химикатов из красок и растворителей и снижает опасность возгорания.
Когда дело доходит до выбора подходящей покрасочной камеры для автомастерской, необходимо учитывать множество факторов. Одним из наиболее важных является определение размеров покрасочной камеры. Оптимальный размер вашей покрасочной камеры будет определяться размером вашего цеха, требуемой производительностью и размером транспортных средств, которые вы будете перекрашивать в целом, помимо нескольких других факторов. Размеры особенно важны в этой области, поскольку речь идет о безопасности и производительности, а также об оптимальном воздушном потоке.
Типичное использование
Покрасочные камеры являются важным элементом любой автомастерской. Они, как правило, помогают сделать покраску и ремонт автомобилей и деталей быстрее, проще и дают лучшие результаты окраски благодаря полезному освещению, контролируемой среде, свободной от взвешенных в воздухе частиц, которые могут помешать чистой отделке, и помогают ускорить время отверждения. Постановлениями штата и федеральными нормами обычно требуется надлежащим образом вентилируемая покрасочная камера.
Покрасочные камеры также пригодятся домашним механикам и могут быть довольно простыми в установке.
Типы покрасочных камер
Тип системы вентиляции, которую будет использовать ваша покрасочная камера, также является важным фактором, который следует учитывать. В покрасочной камере с поперечной тягой воздух поступает спереди и выпускается сзади. Как правило, они менее дороги в установке, но если вы хотите добиться сверхчистой отделки, вам, вероятно, потребуется включить блок подпитки воздуха. Для этого потребуется модернизация покрасочной камеры с нисходящим потоком. Это напоминает нисходящий поток воздуха и предотвращает избыточное распыление при покраске нескольких автомобилей.
Покрасочные камеры с нисходящим потоком обеспечивают наилучшую отделку, когда речь идет о покраске нескольких предметов одновременно, так как воздух фильтруется сверху вниз и отводится от того, что окрашивается. Как правило, они немного дороже в установке, так как потребуются бетонные работы для размещения вентиляционной системы в полу, но цена может быть вполне оправдана для достижения высококачественной отделки.
Покрасочные камеры с нисходящим потоком также, как правило, не так эффективно работают с очень большими транспортными средствами, так как сложно сориентировать ваш проект по воздушному потоку, поскольку он проходит по ширине и высоте здания.
Размеры покрасочных камер
Покрасочные камеры бывают самых разных размеров, чтобы соответствовать любому типу транспортных средств и различным уровням производительности цеха. Вы можете купить/собрать покрасочные камеры, специально предназначенные для покраски мотоциклов или небольших транспортных средств, или для более крупных проектов до полуразмера, в зависимости от потребностей вашего магазина. Размеры варьируются от покрасочных камер для мотоциклов с размерами 8 футов в x 10 футов x 12 футов 8 дюймов в ширину до камер длиной 45 футов, в которых можно разместить полуприцеп.
Best General Auto Shop Размер покрасочной камеры
Если вы ищете общий размер, который подходит для большинства транспортных средств, от автомобилей, грузовиков, внедорожников и мотоциклов, покрасочная камера размером примерно 14 x 24 фута и 10 футов в высоту или что-то подобное подойдет.
Этот размер хорош для большинства стандартных мастерских по ремонту после столкновений, так как он достаточно велик, чтобы обеспечить свободу передвижения и достаточно места для рисования со всех сторон ваших объектов, а также ошибки на стороне немного большего размера.
Лучший размер покрасочной камеры для домашних механиков
Домашние механики, вероятно, захотят выбрать что-то немного меньшее, но это будет зависеть от уровня вашей производительности. 15 на 8 футов с 10-футовым потолком — отличное место для старта домашнего механика. Как всегда, убедитесь, что ваша покрасочная камера имеет надлежащую вентиляцию и освещение.
Советы по выбору размеров и габаритов покрасочной камеры
Помимо повышения производительности, безопасности сотрудников и простоты использования, вам необходимо убедиться, что ваша покрасочная камера была проверена, а система вентиляции соответствует местным нормам и требованиям безопасности. Это также будет очень полезно для получения разрешения (вам НУЖНО это сделать) для его установки.
Вы захотите определить общий размер и объем предметов, которые вы будете красить, и использовать эти оценки, а также размер вашей мастерской, место, которое вы выделили для покрасочной камеры, и несколько других вещей, когда речь идет о правильном выборе размера вашей покрасочной камеры.
- Расположение и размер окрашиваемых объектов также должны влиять на выбор размера покрасочной камеры. Идеальное размещение в самой покрасочной камере, в зависимости от типа, важно для надлежащего воздушного потока, уменьшения впуска/выпуска выхлопных газов, короткого времени отверждения и хорошего освещения. Например, в кабине с поперечной тягой вам нужно минимизировать ширину и высоту окрашиваемого предмета, чтобы получить оптимальный поток воздуха, разместив его вдоль. В покрасочной камере с нисходящим потоком это не приведет к резкому сокращению впуска или выпуска выхлопных газов, и это не должно учитываться.
- Как правило, вы должны убедиться, что есть не менее 3 футов доступа со всех сторон автомобилей или частей, которые окрашиваются, когда они все время находятся внутри покрасочной камеры.
Это позволяет вашим сотрудникам свободно перемещаться для оптимального производства и более высокого качества отделки, поскольку поток краски не будет затруднен или уменьшен из-за более тесных помещений. Так, например, если вы будете красить автомобили длиной не более 45 футов, вам понадобится камера глубиной не менее 52 футов. - Размер вашего автомагазина также поможет определить размер вашей покрасочной камеры. Чтобы соответствовать федеральным нормам, вам необходимо убедиться, что по внешнему периметру покрасочной камеры со всех сторон есть свободное пространство не менее 3 футов. Это обеспечивает доступ для обслуживания и предотвращает возникновение пожара и угроз безопасности.
- Опять же, если ваша покрасочная камера слишком мала, это будет препятствовать надлежащему потоку воздуха и ограничивать доступ ваших сотрудников к окрашиваемым предметам. При выборе покрасочной камеры, как правило, лучше ошибиться в сторону того, что она будет немного больше.
- Правильное размещение для покраски одного объекта или нескольких объектов также зависит от размеров вашей покрасочной камеры и типа покрасочной камеры.
Например, при использовании кабины для поперечной тяги лучше НЕ размещать каждый окрашиваемый объект в линию, так как избыточное распыление с первого объекта повлияет на финишную отделку следующего и так далее. Этого можно избежать, покрасив несколько объектов перед входным вытяжным вентилятором. - На правильный поток воздуха и вентиляцию влияет размер покрасочной камеры. Чем больше наружное отверстие покрасочной камеры с поперечной тягой или площадь нисходящей тяги, тем больше воздуха покрасочная камера будет удалять из здания. Надлежащее удаление воздуха важно для того, чтобы ваша покрасочная камера прошла проверку, но с более крупными вытяжными вентиляторами, которые удаляют значительно больше воздуха, чем в покрасочных камерах меньшего и среднего размера, вам необходимо заменить воздух с помощью блока подпитки воздуха. Когда в камеру нагнетается больше воздуха, чем высасывается, это создает положительное давление воздуха (а не отрицательное) и помогает сократить время избыточного распыления и высыхания, а также обеспечивает более эффективную работу покрасочной камеры.

- В большой покрасочной камере освещение также очень важно для достижения качественной отделки и предотвращения упущения любых дефектов и цветовых несоответствий.
- Правильный обогрев покрасочной камеры также важен. Это обеспечит надлежащее время отверждения и лучшее качество отделки, а также снизит опасность возгорания.
Резюме
Существует множество факторов, которые необходимо учитывать при определении размера покрасочной камеры, но если вы помните вышеизложенное, все должно быть довольно просто! По сути, вам понадобится кабина, которая обеспечивает достаточно места и доступ к транспортным средствам и окрашиваемым деталям, имеет хороший поток воздуха и работает эффективно. Как уже упоминалось, обычно лучше ошибиться в сторону больших покрасочных камер, чем слишком маленьких, поэтому вам нужно будет учитывать свою целевую производительность, размер вашего магазина, ваш текущий объем производства и так далее.
Если вы домашний механик, стремящийся добиться профессионального качества отделки, вам не понадобится ничего, кроме простой кабины с поперечным или нисходящим потоком.
Если ваш объект представляет собой профессиональный гараж или автомастерскую, вам, вероятно, понадобится что-то, что может вместить мотоциклы, а также более крупные грузовики и транспортные средства. Что-то намного больше, чем покрасочная камера среднего размера, вы, вероятно, также захотите подумать, нужны ли вам дополнительные воздуховоды, освещение, отопление, вытяжка или другие надстройки и аксессуары, чтобы он работал эффективно и соответствовал коду.
Auto Body Toolmart предлагает все, что вам нужно, чтобы улучшить существующую покрасочную камеру или помочь вам начать с нуля. Просмотрите наши покрасочные камеры, чтобы начать.
Размер покрасочной камеры Основные элементы дизайна
СерияВведение
Имея на выбор так много вариантов покрасочных камер, некоторые компании могут выбрать «что-то близкое» к тому, что им нужно. Это может быть дорогостоящей ошибкой. Каждый тип покрасочной камеры предназначен для удовлетворения определенных потребностей.
Разнообразие доступных размеров необходимо для соответствия уникальным размерам деталей, интерфейсам инструментов и ориентации деталей. Выбор конструкции воздушного потока (нисходящий или поперечный поток) влияет на качество отделки детали. Расположение распылительного оборудования определяет, сколько операторов могут выполнять покраску в любой момент времени. Эти важные опции делают покрасочную камеру «идеальной» для конкретного применения, если конструктивные соображения будут приняты во внимание до проектирования и изготовления камеры.
Потратив время на определение «идеальной» конструкции покрасочной камеры, оборудование сможет безукоризненно выполнять свои основные функции:
- Защита сотрудников и помещений
- Производство высококачественной окраски
- Снижение эксплуатационных расходов
В этой серии статей мы анализируем дизайнерские решения для окрасочных камер с точки зрения этих ключевых функций. Размер — это ранний выбор дизайна, который мы обсудим здесь.
Размеры покрасочных камер
Размер покрасочных камер напрямую зависит от их эксплуатационных расходов. Имейте в виду, что вентиляторы и двигатели, используемые для подачи и вытяжки, являются самыми большими эксплуатационными расходами окрасочной камеры, которые имеют ряд вариантов конструкции, которые следует учитывать. Этот воздух, смешанный с распыленной краской, проходит через одно измерение покрасочной камеры. Чем больше размеры камеры, тем больше необходимо нагнетать приточный/вытяжной воздух. Например, кабина длиной 20 футов, шириной 10 футов и высотой 10 футов может иметь два разных размера для принудительного прохождения воздуха. Конструкция поперечного воздушного потока будет использовать поперечное сечение 10 на 10 для воздушного потока. В конструкции с нисходящим потоком воздуха будет использоваться поперечное сечение 20 на 10. Для одной и той же детали потребуется в два раза больше впускного/вытяжного воздуха, что соответственно увеличит эксплуатационные расходы.
Однако эксплуатационные расходы — не единственный элемент дизайна. В то время как небольшие покрасочные камеры лучше с точки зрения эффективности, для безопасности требуется определенный размер. Небольшая покрасочная камера может не иметь достаточного количества фильтров для эффективной фильтрации избыточного распыления выхлопных газов. Таким образом, оборудование за пределами покрасочной камеры может быть загрязнено, а затраты на очистку, скорее всего, сведут на нет экономию на эксплуатации меньшей камеры.
Покрасочная камера также предназначена для высококачественной окраски. Некоторые производители могут покрыть более высокие эксплуатационные расходы версии с нисходящим потоком для обеспечения более высокого качества. Это зависит от части, которую нужно закончить.
Размер и конфигурация детали
Например, начиная с продукта длиной 5 футов, шириной 10 футов и высотой 5 футов, дизайнер и производитель кабины должны добавить пространство с каждой стороны для рабочих, чтобы они могли двигаться и регулировать к части.
Некоторые приспособления для удержания деталей также могут быть большими, и их следует учитывать. Правильно спроектированная покрасочная камера должна вмещать это оборудование и обрабатываемую деталь, но она должна быть настолько велика, насколько это необходимо для снижения эксплуатационных расходов.
Ориентация детали также влияет на размер кабины. Изделие размером 5 на 10 на 5 футов может фактически иметь размеры 5 на 5 на 10 футов, если оно правильно ориентировано для нанесения краски. «Правильная» ориентация зависит от части окрашиваемой детали, а также от размеров. Окрашиваемая сторона должна находиться прямо напротив того места, где всасываемый воздух проходит через покрасочную камеру. Если деталь не может быть легко переориентирована, изготовителям кабин, возможно, придется рассмотреть различные конструкции воздушного потока и дополнительное оборудование для распыления. На нашей исходной части (5 на 10 на 5) система нисходящего потока нарисовала бы лицо размером 5 на 10 футов (длина и ширина).
Однако система поперечной тяги будет предназначена для рисования лица размером 5 на 5 футов. Распылительное оборудование также может быть изменено для распыления с одной или двух сторон. Однако дополнительное оборудование для распыления требует дополнительного помещения, особенно для нанесения порошка. Определение того, какие поверхности необходимо покрасить, и ориентация детали в покрасочной камере влияет на размер и, следовательно, на эксплуатационные расходы.
Использование в будущем
Эффективная в эксплуатации покрасочная камера должна быть спроектирована и изготовлена так, чтобы она прослужила долгие годы. Поэтому следует учитывать любые предстоящие изменения конструкции детали. Новый дизайн всего на 2 фута длиннее в одном измерении не может использоваться в той же покрасочной камере, в зависимости от требуемых инструментов и ориентации. Увеличение объемов производства также может сделать кабину неэффективной, если увеличение объемов не будет учтено в процессе проектирования.
Имея информацию о будущих деталях, проектировщики покрасочных камер могут выбрать покрасочную камеру, которая будет работать в далеком будущем.
Заключение
«Идеальная» покрасочная камера оптимизирована для выполняемой работы. Он достаточно большой, чтобы разместить деталь в правильной ориентации и учитывать будущие изменения конструкции. Покрасочная камера также настолько мала, насколько это возможно для оптимизации эксплуатационных расходов, но не настолько, чтобы снижалась эффективность фильтров. Компания Spray Systems может помочь вам выбрать камеру для распыления краски подходящего размера, необходимую для ваших операций, что является первым шагом к проектированию «идеальной» камеры.
Наша команда опытных специалистов готова ответить на любые вопросы и помочь вам в рассмотрении всех вариантов конструкции покрасочной камеры, подходящей для вашего проекта. Принимая во внимание другие аспекты проектирования, включая интеграцию в производственные процессы, качество распыления и отделку, соответствие нормам безопасности и эксплуатационные расходы, вы найдете партнера в команде Spray Systems, поскольку мы работаем вместе, чтобы разработать «идеальную» покрасочную камеру для вашего заявление.
Как купить покрасочную камеру: 7 шагов, которые упростят процесс , химические вещества, газы и пары от распространения в цех или окружающую среду снаружи. В дополнение к защите окружающей среды, соблюдению местных норм и правил, а также обеспечению безопасности ваших сотрудников и объекта, размещение процесса покраски в кабине обеспечивает более высокое качество покрасочных работ и отсутствие загрязняющих веществ.
Итак, с чего начать при покупке покрасочной камеры? Следующие семь шагов помогут вам в этом процессе:
1. Изучите поставщиков покрасочных камер
Хотя вы можете многое спланировать самостоятельно, полезно с самого начала изучить поставщиков камер и варианты их распространения. процесса покупки, так как они предоставят рекомендации, которые помогут вам определить размер, воздушный поток и функции, соответствующие вашим потребностям и цене.
При выборе поставщика окрасочных камер обязательно выберите компанию, которая имеет опыт работы в отрасли, имеет в штате инженеров, подтверждает эффективность своей продукции и сотрудничает с национальными организациями по безопасности и защите окружающей среды.
Вы хотите выбрать компанию, способную обеспечить местную поддержку либо собственным персоналом, либо дистрибьюторами. Они также должны предложить программы установки, обслуживания и обучения запуску вашей новой покрасочной камеры.
2. Определите оптимальный размер вашей будущей покрасочной камеры
Определите тип и размер продуктов, с которыми вы будете работать, чтобы обеспечить достаточное пространство и вентиляцию вашей будущей покрасочной камеры:
- Для промышленных и производственных приложений, лучше всего определить самый большой объект, который вам нужно покрасить, а затем добавить минимум 2 фута к высоте, 5 футов к ширине и 5 футов к глубине. При расчете этих измерений обязательно учитывайте размеры поддонов, стеллажей или тележек. Если вы рисуете несколько частей, оставьте 3 фута пустого пространства между каждой частью.
- Размеры покрасочных камер для окраски автомобилей, как правило, более стандартизированы: высота 9 футов, ширина 14 футов и длина 24, 27 или 30 футов.
Доступны более высокие потолки для размещения более высоких транспортных средств и изменения размеров. Тем не менее, вы должны убедиться, что ваша покрасочная камера соответствует размерам, указанным в ETL, чтобы предотвратить проблемы с соблюдением норм в будущем.
- Для авиационных применений GFS рекомендует определить размеры самого большого самолета, который необходимо покрасить, а затем добавить минимум 10 футов со всех сторон самолета для зазора. Вам также необходимо принять во внимание дополнительное пространство, необходимое для размещения строительных лесов или подъемников для персонала. Когда это возможно, стены и потолок покрасочной камеры проектируются так, чтобы соответствовать форме отдельного самолета, что обеспечивает экономию затрат на капитальное оборудование, а также экономию на эксплуатации за счет уменьшения объема воздушного потока, необходимого в камере.
3. Понимание вашего процесса
Различные процессы и области применения будут влиять на выбор типа покрасочной камеры.
В жидких средах обычно используется покрасочная камера с сухим фильтром, в которой вытяжной вентилятор направляет излишки краски в блок фильтров (в стенах камеры или в яме на полу) и улавливает их. Процессы нанесения порошка обычно требуют нескольких слоев фильтрации, заканчивающихся либо рукавным фильтром, либо сборником порошка, без необходимости выпуска воздуха за пределы здания.
4. Определите свое пространство
Важно учитывать не только рабочие размеры внутри кабины, но и пространство снаружи кабины. При выборе схемы и расположения вашей покрасочной камеры учитывайте следующие факторы:
- Как вы будете транспортировать продукты или детали в камеру и из нее (например, тележка, конвейер, гусеница и т. д.)? Есть ли свободный проход в кабину?
- Соответствует ли планировка вашей покрасочной камеры (и любого дополнительного оборудования) желаемому производственному процессу?
- Если будет использоваться блок подпитки воздуха (также известный как нагреватель), где он будет установлен?
- Нужны ли сервисные лестницы?
- Где будет проходить вытяжной воздуховод? Достаточно ли места между верхом покрасочной камеры и потолком вашего здания для вытяжной трубы, или она должна выходить через стену?
Помните, что любые дополнительные продукты, такие как помещения для смешивания красок и здания для хранения опасных материалов, потребуют дополнительного места.
5. Выберите тип покрасочной камеры, которая вам нужна.
Покрасочные камеры варьируются от корпусов, достаточно маленьких для покраски корпуса сотового телефона, до достаточно больших, чтобы покрасить военно-транспортный самолет C-17. Начните с определения основной отрасли, в которой вы работаете. Это поможет сузить круг доступных вам вариантов и поможет найти покрасочные камеры с наиболее важными для вас функциями и опциями.
6. Выберите воздушный поток
После того, как вы выбрали отрасль и тип кабины, которые соответствуют вашим задачам и бюджету, вы можете выбрать стиль воздушного потока. Это может включать поперечный поток, полунисходящий поток, боковой нисходящий поток или нисходящий поток. Вам также нужно будет решить, нужна ли вам ваша будка с герметичным или отапливаемым оборудованием.
Чтобы продукт, который вы отделываете, получил наилучшую возможную отделку, ищите покрасочные камеры с ламинарным потоком воздуха, что означает, что распылительная камера полностью спроектирована так, чтобы весь воздух двигался параллельно в одном направлении, без турбулентности, которая приводит к непредсказуемым формам распыления.



м2) проектной документации обязательно
1 Камера для окраски мелких деталей Эксперт ПО Микро 900К с сухой фильтрацией.
Это позволяет вашим сотрудникам свободно перемещаться для оптимального производства и более высокого качества отделки, поскольку поток краски не будет затруднен или уменьшен из-за более тесных помещений. Так, например, если вы будете красить автомобили длиной не более 45 футов, вам понадобится камера глубиной не менее 52 футов.
Например, при использовании кабины для поперечной тяги лучше НЕ размещать каждый окрашиваемый объект в линию, так как избыточное распыление с первого объекта повлияет на финишную отделку следующего и так далее. Этого можно избежать, покрасив несколько объектов перед входным вытяжным вентилятором.
Доступны более высокие потолки для размещения более высоких транспортных средств и изменения размеров. Тем не менее, вы должны убедиться, что ваша покрасочная камера соответствует размерам, указанным в ETL, чтобы предотвратить проблемы с соблюдением норм в будущем.