как рассчитать и сделать своими руками
Для покраски изделий из металла (в частности автомобилей), используются специально оборудованные покрасочные камеры. К этим помещениям выдвигается ряд специфических технических требований. Правильно организованная вентиляция в покрасочной – один из основных показателей, без которого невозможна нормальная работа всей конструкции.
Функции вентиляционной системы
Чтобы конечный результат покраски был качественным, нужно поддерживать оптимальный уровень влажности в помещении, контролировать чистоту и интенсивность движения воздушных потоков. Все эти факторы влияют на результат. Продуманная вентиляция в покрасочной камере выполняет три основные функции:
- Очистка помещения от токсичных паров, которые неизбежно выделяются в процессе. Такая очистка необходима для безопасности оператора, так как скопившиеся пары не только вредны для здоровья, но и могут оказаться причиной пожара или взрыва.
- Постоянная циркуляция, без которой невозможно добиться хорошего результата – пыль и различные мелкие частицы будут оседать на свежей краске, и останутся в виде разводов, шагрени и прочих дефектов.

- Регулирование температуры и влажности для разных технологических процессов.
Устройство вытяжки покрасочной камеры или гаража, если работа производится в нем, – один из самых важных этапов проектирования.
Основные требования
Существуют идеальные условия, при которых производительность покрасочной камеры будет максимальной:
- Температура. Большинство производителей красок ориентируются на комнатную температуру – 22-24°С. Согласно схеме вентиляции, в покрасочной камере воздух интенсивно нагнетается с улицы, поэтому необходимо продумать систему обогрева.
- Направленное и равномерное движение воздушных потоков. Именно его обеспечивает грамотная вентиляция покрасочной камеры. При таком движении покраска будет качественной, без повреждений и брака.
- Влажность воздуха в пределах от 50 до 70 %. Слишком сухой воздух будет способствовать слишком быстрому высыханию краски.

- Размещение системы вентиляции. Специалисты рекомендуют использовать для покрасочной камеры вертикальную систему обновления воздуха. Такая система предполагает подачу чистого воздуха через потолок и его отвод через решётки в полу. Однако в условиях непромышленного производства организовать такую систему проблематично. Решение – расположить вытяжку на уровне пола, а подачу чистого воздуха разместить за спиной у оператора.
- Расчёт кратности воздухообмена – соотношения объёма удалённого/нагнетаемого воздуха и объёма помещения. Она показывает, сколько раз за час полностью обновится воздух в покрасочном боксе. Требования к кратности воздухообмена меняется в зависимости от размеров окрашиваемого изделия. Чем объект покраски больше, тем выше должна быть скорость обновления воздуха.
Соблюдение всех этих условий благоприятно отразится на качестве покрасочных работ.
Особенности вентиляции воздуха в покрасочных камерах
Существует ряд особенностей вентсистемы боксов для покраски.
К ним относятся:
- Возможность регулирования вентиляции окрасочных камер в соответствии с текущим технологическим процессом – для окраски нужен один режим, а для сушки – совсем другой.
- Лучшим вариантом для вентиляции окрасочных камер является использование наборной системы (приток и вытяжка разведены), а не объединённой моносистемы.
- В небольших помещениях вполне допустима установка вытяжки с естественной тягой и приточной вентиляции с механическим побуждением. Таким образом можно сделать вентиляцию в небольшом боксе или гараже, которая будет отлично работать и отвечать всем требованиям.
- Установка вентиляции таким образом, чтобы воздушные потоки двигались вертикально – приток свежего воздуха сверху, а отвод отработанного – снизу.
Все эти параметры одинаковы как для работы с маленькими деталями, так и для покраски автомобиля в гараже.
Что нужно учитывать при проектировании?
В идеале покрасочный бокс – это чистое, хорошо вентилируемое помещение с определенным и постоянным микроклиматом.
Чтобы добиться такого результата, выбору и установке вентиляции покрасочного бокса нужно уделить максимум внимания.
Во время покраски в воздух выделяется большое количество веществ: мельчайших частиц красок и растворителя, пыль и другие взвеси. Поэтому необходима установка хорошей системы фильтров. Важный момент: к фильтрам должен быть доступ, чтоб можно было их менять по мере изнашивания.
Даже если в покрасочном боксе установлена самая качественная система фильтрации, нельзя пренебрегать личными средствами защиты дыхания.
От точности расчётов зависит не только результат работы, но и безопасность маляров. Нельзя допускать возникновения зон, где воздушные потоки не циркулируют и застаиваются. Если такая зона образуется на уровне дыхательных путей, это может привести к отравлению оператора.
Типы вентиляционных систем и их сравнение
Существует три основных типа вентиляционных систем: одномоторные, двухмоторные и приточно-вытяжные.
Одномоторная система вентиляции организована следующим образом: воздух в помещение нагнетается сверху, и опускает окрасочный туман и все тяжёлые частицы вниз.
В полу устанавливаются фильтры, которые улавливают все загрязнения и удаляют их. Установка такой системы будет оправдана в боксах с малой производительностью.
В отличие от одномоторной, двухмоторная система вентиляции имеет свои особенности вентсистемы боксов для покраски. Дополнительный мотор выводит отработанный воздух наружу. У этой системы производительность намного выше, однако её установка обойдётся в приличную сумму
Приточно-вытяжная система вентиляции покрасочной камеры обеспечивает несколько разных режимов воздухообмена. Это самый оптимальный вид вентиляции для больших объёмов работ.
Приточно-вытяжная вентиляция
Эта система вентиляции требует тщательного расчёта, так как есть большой риск появления «мёртвых зон» — мест, где нет достаточной циркуляции воздуха. Допускать их возникновения ни в коем случае нельзя. Расчёт нужен ещё и для того, чтобы при разных режимах воздухообмена покрасочное оборудование работало правильно.
Три режима функционирования:
- Циркуляция воздуха для его очистки и подготовки к работе;
- Поддержание температуры в помещении на одном уровне;
- Сушка готового изделия.

Важно! Соотношении мощности приточного вентилятора и вытяжного должно быть 3:1.
Приточно-вытяжная вентиляция для покрасочной камеры рекомендуется к установке в боксах с большим потоком заказов.
Как сделать систему вентиляции в покрасочной камере своими руками
Покрасочный бокс можно приобрести в готовом виде, однако стоит он недёшево. Более бюджетный вариант – оборудовать такую камеру в гараже своими руками.
Стены рабочего участка для окраски должны быть огнеупорными, чтобы избежать пожара. В самом начале работ необходимо организовать достаточное освещение. Желательно, чтобы источники света были расположены по всему периметру площадки – так маляру буде легче работать. Поверхность ламп также должна быть защищена плотным материалом, который выдерживает воздействие токсичных веществ (красок, растворителей) и высоких температур.
Оборудование пола играет огромную роль. Нужно сделать траншеи, которые будут выводить отработанный воздух, и прикрыть их специальными решётками.
Следующий этап – установка вентиляции. Главное – правильно рассчитать необходимый воздухообмен. К вентиляторам покрасочной камеры предъявляются высокие требования – они должны постоянно проверяться на исправность и правильность работы.
Вентиляторы, которые будут выводить загрязненный воздух, размещаются внизу, в специальных траншеях под решёткой. Подачу воздуха нужно осуществлять сверху. Также стоит дополнительно установить защиту воздухоотвода обратным клапаном.
Если есть такая возможность, стоит приобрести инфракрасные лампы для сушки готовой работы. Такие лампы сокращают срок сушки в несколько раз, а все мелкие частицы и окрасочный туман удаляются с помощью вентиляции.
Вентиляция в покрасочном цехе должна быть безопасна для оператора.
Расчет
Правильный расчёт необходим для подбора оптимальных параметров вентиляционной системы.
Если подача воздуха будет чересчур интенсивной, нарушатся технологические процессы, при недостаточной вентиляции под угрозой оказываются операторы-маляры.
Чтобы сделать расчёт производительности вентиляция покрасочной камеры, нужно воспользоваться формулой P=V×T×0.36, где T – температурная разница между подаваемым воздухом и тем, который требуется в окрасочной камере, V – объем воздуха в , а 0,36 – коэффициент кратности.
Зная этот параметр, легко установить необходимый режим воздухообмена. Расчет оптимального воздухообмена производится следующим образом: объем рабочего помещения умножается на средний показатель кратности движения воздуха.
В зависимости от результатов расчёта, можно понять, какой именно тип вентиляции подходит в конкретном случае. При соблюдении всех норм установки покрасочная камера будет максимально производительна и безопасна.
Вентиляция покрасочной камеры своими руками
Содержание статьи:
Эффективная вентиляция необходима и в служебных, и в подсобных помещениях.
Иногда ее можно организовать самостоятельно, как например, в случае покрасочной камеры. Вентиляция же мусоросборной проектируется и возводится профессионалами.
Вентиляция покрасочной камеры
покрасочная камера
Покрасочная камера – это отдельное помещение с оборудованием для покраски металлических деталей. В процессе работы в воздух выделяются мельчайшие капли красок (окрасочного тумана) и растворителей. Для обеспечения безопасности персонала в покрасочной камере обязательно должна быть вентиляция.
В покрасочных организовывается приточно-вытяжная система вентиляции, усиленная дополнительной вытяжкой в нижней части помещения.
Удобно организовать нижний отвод воздуха, приподняв решетчатый пол на 15-20 см выше основного уровня. Под решеткой устанавливаются воздухозаборники с фильтрами.
Расчет вентиляции в покрасочной камере достаточно сложен, так как слишком интенсивное движение воздуха может нарушить технологический процесс.
Недостаточное же подвергает опасности здоровье персонала. Потоки воздуха при расчете приточно-вытяжной вентиляции покрасочной камеры рассчитываются профессионалом. В обязательном порядке предусматривается фильтрация отводимого наружу воздуха.
направление потоков воздуха в покрасочной камере
Вентиляция покрасочной камеры выполняет следующие задачи:
- отток отработанного воздуха из помещения;
- подача в помещение чистого уличного воздуха с температурой не выше 25 градусов;
- выброс очищенного отработанного воздуха на улицу.
Приточный уличный воздух предварительно очищается пыли. Одновременно с этим отработанный воздух фильтруется от частичек химических веществ специальными краскоулавливающими фильтрами.
Кратность воздухообмена в камере может достигать 200 раз!
Типы систем вентиляции в покрасочной
вентиляция – это организованное движение воздуха
Для покрасочной камеры можно рассчитать и организовать приточно-вытяжную, двухмоторную или одномоторную систему вентиляции.
При одномоторной вентиляционной камере воздух подается сверху, обеспечивая осаждение окрасочного тумана вниз, к вытяжным соплам.
Двухмоторная вентиляционная покрасочная камера оснащена дополнительным мотором, удаляющим отработанный воздух из рабочей зоны наружу. Это более действенная система, однако, ее установка не всегда экономически оправдана. Так, в покрасочных камерах с малым оборотом целесообразнее оборудовать своими руками одномоторную вентиляцию.
Приточно-вытяжная вентиляция функционирует в 3 режимах:
- Интенсивное движение воздуха с фильтрацией;
- Приток воздуха с улицы с фильтрацией, доведением температуры до 30 градусов и отток через сопла в полу. Этот режим обеспечивает постоянные климатические условия;
- Подача очищенного и прогретого до 60 градусов воздуха для просушивания окрашенных деталей.
При расчете приточно-вытяжной вентиляции покрасочной камеры необходимо избегать «мертвых зон», где застаивается воздух вместе со всеми вредными примесями.
Наиболее распространенный вариант для покрасочной это повышенное давление при работе двух вентиляторов: приточного и вытяжного. Нагнетающий вентилятор мощнее, за счет чего и обеспечивается повышенное давление. Одновременно с этим пыль из помещения вытесняется, а не засасывается из вне. Для создания разрежения воздуха мощность вытяжного вентилятора выше мощности приточного.
В камере с циркулирующим воздушным потоком следует обеспечить герметичность. Так как воздух двигается за счет работы двух вентиляторов и давление внутри равно давлению снаружи.
Кратность воздухообмена в покрасочной камере
расположение вытяжки в покрасочной
Качественная и безопасная работа покрасочной камеры гарантируется только при грамотном расчете вентиляции. Правильный воздухообмен обеспечит отличный результат окраски, здоровье персонала и предотвратит пожары или взрывы.
Сложность расчета вентиляции покрасочной камеры в том, что необходимо учитывать размер окрашиваемой детали.
Например, при работе с небольшой площадью воздухообмен должен быть пятикратным. Если же окрашивается кузов легковушки, кратность повышается до 40 – 100. Таким образом, в крупных цехах невыгодно красить мелкие детали. При этом, чем интенсивнее воздухообмен, тем меньше нагрузка на организм людей. Потому, чтобы снизить риск для людей покрасочные максимально автоматизируют.
Стандартная схема вентиляции покрасочной камеры сочетает приток воздуха в камеру, отвод его на улицу и рециркуляцию воздуха. Перемещают воздух 2 вентилятора рассчитанной мощности. Основная задача при расчете вентиляции покрасочной камеры – подбор параметров вентиляторов в зависимости от необходимого воздухообмена.
В среднем покрасочная камера имеет производительность около 20 000 кубометров воздуха в час. Она обеспечивает отличное качество обработки деталей и безопасность для персонала.
Чтобы рассчитать воздушный поток для камеры, необходимо умножить кратность воздухообмена на объем камеры.
Для расчета приточно-вытяжной вентиляции покрасочной камеры нужно знать давление и производительность вентиляторов. Величина падения давления находится в зависимости от площади фильтров: приточного – от потолочного, а вытяжного от напольного.
Производительность вентилятора подбирают по таблицам, предоставленным в инструкции к вентилятору.
Пол покрасочной камеры
пол покрасочной для грузовых машин
Одним из важнейших компонентов системы вентиляции покрасочной камеры является пол. Отток отработанного воздуха происходит через траншеи в полу, прикрытые решетками или пол приподнимают за счет пандуса на 20 см. В полученное пространство устанавливают фильтры и вытяжные трубы.
Для организации вентилируемого пола удобно использовать готовый металлический дырчатый пол.
Сопла вытяжных труб распределяют так, чтобы не осталось неохваченного пространства, где может застаиваться воздух. Кроме этого необходимо предусмотреть замену или очистку фильтров.
Вентиляция покрасочной своими руками
Если покрасочное помещение сооружается самостоятельно, монтаж элементов вентиляции начинают после обшивки стен и подключения освещения.
Сначала устанавливают вытяжку в полу, сделанную из вытяжных вентиляторов. Из тэнов и вентиляторов под потолком сооружают тепловую пушку для воздухозабора. Отсюда воздух по трубам поступает в центр помещения. Можно в качестве нагревательной спирали установить нихромовую проволоку.
Тэны более безопасны, чем теплогенераторы на жидком топливе.
Нагревательных тэнов понадобится 6 или 8, они представляют собой токопроводящую нить, спрятанную в металлические трубки. Трубки заполняются изолирующим, проводящим тепло материалом. Нихромовая нить передает на поверхность необходимую удельную мощность.
Обеспечение безопасности
металлический пол покрасочной
Для безопасной работы системы вентиляции покрасочной камеры используются три приема:
- взрывозащищенные обратные клапана на вентканалах;
- мониторинг примесей в воздухе камеры;
- дополнительные вытяжные сопла возле основных источников загрязнения.

Например, когда во время окрашивания выделяются вещества легче воздуха, из нижнего яруса отводится 30% воздуха, а 70% из-под потолка. Если примеси тяжелее воздуха, они быстро оседают. Поэтому отводятся снизу. Взрывозащищенные отводы необходимы над окрасочными стеллажами, ванными, струйными установками.
Тщательно рассчитав, можно оборудовать качественную вентиляцию покрасочной камеры своими руками, сэкономив на услугах дорогостоящих специалистов.
Вентиляция мусоросборной камеры
мусоросборная камера
Мусоросборная камера оснащается естественной (иногда принудительной) вентиляцией, обеспечивающей соблюдение санитарно-гигиенических норм. В качестве воздуховода используется ствол мусоропровода. А узел вентиляции мусоросборной камеры находится выше ствола мусоропровода.
Система вентиляции мусоросборной камеры состоит из следующих элементов:
- вентиляционный канал;
- шибер, перекрывающий воздуховод во время чисток и дезинфекции ствола мусоропровода;
- вытяжной вентилятор или дефлектор;
- уплотняющие кольца для вывода вентканала через кровлю.

Вентканал устанавливается вертикально, по центру ствола мусоропровода. Стандартный диаметр канала 300 мм. При необходимости разрешается отклонение канала не более чем на 30 градусов к вертикали.
Отрезки вентканала крепятся между собой металлическими переходниками.
Внутренние стенки выполняются гладкими и из невоспламеняющихся материалов. Следует утеплить отрезок канала, проходящий через не отапливаемый чердак. Проход воздуховода через крышу герметизируется металлическим фартуком и гильзой.
Чтобы предотвратить обратную тягу в вентиляции мусоропровода параллельно ему устанавливается еще один воздуховод, который вверху соединяется с основным. Место соединения можно перекрыть заслонкой с автоматическим или ручным управлением.
В современных высотных комплексах мусоросборные камеры герметичны, а ствол мусоропровода оснащен мойкой. Естественная тяга в летнее время в нем почти не функционирует, поэтому камеры оборудуются принудительной вытяжной вентиляцией.
Вентиляция в покрасочной камере своими руками, как рассчитать, схема
Качественная покраска является процессом сложным, требующим соблюдения ряда обязательных технических требований. Для достижения высоких показателей и соблюдения технологических требований оборудуются специальные помещения — покрасочные камеры, малярные цехи, гаражи и т. д.
Обязательным условием безопасной эксплуатации таких объектов является наличие эффективной вентиляции. По этой причине многих людей интересует вопрос обустройства воздухообмена покрасочной камеры своими руками. На что нужно обращать внимание, если нужна вентиляция в малярке?
Общая информация
Покрасочная камера — это специальное помещение, которое предназначено для проведения качественной покраски различных поверхностей.
Прежде всего, такие объекты применяются для нанесения краски на металлические поверхности.
Высокий уровень обеспечивается распылением мельчайших частиц краски с растворителем. Своеобразный «туман» равномерно оседает на металлической поверхности, обеспечивая необходимый эффект.
С цехами неразрывно связаны помещения, оборудованные пескоструйным оборудованием. Пескоструйка служит для удаления загрязнений, следов коррозии и старых покрытий. Для решения этой задачи используются различные абразивные материалы.
К обустройству покрасочных камер предъявляется ряд обязательных требований. Наличие эффективной системы вентиляции — одно из таких условий.
Зачем нужен воздухообмен в малярке?
- Обеспечение безопасности людей.
- Создание благоприятных технологических условий.
- Соблюдение требований безопасности.
Вентиляция в малярных цехах выполняет следующие задачи:
- выведение отработанных масс газа, с высокой концентрацией вредных элементов;
- постоянное поступление в помещение свежего воздуха с оптимальными параметрами чистоты, температуры, влажности;
- рециркуляция воздуха, то есть очистка отработанных масс и многократное их использование после смешивания со свежим кислородом.

Вентиляция покрасочной камеры может быть трёх видов:
- Приточно-вытяжная.
- Одномоторная.
- Двухмоторная.
Требования и расчет
Покрасочные камеры должны быть обеспечены приточной и вытяжной вентиляцией, с дополнительным обустройством вытяжки в верхней части помещения. Нижний отвод воздуха оборудуется путём поднятия решётки на 15–20 см над основным уровнем пола. В это пространство монтируются воздухозаборники с фильтрами.
Система воздухообмена в окрасочной камере в обязательном порядке оснащается фильтрующей системой как на приточном, так и на вытяжном участке. С ее помощью из поступающих масс удаляется пыль. На выходе, из отработанных газов удаляются красящие частицы, с помощью специальных краскоулавливающих установок.
При проектировании вентиляции используются сложные расчеты. Очень важно выполнить точный расчет скорости обновления воздуха в помещении. Почему это так важно?
- Слишком сильные потоки воздуха могут привести к нарушению технологии покраски.

- Низкая скорость поступления свежего кислорода приведёт к низкой эффективности проветривания и удаления технологических частиц. Такая ситуация несёт высокий уровень опасности для работающих на объекте людей.
На конструкцию покрасочной камеры и ее систему вентиляции существенное влияние оказывает размер и конструктивные особенности предметов, которые планируется покрывать краской в помещении.
Здесь важным показателем, который точно определяется при расчете системы вентиляции, является кратность. Кратность воздухообмена при обработке объектов с небольшой площадью поверхности должна быть пятикратной. То есть, столько раз должен обновляться воздух за единицу времени.
На объектах, предназначенных для обработки легковых автомобилей, кратность увеличивается в 50–100 раз. Исходя из параметров кратности, в камерах, обустроенных для покраски транспортных средств, не рентабельно производить нанесение краски на небольшие по площади предметы.
Стандартная камера имеет производительность от 15 тыс.
до 30 тыс. кубических метров воздуха в час. Такой объём обеспечивает создание благоприятных рабочих условий для персонала и соблюдение технологических требований.
- длина — 7 метров;
- ширина — 4 метра;
- высота — 3 метра.
Определение объёма помещения производится путём умножения показателей длины, ширины и высоты. Наш объём равен 84 кубическим метрам. Цех используется для покраски автомобилей, его кратность равна 90. Рассчитываем производительность. 84 умножаем на 90. Получается проходимость воздуха 7 560 кубических метров в час. Показатель недостаточен и требует увеличения примерно в два раза. То есть нужно увеличить мощность оборудования или размеры помещения.
Чтобы рассчитать параметры приточно-вытяжной системы нужно учитывать параметры давления и производительности оборудования. Давление находится в прямой зависимости от площади фильтров. Чем больше фильтров «на входе» и «выходе», тем ниже давление.
Устройство и схема
Устройство и схема вентиляции зависит от вида системы и ее особенностей.
Одномоторная система воздухообмена подразумевает верхнюю принудительную подачу воздуха, за счёт чего происходит осаждение тумана с краской вниз к вытяжным элементам.
При двухмоторной системе дополнительный мотор оборудуется внизу. Он усиливает выведение отработанных газов за пределы рабочего пространства камеры. Это наиболее эффективный вид воздухообмена, но его оборудование экономически целесообразно только в случае высоких рабочих нагрузок, то есть, когда покраска производится постоянно.
Приточно-вытяжная система рассчитывается с возможностью функционирования в трёх режимах:
- Высокая скорость поступления и вывода воздуха с двухсторонней фильтрацией.
- Создание особых условий для покраски (температурного режима в 30 градусов).
- Создание особых условий для просушки (подаётся чистый воздух, доведённый до температуры в 60 градусов).
Вентиляция в гараже для покраски или малярном цеху в своём устройстве имеет следующие конструктивные элементы:
- Вентиляторы.

- Нагревательные элементы (тены).
- Пылеулавливающие фильтры на приточной линии.
- Краскоулавливающие и пылеулавливающие фильтры на вытяжной линии.
- Траншеи и отверстия в полу, закрытые решётками.
При проведении покрасочных мероприятий, важным технологическим фактором является определённый уровень давления. Нужные результаты обеспечиваются за счёт установки на притоке и вытяжке вентиляторов с регулируемой мощностью.
Если требуется повышенное давление, на большую мощность включается входной прибор. Если нужен разряженный воздух, вентилятор «на выходе» включается в режим более высокой мощности.
При проектировании и расчете важно избегать образования «мёртвых зон», где воздушные массы могут застаиваться и концентрироваться в загрязнённом виде. Ещё один важнейший показатель эффективности — герметичность.
Ключевым конструктивным элементом окрасочного цеха, оказывающим влияние на расчет, является пол. Это основа вытяжки для покрасочной камеры.
Выведение отработанного воздуха производится через специальные технологические отверстия в напольном покрытии. Конфигурация, расположение и количество таких отверстий определяет эффективность.
Кроме отверстий для качественного выведения воздуха, может использоваться принцип поднятия пола. За счёт этого процесса образуется пространство по краям напольных плит, куда монтируется вытяжка и фильтрующие приспособления.
Инструкция по оборудованию
Может ли быть оборудована вентиляция в покрасочной камере своими руками? Обустройство системы для покрасочной камеры в гараже рекомендуется доверять профессионалам, так как это сложное и трудоёмкое занятие.
Но при большом желании и наличии всего необходимого можно смонтировать систему воздухообмена своими руками. Стоит понимать, что стандартная гаражная вентиляция для покрасочной камеры не подойдёт.
Работы по наладке вентиляционной системы производятся после проведения работ по обшивке внутреннего пространства и подключения электричества.
Стоит понимать, что при проектировании, конфигурация должна изначально предполагать возможность монтажа системы притока и вытяжки.
Общая инструкция по монтажу вентиляции покрасочного цеха:
- Работы начинаются с пола, где устанавливаются вытяжные элементы с фильтрующими системами.
- Под потолком устанавливается система забора и нагрева воздуха. Монтируются фильтры, вентиляторы и другое оборудование. В качестве нагревательных элементов рекомендуется использовать тены. Для решения задач с нагревом на среднюю камеру хватает 5–8 тенов. Тен — система токопроводящих элементов, вмонтированных в металлические трубки вместе с изолирующим материалом.
- Монтируются трубы, через которые воздушные массы подаются непосредственно по всему пространству помещения.
Важным фактором, который регулируется специальными СНИП, является обеспечение в покрасочной камере требований по безопасности. Для решения этой задачи необходимо проводить:
- обработку специальными средствами рабочих поверхностей для создания защиты от угрозы взрыва или возникновения пожара;
- постоянный контроль содержания и концентрации примесей с помощью размещения специального измерительного оборудования;
- усиление воздухообмена в местах максимальных загрязнений и концентраций отработанных газов.

Соблюдение требований строительных норм и правил в вопросах оборудования вентиляции в покрасочных камерах позволяет организовать работу безопасно и эффективно.
Источник
Как и зачем выполняется расчет вентиляции покрасочной камеры
Камера для покраски металла, дерева, пластика – сложное инженерное сооружение. В нем должен поддерживаться приемлемый для выполнения работ на высоком уровне микроклимат. Пары краски и растворителя взрывоопасные, а также негативно влияют на организм человека и окружающую среду. Поэтому расчет вентиляции покрасочной камеры — не формальность, а основа эффективной работы всего проекта. Открыть окна и «выветрить» пары невозможно. Это повлечет за собой существенные штрафы, а при неоднократном нарушении — закрытие предприятия.
Функционирование покрасочной камеры
Схема вентиляции в покрасочном боксеЭто специализированное помещение, в котором выполняется два вида работ:
- нанесение лакокрасочного покрытия на металлические, деревянные и пластиковые поверхности.
Специфика процесса связана с выделением мелкодисперсной пыли от красок и растворителей. Она не оседает, а остается во взвешенном состоянии. Что негативно сказывается на качестве покраски, увеличивает вероятность самопроизвольного возгорания и взрыва, в негативном ключе влияет на локальную экологическую обстановку вокруг предприятия. Поэтому станция оборудуется системой вентиляции и фильтрации воздуха; - очистка металлических поверхностей посредством пескоструйной обработки. Покрасочная камера состоит минимум из двух помещений: первое для покраски, второе для подготовки окрашиваемой поверхности. Пескоструйная очистка выполняется мелкодисперсными абразивными материалами, например речным песком. В воздухе постоянно присутствует взвесь из абразивного материала, мелких частиц металла и ржавчины. Их надо отфильтровывать и подавать в помещение свежий воздух. Для этого монтируется приточно-вытяжная вентиляция с фильтрами.
Схема работы бокса по окраске состоит из четырех циклов, для каждого из которых надо запроектировать особые условия вентилирования:
- Нанесения слоя краски.

- Продувка холодным воздухом.
- Сушка при температуре +60-800С.
- Охлаждение.
Вентиляционная система должна быть многозадачной и обеспечивать для каждого рабочего цикла свои показатели по температуре и влажности.
Требования к системе вентиляции
Исходя из четырех циклов рабочего процесса при выполнении покрасочных работ, нахождении людей в помещение, а также высокого коэффициента взрывоопасности смеси из краски и растворителя, вентиляция должна удовлетворять ряд требований:
- обеспечивать абсолютную безопасность находящихся в помещении людей;
- предотвращать скопление в воздухе предельно допустимой концентрации (ПДК) взрывоопасных веществ и химических соединений;
- охлаждать и нагревать входящие потоки воздуха до требуемой для каждого цикла технологического процесса температуры;
- отфильтровывать пыль, краску, абразивные вещества.
Типы вентиляции для покрасочного бокса
Для покрасочной камеры рекомендуются к использованию системы приточно-вытяжной вентиляции с естественным и искусственным побуждением:
- одномоторная.
Клапаны подачи уличного воздуха располагаются под крышей. Удаление отработанных воздушных масс осуществляется естественным путем через отверстия в полу; - двухмоторная. Вентиляторы располагаются как в месте подачи, так и в точках удаления воздуха. Система полностью работает по принудительной схеме воздухообмена. Такой вариант — более эффективное и дорогое устройство, чем одномоторная вентиляция.
Особенности проектирования
В процессе проектирования разработчики используют различную нормативную литературу. Основная информация содержится в СНиП 41-01-2003 «Отопление, вентиляция и кондиционирование». Также часть расчетные данные и другие нормы можно почерпнуть в: НПБ 105-03 «Определение категорий помещений, зданий и наружных установок по взрывопожарной и пожарной опасности»; НПБ 239-97 «Воздуховоды. Метод испытаний на огнестойкость».
Направление движения воздуха в покрасочном боксеВ сети можно найти много литературы с прикладными советами по проектированию, но стоит учитывать некоторые нюансы:
- на одну единицу технологического оборудования проектируется один местный отсос.
Для каждой заборной точки свой вентиляционный канал. Смешивать потоки из разных технологических участков не допускается; - система подачи приточного воздуха монтируется в межпотолочном пространстве. Снаружи видны только вентиляционные решётки. Забор воздуха осуществляется через трубу, на конце которой располагается вентилятор. После него устанавливается нагреватель, который нагревает приточку до +29-300С. После нагрева воздух прогоняется через барьер из фильтрующих элементов и попадает в покрасочный бокс;
- приточная и вытяжная вентиляция оборудуются механическими и автоматическими заслонками для регулировки давления. Данная схема позволяет точно регулировать скорость и давление потока в вентиляционной камере;
Расположение приточной вентиляции в верхней части помещения обусловлено спецификой производственного процесса. Входящие воздушные массы должны прибивать мельчайшие частицы краски и растворителя, направляя их в заборные коллекторы в полу.
- вентиляторы для вытяжки проектируются во взрывобезопасном исполнении.
Их категорически запрещается устанавливать в межполовом пространстве. Только снаружи помещения в вытяжной трубе; - вытяжная вентиляция оборудуется двумя ступенями фильтрации воздуха. Первая ступень абсорбируете краску и растворитель. Вторая, чаще всего угольный фильтр, препятствует попаданию в атмосферу пыли;
- для создания более комфортных условий в боксах устанавливаются системы воздушного душа для рабочих. Пред подачей к потребителю он проходит тщательную фильтрацию. Интенсивность потока и количество точек рассчитывается по специальной формуле;
- скорость движения воздушных масс внутри окрасочно-сушильной камеры не должна превышать 0,3 м/с;
- вентиляция рассчитывается как на активную работу во время подготовительного этапа, так и на прогрев помещения до +60-700С для сушки окрашенных изделий. Для первого процесса воздух подается через приточные клапаны и нагревается до +300С. Для второго необходима более высокая температура и замкнутый цикл воздухообмен.
Циркуляция осуществляется постоянным перемешиванием воздушных масс, приточная подача составляет только 15% от общего объема; - выхлопные трубы от вытяжной вентиляции выводятся на максимальную высоту, но не меньше 2 м от уровня крыши. Это требование очень важно при одномоторной схеме вентилирования. Чем выше труба, тем интенсивнее происходит удаление отработанного воздуха;
- кроме основной вытяжки в проект закладываются воздухозаборники для верхней зоны. Они устанавливаются над участками с повышенным выделением тепла.
Кратность воздухообмена
Очень важный параметр для расчета вентиляции покрасочной камеры. Он характеризует интенсивность полной замены воздуха внутри помещений. Для проектируемого типа не существует строго регламента по кратности обмена воздуха. Все зависит от ПДК вредных веществ.
Если бокс проектируется под окраску мелких изделий, то вполне достаточно обеспечить 5-10 крат/час. При работе с крупногабаритными предметами, например, автомобилями, интенсивность вентиляционной системы должна быть 100 и более крат/ч.
Кратность воздухообмена измеряется в 1 м3/ч. Для получения точного показателя надо знать максимальную мощность вентилятора и объем вентилируемого помещения. Разделив второе значение на первое, проектировщик получает точное значение.
Пол покрасочного бокса
Пол покрасочного бокса — конструктивный элемент вытяжной вентиляции. Из помещения удаляются отработанный воздух, пары краски и растворителя, абразивная пыль. Есть две схемы монтажа:
- Отработанный воздух удаляется через траншеи, проложенные непосредственно в полу. Давление нагнетается за счет вытяжного вентилятора, установленного в трубе.
- По черновому полу монтируется решетчатый, высотой 150-200 мм. В образовавшейся полости устанавливается фильтры для захвата краски и других химических соединений.
Эжекция
Эжекторы – это часть вентиляционного оборудования, предназначенная для безопасного удаления взрывоопасных соединение, таких, как пары лакокрасочных материалов.
Чистый воздух под высоким давлением подается в вентиляционную камеру, где смешивается с взрывоопасными парами. Смена воздуха происходит быстрее и безопаснее.
Фильтры для вентсистем
Виды фильтровФильтры устанавливаются на входе и выходе приточно-вытяжной вентиляции. Их существует несколько типов:
- фильтр базовой очистки. Устанавливается непосредственно на входе воздушных масс. Задерживает крупнодисперсную пыль. Защищает фильтр для тонкой очистки воздуха;
- фильтр тонкой очистки. Устанавливается на приточную вентиляцию. Задерживает мелкодисперсную пыль, размером до 4 мк. Состоит из внешнего защитного и внутреннего фильтрующего слоёв. Дорогой, но эффективный. Если использовать многоступенчатую систему очистки приточного воздуха, то требует замены не чаще одного раза в год;
- картонный фильтр. Устанавливается на вытяжке. Его основная задача – абсорбирование масла, краски и растворители. Эффективное средство первичной очистки отработанного воздуха;
- угольный фильтр.
Устанавливается в систему вытяжной вентиляции после картонного. Забирает остатки пыли и краски.
Заключение
Вентиляция покрасочных камер должна исключить попадание вредных веществ в атмосферу, а также обезопасить рабочие места сотрудников предприятия. Проектирование систем воздухообмена сопряжено с обработкой большого количества данных и квалифицированным подбором оборудования. Такой объем задач по силам только профессиональному разработчику вентиляционной системы.
В компании «Мега.ру» вы найдете именно таких специалистов. Мы работаем на территории Москвы и Московской области, а также в ближайших регионах РФ. Рассматриваем варианты удалённого сотрудничества. За консультацией по всем интересующим вопросам обращайтесь к нашим специалистам. Координаты и способы связи указаны на странице «Контакты».
Вентиляция покрасочной камеры своими руками (расчет и система)
Содержание:
- Идеальные условия
- Сборка вентиляции
- Расчет вентиляции
Правильная вентиляция покрасочной камеры необходима сразу по нескольким причинам: безопасность (большинство растворителей опасно для здоровья человека) и следование технологии покраски.
Движение воздуха в области нанесения краски должно быть равномерным и направленным – оба фактора по-своему влияют на результат. Неправильно организованный поток воздуха может поднять взвесь с краски, в результате чего ее распыление сместится относительно положения краскопульта. Медленный или излишне быстрый поток воздуха приведет к неправильному высыханию материала.
Готовая покрасочная камера обойдется покупателю примерно в 15-20 тыс. € – приличная сумма даже для малого бизнеса. Между тем точное регулирование влажности, чистоты и движения воздуха (главные отличия профессиональной станции от обычного гаража) вполне можно организовать самому. Стандартный гараж 6х4 не дает больших возможностей для экспериментов, но риск получить неправильную покраску даже в таких условиях можно свести к минимуму, если стремиться создать условия близкие к идеальным.
Идеальные условия
Комнатная температура – уровень, на который определяется большинство производителей эмалей. 20-23 ˚C – идеальная температура покраски.
Организовать такой обогрев своими руками несложно, но гаражная вентиляция предполагает, что воздух будет двигаться интенсивно, а забирается он обычно с улицы. Таким образом, в системе окрасочной камеры появляется элемент, осуществляющий предварительный прогрев воздуха (прогревать его непосредственно в помещении опасно, из-за возможности воспламенения и трудностей регулировки).
Влажность воздуха не должна выходить за границы 70%, но и ниже 50% опускать ее не стоит. Сухой воздух в покрасочной камере приведет к засыханию поступающих из распылителя капель краски еще в воздухе. К счастью для мастеров, выполняющих систему воздухоотводов своими руками, при нормальных погодных условиях уличный воздух вполне укладывается в эти параметры – необходимо только планомерно подавать его с улицы и очищать. Другое дело, что для создания воздушного давления потребуется подавать воздух быстрее, чем его отводить (т.е. фактически воздух должен выталкиваться наружу).
Кратностью воздухообмена называется отношение объема удаленного (поступившего) за 60 мин воздуха к объему помещения.
В системе вентиляции окрасочных камер минимальная кратность воздухообмена должна составлять 8-10 единиц (чуть меньше при работе кистью). Для малярных цехов эта цифра начинается от 16-20 единиц, т.е. за час воздух в помещении должен полностью обновляться 16-20 раз (связано это с размерами помещения). Даже приблизительный расчет покажет, что это серьезная цифра. Однако требование это связано не столько с высыханием краски, сколько с безопасностью, а непосредственно в зоне нанесения лакокрасочных материалов норматив указывает, что скорость движения воздуха не должна превышать 0.1 м/сек.
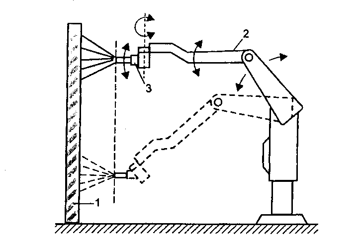
К вентиляторам для покрасочной камеры имеется еще одно требование – направление. Фиалковская в книге «Вентиляция при окраске изделий» рекомендует организовывать систему обновления воздуха строго вертикального типа. Т.е. подача воздуха организуется через полоток, а вытяжка через решетку в полу (в такой системе кратность обновления может достигать отметки 200 – другая система подсчета). Осуществить это на практике проблематично, но вытяжка в любом случае должна находиться на уровне пола, а воздух поступать из-за спины маляра.
Такое направление обеспечит отток токсичных веществе от человека и прибивание взвеси от краскопульта к полу.
При соблюдении даже части этих требований маляр может свести к минимуму риск отравления окрасочными материалами, образования пузырей, шагрени и пр. Все вышесказанное трудно реализовать в одном, непрерывном процессе, поэтому даже профессиональные покрасочные камеры имеют несколько режимом работы. Соответственно и расчет оборудования должен производиться для каждого этапа отдельно:
- Очистка воздуха – формирование необходимой температуры и влажности, предварительная фильтрация пыли.
- Рабочий режим – нагрев воздуха (требуется нагреть его до 25-40 ˚C, потому что во время перемещения он немного остывает) и равномерная подача в помещение для окрасочных работ.
- Сушка – равномерная подача горячего воздуха или нагрев краски инфракрасными пушками (40-80 ˚C).

Сборка вентиляции
Для гаража 6х4 кратность воздухообмена в 10 единиц может показаться чересчур большой, ведь фактически это может означать, что вентилятор будет интенсивно продувать помещение и добиться плавного движения воздуха в зоне покраски сложно. Значительно снижать обмен воздуха не стоит, но и респираторами запастись не повредит. Система вентиляции покрасочной камеры должна включать в себя два вентилятора: вытяжка и подача воздуха. Для нагнетания давления мощность последнего должна быть выше, однако не стоит забывать и о безопасности: расчет зависит от материалов, с которым приходится работать маляру, от их токсичности и взрывоопасности. К примеру, если речь идет о легко поднимающихся в воздух материалах, обновление воздуха в верхней части помещения должно производиться в два раза быстрее, чем в нижней (за один цикл устраняется две трети воздуха из верхней половины камеры). Когда пары от растворителей и лакокрасочных материалов тяжелее, расчет строится на обратном соотношении (1/3 воздуха из верхней части и 2/3 из нижней).
Отметим также, что поступающий в вытяжку воздух насыщен взрывоопасными газами и к детонации может привести обычная искра. Соответственно и вентилятор вытяжки должен иметь защиту от искр. Не лишней будет и защита воздухоотвода обратным клапаном, пресекающим распространение загоревшегося газа обратно в гараж.
Расчет вентиляции
В зависимости от бюджета и объема планируемых работ рассматриваться могут одно- и двухмоторные системы. Т.е. в простейшем случае вентиляция производится за счет одного вентилятора, расположенного в верхней части помещения. Воздух выталкивается через отверстия в нижней части комнаты. В идеально сконструированной покрасочной камере вытяжка должна находиться под каждым важным объектом (агрегат обезжиривания, окрасочный стенд, ванна для окунания), но объединять их нельзя.
Объем пропускаемого воздуха или производительность обычно указываются производителем в описании оборудования (средняя скорость воздушного потока – 20-30 см/с). Однако для защиты от пыли вентиляторы для покрасочных камер должны оснащаться фильтрами – забивание фильтров приводит к снижению эффективности оборудования.
Быстрее забивается нижний фильтр, но на обоих моторах лучше размещать двухфазные системы очистки (первый уровень для крупных частиц, второй для мелких).
Проще всего организовать вытяжку, заменив полы на решетки и обеспечив отток воздуха из под них. В бетонном основании гаража заранее можно предусмотреть траншеи, для установки вентиляционного оборудования, в противном случае придется поднять пол на пару десятков сантиметров. Решетки и дырчато-решетчатые листы продаются в строительных магазинах. При организации таких полов своими руками необходимо помнить, о необходимости периодической замены фильтров (произвести замену должно быть легко) и о расположении вытяжки таким образом, чтобы избежать возникновения мертвых зон и зон турбулентности.
Производительность «чистого» вентилятора рассчитывается следующим образом: объем помещения для покрасочных работ умножается на кратность, т.е. производительность равна произведению высоты гаража, ширины и кратности обмена. Мощность нагревателя определяется по формуле Р=Q*T*0.
36. Здесь T – разница температур между подаваемым воздухом и требуемым в окрасочной камере, Q – объем в кубических метрах.
Чаще, чем остальные, применяются вентиляторы канальные, т.е. встраиваемые непосредственно в систему притока. Плюсы таких систем – производительность и создание давления, минус – поток воздуха выходит строго в одном направлении – после попадания в помещение его нужно грамотно распределить по всему объему. Для этого применяются трубы воздухоотводов, щелевые решетки и переходы, позволяющие вывести воздух в нескольких точках.
Расчет диффузоров осуществляется по формуле N=L/(V * 2820 * D²). Здесь N – количество диффузоров, D – диаметр, V – скорость потока на диффузоре, L – расход в кубометрах. Кроме того, нужно учитывать, что все вентиляторы имеют свою диаграмму давления – несовпадение реальных и требуемых для покрасочных работ цифр приведет к низкой эффективности оборудования. Особенное внимание при сборке системы своими руками нужно уделить сопротивлению сети.
Пол в покрасочной камере
Покрасочная камера – специально оборудованное помещение, предназначенное для покраски металлических изделий, автомобилей. Покраска – сложный технологический процесс, и для получения качественного покрытия изделий бокс проектируется с учетом важных параметров. Одним из основных показателей, обеспечивающих нормальное функционирование всей системы, является вентиляция в покрасочной камере.
Основной проблемой покрасочных камер является выделение большого количества опасных для организма человека и окружающей среды паров растворителей и окрасочного тумана. Поэтому организация правильной вентиляции рабочего пространства помещения – важнейшая задача, требующая проведения точных расчетов. Вентиляция должна быть приточно-вытяжной общеобменной, а в нижней части камеры, т. е. в полу, необходимо установить вытяжку с фильтрующими элементами.
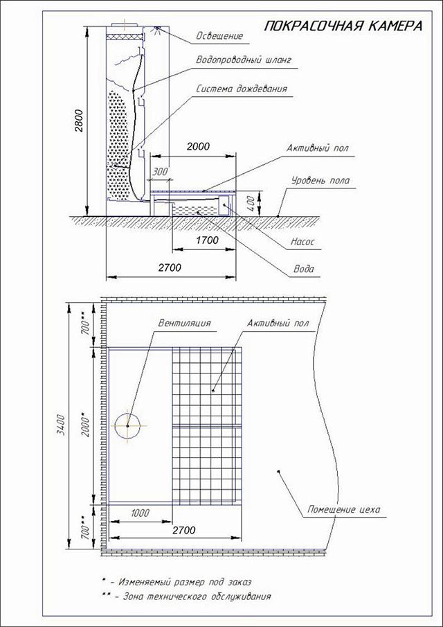
Часто нижняя вытяжка представляет собой утопленный пол с решетчатым основанием, установленным на 10-15 сантиметров выше пола.
Между полом и решеткой в этой конструкции расположены вентиляционные вытяжные сопла с фильтрами.
Принцип работы покрасочной камеры
Движение воздушного потока в камере
С точки зрения вентиляции покрасочная камера является сложной системой. Для равномерного нанесения краски на изделия, отсутствия разводов и предупреждения других дефектов покраски в боксе должны быть созданы правильно рассчитанные потоки воздуха. Поэтому вентиляция и фильтрация выброса краски – важные элементы каждой покрасочной камеры.
Их использование обеспечивает очистку нагнетаемого извне воздуха и воздуха в рабочем помещении, а также осаждение и вывод наружу окрасочного тумана. Принцип работы покрасочной камеры в режиме окрашивания заключается в одновременном выполнении определенных действий:
- Подача в рабочее помещение воздуха при температуре до 30 градусов;
- Забор отработанного воздуха из рабочего помещения и чистого воздуха с улицы;
- Выброс отработанного и очищенного воздуха из камеры.

Поступающий снаружи воздух очищается от пыли, проходя через пылезадерживающие фильтры, а отсасываемый из камеры отработанный воздух перед выбросом наружу очищается от частиц краски и паров растворителей, для чего используются краскозадерживающие фильтры. При этом кратность воздухообмена в покрасочном боксе, т. е. отношение удаляемого или подаваемого в помещение воздуха за один час к внутреннему объему рабочего помещения, может доходить до 130-200 раз в час.
Получается, что воздух в рабочем пространстве может циркулировать, выбрасываться или подаваться прямотоком.
Виды систем вентиляции
Вентиляция в покрасочной камере может быть одномоторной, двухмоторной и приточно-вытяжной. Кроме того, существуют помещения с проходящим воздушным потоком, с повышенным давлением и с разрежением.
В одномоторных камерах воздух поступает в помещение сверху, в рабочем помещении создается давление и красочный туман опускается вниз и выводится наружу через специально предназначенные для этого отверстия в полу.
В двухмоторных камерах воздух поступает также сверху. Дополнительно в них установлен и нижний мотор, отсасывающей воздух из рабочего помещения на улицу.
В таких боксах вентиляция более эффективна, но с экономической точки зрения использование двухмоторной камеры не всегда целесообразно. Например, при небольших объемах покрасочных работ, малых потоках машин часто выгоднее может быть установка одномоторной камеры. Приточно-вытяжная система вентиляции покрасочной камеры работает в трех основных режимах:
- Режим активной циркуляции воздуха с непрерывной фильтрацией, очисткой его от пыли перед началом работы
- Режим забора воздуха снаружи с последующей его фильтрацией, нагревом до 30 градусов, подачей в рабочее пространство и выводом наружу без фильтрации через отверстия в полу (т. е. режим, поддерживающий постоянную температуру в камере во время работы)
- Режим закачки отфильтрованного и нагретого до 60 градусов воздуха из камеры (т. е. сушка изделий после окрашивания)
Приточно-вытяжная вентиляция рассчитывается таким образом, чтобы в рабочем помещении не появлялись «мертвые зоны», в которых не обеспечена достаточная циркуляция воздуха, и после распыления краски ее мелкодисперсная пыль не выводится наружу, а зависает в воздухе.
Наиболее распространены камеры с повышенным давлением, в которых работает два вентилятора – нагнетающий и высасывающий. При этом производительность нагнетающего – больше, и образующийся в результате разности производительности вентиляторов излишек воздуха создает в камере повышенное давление. Внешняя пыль в рабочее пространство попасть не может вследствие того, что она вытесняется воздухом.
В камерах с проходящим потоком воздуха установлено два вентилятора с одинаковой производительностью, в результате чего давление снаружи равно внутреннему давлению в рабочем помещении. В отличие от бокса с повышенным давлением, такая камера должна быть максимально герметизированной во избежание попадания пыли внутрь. А в помещениях с разрежением имеются два вентилятора с разной производительностью: высасывающий воздух из камеры вентилятор имеет большую производительность.
Расчет системы вентиляции
Для правильного функционирования и безопасной работы важно произвести правильный расчет вентиляции внутри помещения, где производится окрашивание.
Это поможет эффективно решить вопросы скопления окрасочной пыли и ядовитых паров в помещении, безопасности оператора камеры, а также обеспечит высокое качество покраски автомобиля. Кроме того, правильный расчет вентиляции необходим и с точки зрения предупреждения возникновения пожара и даже взрыва.
Расчет усложняется тем, что расход воздуха для окрашивания изделий зависит от их размеров. Например, для окрашивания небольших изделий кратность воздухообмена должна составлять примерно 5 раз в час, а для покраски автомобиля уже необходима большая кратность воздухообмена – до 100 и больше раз в час, но не менее 40. Получается, что для больших покрасочных камер окраска небольших изделий не выгодна с экономической точки зрения.
В то же время большая кратность воздухообмена необходима для сохранности здоровья маляра, так как при этом в помещении устанавливается оптимальная циркуляция воздуха, и вредные примеси в рабочем пространстве не накапливаются. Поэтому в современных камерах часто рабочие процессы автоматизированы, и вред для здоровья операторов исключен.
Схема вентиляции покрасочной камеры любого типа практически одинакова и заключается в основных режимах воздухообмена в рабочем помещении – подача воздуха в камеру, выброс его наружу и рециркуляция. Воздухообмен всегда осуществляется с применением двух вентиляторов определенной мощности. Расчет системы вентиляции заключается в правильном подборе параметров вентиляторов в соответствии с требуемым воздухообменом в помещении.
Расчет воздухообмена и производительности вентиляторов
В среднем, стандартная покрасочная камера характеризуется производительностью воздухообмена, равной приблизительно 20 тысячам кубических метров в час. Такая производительность одновременно гарантирует выполнение двух важнейших условий:
- Высокое качество покраски изделий
- Безопасные условия для работы человека
Для каждого конкретного рабочего помещения номинальный воздушный поток можно рассчитать индивидуально. Для этого необходимо знать объем помещения и среднее рекомендуемое значение кратности воздухообмена (не менее 40 раз в час).
Перемножив два этих параметра, можно получить величину номинального воздушного потока для камеры.
Как уже говорилось, вентилятор для помещения окраски необходим не один, а два – приточного и вытяжного типов. Для каждого из них необходимо знать производительность и давление. Падение давления приточного вентилятора рассчитывается в соответствии с площадью потолочного фильтра, а давление падения вытяжного вентилятора – в соответствии с площадью напольного фильтра.
Требуемую для нормальной работы всей системы производительность вентиляторов выбирать необходимо по графикам зависимости давления от величины производительности воздухообмена в рабочем помещении камеры. Обычно такие графики предоставляют производители вентиляторов.
Пол покрасочной камеры – важный элемент вентиляции
Пол окрасочного отсека также является одним из элементов ее системы вентиляции. Для удаления отработанного воздуха в полу делают траншеи, которые потом закрываются металлическими решетками.
В траншеи устанавливают вытяжной вентилятор и фильтры для очистки воздуха. Также можно вместо траншей выполнить поднятие пола на 15–20 сантиметров. Для этого можно использовать готовый рифлено-дырчатый пол из стальных листов. В образовавшееся в результате поднятия пола пространство устанавливают вытяжной вентилятор и фильтры для очистки отработанного воздуха от паров растворителя и мелких частиц краски.
Вытяжные отверстия должны быть расположены так, чтобы в помещении не образовывались «мертвые зоны». Помимо этого, важно обеспечить быстрый и простой доступ к напольным фильтрам для их своевременной замены.
Вентиляционная система своими руками
При самостоятельном сооружении покрасочного бокса установку основных элементов вентиляционной системы начинают после того, как в помещении правильно обшиты стены и установлены осветительные элементы. Стены обычно обшиваются пластиковой вагонкой, металлическими листами. В качестве осветительных приборов рекомендуется использовать светодиодные или люминесцентные лампы.
Поток света при этом должен быть не менее шестисот люмен. После этого в пол гаража устанавливают вытяжку, изготовленную на основе вентиляторов. А с помощью нескольких тэнов под потолком устанавливают воздухозабор с тепловой пушкой.
Воздух с помощью воздуховодов разводится из тепловой пушки по периметру рабочего помещения к центру. Тепловая пушка представляет собой вентилятор, который прогоняет воздух через разогретые спирали. При самостоятельном изготовлении тепловой пушки вместо спирали можно использовать нихромовую проволоку. Можно соорудить тепловую пушку и другим способом. Он заключается в проведении гофры от вентиляторов.
Тэнов необходимо установить шесть или восемь. Это электронагревательные приборы, выполненные в виде металлических трубок, которые заполнены электрическим теплопроводящим изолятором. В центре трубки вставлена токопроводящая нить в виде нихромовой проволоки. Эта нить имеет определенное электрическое сопротивление и необходима для передачи требуемой удельной мощности на поверхность тэна.
Можно также использовать вместо тэна теплогенератор, который работает на солярке.
Однако тэны считаются более безопасными, поэтому предпочтительнее все-таки устанавливать именно их. Так осуществляется достаточный воздухообмен в покрасочном боксе, изготовленном самостоятельно.
Безопасность вентиляционной системы
Точный расчет и разработка эффективной схемы установки элементов вентиляции необходимы не только для получения отличного качества покраски автомобиля и других изделий, но и для обеспечения безопасной работы операторов камеры. Безопасность вентиляционной системы покрасочного бокса можно обеспечить тремя способами:
- Установка обратных взрывозащищенных клапанов на воздуховодах;
- Учет вида примесей, выделяемых в процессе работы;
- Установка дополнительных местных вытяжных устройств в определенных местах.
Так, если в результате работы выделяются примеси, пары которых легче воздуха, то вентиляция проектируется так, чтобы одна треть воздуха выводилась из нижней камеры, остальной воздух – из верхней.
Обратный порядок воздухообмена необходим в том случае, когда пары примесей тяжелее воздуха и, соответственно, их большее количество оседает внизу.
Взрывобезопасные местные вытяжки могут понадобиться в таких местах, где расположены установки струйной окраски, окрасочные столы и стенды, окрасочные ванны. Расчет вентиляционной системы покрасочной камеры – ответственная и непростая задача, от грамотного выполнения которой зависит нормальное функционирование самой системы, а также сохранность здоровья людей.
Чтобы все запланированные операции были произведены максимально качественно, нужно соблюдать ключевые требования к обустройству покрасочной камеры, и особое внимание нужно уделить полу.
Как обустроить пол покрасочной камеры?
Как показывает практика, пол покрасочной камеры играет немалую роль, так как при неправильном подходе он может стать источником загрязнений.
Чтобы предотвратить подобное развитие событий, изначально на полу нужно разместить специальное углубление, систему фильтрации и несущие решетки.
Изначально специалисты рекомендуют, чтобы заливка бетонного корыта происходила на глубине не менее 70-90 см. Если же под малярную мастерскую предназначено уже готовое помещение, где под полом имеется массивный фундамент или находятся ключевые узлы инженерных коммуникаций, тогда пользователю придется столкнуться с некоторыми осложнениями. К примеру, оптимальным вариантом в данной ситуации будет обустройство металлического основания глубиной в 30 см, которое будет содержать в себе фильтрационные элементы, а поверхность будет закрыта несущими решетками.
Что касается укладки фильтров для пола покрасочной камеры, то в идеале их нужно располагать наискось от центра бетонного корыта до его боковых частей. Подобное расположение даст увеличенную площадь фильтрации, что позволит использовать камеру более продуктивно. Кроме того, подобное размещение позволит обеспечить равномерное прохождение воздушной массы, что скажется на длительности сушки.
Специальное углубление в полу будет использоваться для обеспечения вывода загрязнений после обработки водным потоком, а также излишков красящих веществ из помещения.
При этом, благодаря качественным фильтрам работа в камере будет происходить в предельно сжатые сроки.
Напольные решетки
Для того, чтобы пол покрасочной камеры был максимально качественным, нужно подбирать все необходимые элементы с предельными качественными характеристиками. Одним из ключевых элементов при обустройстве пола будут решетки.
В настоящий момент различают несколько разновидностей решеток для покрасочной камеры:
- Узкие решетки, длина которых будет полностью соответствовать длине автомобиля, или же превышать ее. Оборудование данного типа позволит обеспечить максимально равномерное распределение воздушного потока, что даст гарантии того, что сушка будет проходить максимально равномерно.
- При наличии бетонного корыта возникает нужда в том, чтобы пол под автомобилем был полностью зарешечен. При этом, чтобы мусор не приводил к загрязнению фильтровальных элементов, под решеткой должны находиться листы металла из высокопрофильной стали.
Однако, непосредственно под колесами автомобиля должны присутствовать две длинные узкие полоски, не оснащенные стальными конструкциями. - Часто можно встретить ситуации, когда используется только одна узкая решетка. Конечно же, затраты будут минимальными, но и производительность покрасочной камеры будет заметно снижена. Кроме того, из-за частой смены малогабаритных фильтров пользователи столкнуться с дополнительными расходами. Также нужно отметить и тот факт, что высока вероятность того, что окрашиваемый автомобиль будет полностью закрывать решетку, из-за чего воздух не будет попадать в камеру.
Исходя из всего вышесказанного, можно сделать вывод, что чем большей будет поверхность фильтра, тем реже пользователь столкнется с его засорением и необходимостью в замене. А, следовательно, заметно снизятся затраты на обслуживание камеры. Еще один важный момент – для того, чтобы воздушный поток был распределен максимально эффективно, фильтры должны располагаться по всей длине помещения.
Качественная покраска является процессом сложным, требующим соблюдения ряда обязательных технических требований. Для достижения высоких показателей и соблюдения технологических требований оборудуются специальные помещения – покрасочные камеры, малярные цехи, гаражи и т. д.
Обязательным условием эксплуатации покрасочной камеры является наличие эффективной вентиляции
Обязательным условием безопасной эксплуатации таких объектов является наличие эффективной вентиляции. По этой причине многих людей интересует вопрос обустройства воздухообмена покрасочной камеры своими руками. На что нужно обращать внимание, если нужна вентиляция в малярке?
Общая информация
Покрасочная камера – это специальное помещение, которое предназначено для проведения качественной покраски различных поверхностей. Прежде всего, такие объекты применяются для нанесения краски на металлические поверхности.
Высокий уровень обеспечивается распылением мельчайших частиц краски с растворителем.
Своеобразный «туман» равномерно оседает на металлической поверхности, обеспечивая необходимый эффект.
С цехами неразрывно связаны помещения, оборудованные пескоструйным оборудованием. Пескоструйка служит для удаления загрязнений, следов коррозии и старых покрытий. Для решения этой задачи используются различные абразивные материалы.
К обустройству покрасочных камер предъявляется ряд обязательных требований. Наличие эффективной системы вентиляции – одно из таких условий.
Зачем нужен воздухообмен в малярке?
- Обеспечение безопасности людей.
- Создание благоприятных технологических условий.
- Соблюдение требований безопасности.
Вентиляция в малярных цехах выполняет следующие задачи:
- выведение отработанных масс газа, с высокой концентрацией вредных элементов;
- постоянное поступление в помещение свежего воздуха с оптимальными параметрами чистоты, температуры, влажности;
- рециркуляция воздуха, то есть очистка отработанных масс и многократное их использование после смешивания со свежим кислородом.

Вентиляция покрасочной камеры может быть трёх видов:
- Приточно-вытяжная.
- Одномоторная.
- Двухмоторная.
Вентиляция на территории покрасочной камеры может быть трех типов: приточно-вытяжной, одномоторной и двухмоторной
Требования и расчет
Покрасочные камеры должны быть обеспечены приточной и вытяжной вентиляцией, с дополнительным обустройством вытяжки в верхней части помещения. Нижний отвод воздуха оборудуется путём поднятия решётки на 15—20 см над основным уровнем пола. В это пространство монтируются воздухозаборники с фильтрами.
Система воздухообмена в окрасочной камере в обязательном порядке оснащается фильтрующей системой как на приточном, так и на вытяжном участке. С ее помощью из поступающих масс удаляется пыль. На выходе, из отработанных газов удаляются красящие частицы, с помощью специальных краскоулавливающих установок.
При проектировании вентиляции используются сложные расчеты.
Очень важно выполнить точный расчет скорости обновления воздуха в помещении. Почему это так важно?
- Слишком сильные потоки воздуха могут привести к нарушению технологии покраски.
- Низкая скорость поступления свежего кислорода приведёт к низкой эффективности проветривания и удаления технологических частиц. Такая ситуация несёт высокий уровень опасности для работающих на объекте людей.
На конструкцию покрасочной камеры и ее систему вентиляции существенное влияние оказывает размер и конструктивные особенности предметов, которые планируется покрывать краской в помещении.
Здесь важным показателем, который точно определяется при расчете системы вентиляции, является кратность. Кратность воздухообмена при обработке объектов с небольшой площадью поверхности должна быть пятикратной. То есть, столько раз должен обновляться воздух за единицу времени.
На объектах, предназначенных для обработки легковых автомобилей, кратность увеличивается в 50—100 раз. Исходя из параметров кратности, в камерах, обустроенных для покраски транспортных средств, не рентабельно производить нанесение краски на небольшие по площади предметы.
Стандартная камера имеет производительность от 15 тыс. до 30 тыс. кубических метров воздуха в час. Такой объём обеспечивает создание благоприятных рабочих условий для персонала и соблюдение технологических требований.
Стандартная покрасочная камера имеет производительность от 15 тыс. до 30 тыс. кубических метров воздуха в час
- длина – 7 метров;
- ширина – 4 метра;
- высота – 3 метра.
Определение объёма помещения производится путём умножения показателей длины, ширины и высоты. Наш объём равен 84 кубическим метрам. Цех используется для покраски автомобилей, его кратность равна 90. Рассчитываем производительность. 84 умножаем на 90. Получается проходимость воздуха 7 560 кубических метров в час. Показатель недостаточен и требует увеличения примерно в два раза. То есть нужно увеличить мощность оборудования или размеры помещения.
Чтобы рассчитать параметры приточно-вытяжной системы нужно учитывать параметры давления и производительности оборудования.
Давление находится в прямой зависимости от площади фильтров. Чем больше фильтров «на входе» и «выходе», тем ниже давление.
Устройство и схема
Устройство и схема вентиляции зависит от вида системы и ее особенностей. Одномоторная система воздухообмена подразумевает верхнюю принудительную подачу воздуха, за счёт чего происходит осаждение тумана с краской вниз к вытяжным элементам.
При двухмоторной системе дополнительный мотор оборудуется внизу. Он усиливает выведение отработанных газов за пределы рабочего пространства камеры. Это наиболее эффективный вид воздухообмена, но его оборудование экономически целесообразно только в случае высоких рабочих нагрузок, то есть, когда покраска производится постоянно.
Приточно-вытяжная система рассчитывается с возможностью функционирования в трёх режимах:
- Высокая скорость поступления и вывода воздуха с двухсторонней фильтрацией.
- Создание особых условий для покраски (температурного режима в 30 градусов).

- Создание особых условий для просушки (подаётся чистый воздух, доведённый до температуры в 60 градусов).
Вентиляция в гараже для покраски или малярном цеху в своём устройстве имеет следующие конструктивные элементы:
- Вентиляторы.
- Нагревательные элементы (тены).
- Пылеулавливающие фильтры на приточной линии.
- Краскоулавливающие и пылеулавливающие фильтры на вытяжной линии.
- Траншеи и отверстия в полу, закрытые решётками.
Схема вентиляции покрасочной камеры, находящейся в гараже
При проведении покрасочных мероприятий, важным технологическим фактором является определённый уровень давления. Нужные результаты обеспечиваются за счёт установки на притоке и вытяжке вентиляторов с регулируемой мощностью.
Если требуется повышенное давление, на большую мощность включается входной прибор. Если нужен разряженный воздух, вентилятор «на выходе» включается в режим более высокой мощности.
При проектировании и расчете важно избегать образования «мёртвых зон», где воздушные массы могут застаиваться и концентрироваться в загрязнённом виде. Ещё один важнейший показатель эффективности – герметичность.
Ключевым конструктивным элементом окрасочного цеха, оказывающим влияние на расчет, является пол. Это основа вытяжки для покрасочной камеры. Выведение отработанного воздуха производится через специальные технологические отверстия в напольном покрытии. Конфигурация, расположение и количество таких отверстий определяет эффективность.
Кроме отверстий для качественного выведения воздуха, может использоваться принцип поднятия пола. За счёт этого процесса образуется пространство по краям напольных плит, куда монтируется вытяжка и фильтрующие приспособления.
Инструкция по оборудованию
Может ли быть оборудована вентиляция в покрасочной камере своими руками? Обустройство системы для покрасочной камеры в гараже рекомендуется доверять профессионалам, так как это сложное и трудоёмкое занятие.
Но при большом желании и наличии всего необходимого можно смонтировать систему воздухообмена своими руками. Стоит понимать, что стандартная гаражная вентиляция для покрасочной камеры не подойдёт.
Схема организации воздухообмена на покрасочном участке с использованием технологии утилизации тепла
Работы по наладке вентиляционной системы производятся после проведения работ по обшивке внутреннего пространства и подключения электричества. Стоит понимать, что при проектировании, конфигурация должна изначально предполагать возможность монтажа системы притока и вытяжки.
Общая инструкция по монтажу вентиляции покрасочного цеха:
- Работы начинаются с пола, где устанавливаются вытяжные элементы с фильтрующими системами.
- Под потолком устанавливается система забора и нагрева воздуха. Монтируются фильтры, вентиляторы и другое оборудование. В качестве нагревательных элементов рекомендуется использовать тены. Для решения задач с нагревом на среднюю камеру хватает 5—8 тенов.
Тен – система токопроводящих элементов, вмонтированных в металлические трубки вместе с изолирующим материалом. - Монтируются трубы, через которые воздушные массы подаются непосредственно по всему пространству помещения.
Важным фактором, который регулируется специальными СНИП, является обеспечение в покрасочной камере требований по безопасности. Для решения этой задачи необходимо проводить:
- обработку специальными средствами рабочих поверхностей для создания защиты от угрозы взрыва или возникновения пожара;
- постоянный контроль содержания и концентрации примесей с помощью размещения специального измерительного оборудования;
- усиление воздухообмена в местах максимальных загрязнений и концентраций отработанных газов.
Соблюдение требований строительных норм и правил в вопросах оборудования вентиляции в покрасочных камерах позволяет организовать работу безопасно и эффективно.
Покрасочная камера своими руками — основные нюансы + видео
Покраска автомобиля – это сложный технологический процесс, который осуществляется в специальных помещениях, называемых покрасочными камерами, хотя его можно сделать и самостоятельно об этом тут. Готовые такие камеры, которые можно приобрести, стоят достаточно дорого, в связи с чем, многие автомаляры так и не решаются открыть свой бизнес. Однако покрасочную камеру можно сделать самому (это будет намного дешевле покупки уже готовой), главное только все правильно спроектировать и организовать. Сейчас я расскажу вам, как это можно и нужно сделать.
Подготовительный процесс.
Итак, начну с того, что для организации покрасочной камеры вам понадобится гараж, минимальные размеры которого будут 4×6 метров. Кроме того ни о каком помещении для покраски автомобилей не может идти и речи, если там нет вентиляции с фильтром. Вентиляция позволит очищать воздух внутри помещения, не даст проникнуть внутрь пыли с улицы, а также постепенно осадить и вывести туман краски наружу.
В зависимости от способа вентиляции выделяют одномоторные и двухмоторные покрасочные камеры. В первых воздух подается в помещении сверху и давит на туман краски, осаждая ее вниз, к полу, где присутствуют отверстия, через которые он и выводится наружу. А во вторых, двухмоторных, все то же самое, только внизу стоит еще один мотор, помогающий (отсосом) выведению наружу воздуха из помещения. Рекомендую применение именно последних, поскольку они обеспечивают лучшую циркуляцию воздуха, хотя за это придется достаточно заплатить и немного трудновато технически исполнить. Но это того стоит и быстро окупается, особенно при большом потоке машин.
Кроме того не забудьте и об установке воздушного фильтра тонкой очистки на выходе из воздушного короба, он не позволит проникнуть пыли снаружи в помещение и вызвать дефекты покраски. Воздушный короб вы также можете изготовить самостоятельно. Он представляет собой обычный жестяной ящик над потолком, в который нагнетается воздух снаружи (с помощью улитки).
Пол.
Для вывода воздуха из помещения в полу необходимо проделать траншеи и закрыть их металлическими решетками (в варианте двухмоторной покрасочной камеры именно в эти траншеи устанавливается второй мотор для вытяжки воздуха).
Чтобы не копать траншеи в полу, последний можно поднять с помощью решетки из арматуры на 10 – 15 сантиметров.
Вентиляция.
И снова вернемся к вентиляции: организации притока и вытяжки воздуха. Она (вентиляция) в вашей будущей покрасочной камере должна работать в трех режимах.
- режим: активная циркуляция поступающего отфильтрованного воздуха внутри помещения, нужен на подготовительном этапе для очистки воздуха от пыли.
- режим: поступающий с улицы воздух активно фильтруется, нагревается до 30°, и только после этого поступает в камеру, а впоследствии выводится через траншеи в полу (без фильтрации). Этот режим помогает поддерживать постоянную температуру во время покраски и избавиться от тумана из краски.

- режим: воздух закачивается в вытяжку, фильтруется, нагревается с помощью тэнов до 60° и подается обратно, в камеру. Используется для сушки покрашенного автомобиля.
Так вот, очень важно, как вы эти входные и выходные отверстия для воздуха расположите, ведь от этого напрямую будет зависеть качество выполняемой работы. Поскольку при неудачном проектировании расположения вытяжных отверстий в помещении при работе могут организовываться мертвые зоны с взвесями из лакокрасочных материалов или завихрений.
Кроме того в вентиляционной системе обязательно должна присутствовать функция регулировки мощности подачи воздуха. Она поможет в будущем решить проблему засоренности воздухоочистительных фильтров, а, следовательно, и образования лакокрасочных взвесей. Кстати, из-за быстрой засоряемости названные фильтры должны быть установлены так, чтобы их замена не отнимала у вас много времени. Отдавать же предпочтение лучше двухступенчатым фильтрам, у них срок службы дольше.
Сушка.
Как уже упоминалось выше, для сушки в покрасочной камере используются тэны. Неплохим вариантом является использование электротэнов, но теплогенераторы на отработанном масле, дизельном топливе или газе обходятся дешевле в процессе эксплуатации. На сегодняшний день термогенераторы не только имеют различную производительность и мощность, но и наделены автоматической регулировкой температуры.
Альтернатива сушке – инфракрасная лампа.
Вместо сушки воздухом в покрасочной камере можно использовать инфракрасные лампы. Они и устанавливаются проще, и сушка проходит быстрее. Здесь нужно лишь обеспечить равномерность подачи в камеру теплого воздуха. Что можно сделать с помощью системы воздухоотводов (с несколькими точками выхода) над потолком.
Лучше если управление сушительным оборудованием и приточно-вытяжной вентиляцией будет осуществляться с пульта, который, кстати, очень важно удобно расположить и наделить функцией мгновенного отключения систем в чрезвычайных случаях, например, при пожаре.
Внутренняя отделка.
У внутренней отделки есть свои стандарты и правила. В основном покрасочные камеры обивают пластиковой вагонкой, как говорится, дешево и сердито. Однако я не рекомендовал бы вам такую отделку, лучше использовать металлический профиль, поскольку в помещениях такого рода всегда есть риск возникновения пожара.
Также если вы планируете утепление пространства между отделочным материалом и непосредственно стеной, используйте для этих целей негорючую изоляцию.
Цвет стен и потолка должен быть обязательно белым. Это позволит при покраске машин правильно воспринимать цвета. Краску для внутренней отделки лучше использовать порошковую. Она и более стойкая, и более пожаробезопасна.
Освещение.
Освещение в подобного рода помещениях должно быть хорошим (около 1000 – 2000 лк). Лампы должны располагаться не только на потолке, но и на стенах. Сегодня наиболее оптимальным вариантом считается применение светодиодных светильников.
Они и экономнее люминесцентных ламп в три раза, и безопаснее, и не нуждаются в замене, а главное дают яркий и ровный свет, что необходимо по технологии покраски автомобиля.
Помещение для маляров.
Свою покрасочную камеру не забудьте оборудовать и помещением для автомаляров. Там они смогут переодеться, хранить инвентарь и отдыхать во время сушки между стадиями покраски автомобиля. Если под камеру вы переоборудуете свой гараж, то помещением для автомаляров может служить соседний гараж либо небольшая пристройка. Второй вариант был бы более предпочтительный, так как желательно, чтобы данное помещение примыкало непосредственно к камере, причем не просто примыкало, а объединялось с ней при помощи окна (через него рабочий персонал сможет следить за процессом сушки и быстро среагировать в случае нештатных ситуаций). Его, кстати, сделать совсем не сложно. Нужно лишь в общей стене пробить дыру и установить стеклопакет.
Пожалуй, на этом все. Удачи вам в ваших начинаниях! Главное – помните: не стоит спешить, ведь гораздо умнее и экономнее продумать все на этапе планирования, чем потом терять деньги, клиентов, репутацию, исправляя ошибки в уже готовой и функционирующей покрасочной камере.
Видео
Рекомендую прочитать:
Вентиляция и важность вытяжного вентилятора покрасочной камеры
Когда в наших машинах есть кранцы, мы отвозим их к специалистам, чтобы они починили. Мы бросаем машину и никогда особо не задумываемся о том, что делается для ее ремонта, о работе, а иногда и о связанных с этим опасностях. Работа в автомастерской означает, что вы постоянно окружены потенциальной опасностью.
Есть электроинструменты, используемые для резки и формовки, а также много очень технического и тяжелого оборудования по всей мастерской.Однако место, где все становится немного опаснее, находится в самой кабине для распыления краски. Вы можете смотреть на парней, распыляющих на вашу машину, с безопасного расстояния, но пока они там, они окружены газами, которых вы не видите, и эти газы могут быть очень опасными для вашего здоровья.
Защита
Лучший способ защитить сотрудников от этих опасностей — установить вытяжной вентилятор для окрасочной камеры , чтобы обеспечить хороший воздушный поток и отвод токсичных газов из кабины.Современные покрасочные камеры должны быть спроектированы таким образом, чтобы они могли фильтровать все горючие газы и направлять весь воздух в сторону вытяжного вентилятора, чтобы обеспечить надлежащую вентиляцию. Этот вытяжной вентилятор должен работать независимо и должен работать во время распыления, а также после его остановки.
Необходимо установить фильтры, улавливающие подавляющее большинство паров, и кабина должна быть полностью закрыта уплотнениями на всех дверях.
Вентиляторы
При конструировании окрасочной камеры с вытяжным вентилятором для вентиляции есть некоторые элементы оборудования, без которых вы не можете обойтись.Должны быть установлены вентиляторы для циркуляции воздуха и отвода газов за пределы здания. Поэтому необходимо убедиться, что вентилятор экстрактора покрасочной камеры не заблокирован, а это означает, что он не перегреется и не будет работать должным образом. Обязательно регулярно проверяйте его, чтобы убедиться, что он работает на пиковом уровне.
Фильтры
Для вашей покрасочной камеры нужен фильтр, и вы можете выбрать один из двух. Сначала у вас есть выпускной фильтр, а затем впускной фильтр.Вытяжной фильтр улавливает распыленные покрытия до того, как они попадут в окружающую среду, а всасывающий фильтр используется для очистки воздуха, попадающего в саму окрасочную камеру, от грязи и других загрязнений.
Важно проверять и заменять ваши фильтры при необходимости, потому что, если они не работают должным образом, люди, работающие внутри окрасочной камеры, могут подвергаться опасности, а вы не хотите, чтобы это произошло.
Прочие опасности
Существует множество случаев, в том числе вдыхание токсичных паров, которые очень вредны для здоровья людей, и вам необходимо поддерживать надлежащую вентиляцию кабины, чтобы избежать этого.Пожар представляет собой реальную опасность из-за паров краски, поэтому настоятельно рекомендуется использовать систему пожаротушения. Плохое качество отделки автомобилей вероятно, если система вентиляции не улавливает пыль, грязь и другие загрязнения.
Поддержание оптимальной работы вытяжного вентилятора окрасочной камеры необходимо для обеспечения безопасности рабочих при выполнении своей работы и для правильного опрыскивания автомобиля.
Самостоятельная окрасочная камера для хобби — Vent Works
Создайте собственную окрасочную камеру
Если вы делаете это самостоятельно или просто хотите высококачественную окрасочную камеру, создание окрасочной камеры самостоятельно может оказаться для вас правильным путем.
Все, что вам нужно, — это некоторые основные инструменты, общие материалы и хотя бы несколько часов. Недавно мы создали нашу собственную покрасочную камеру для хобби, и это нам очень понравилось, поэтому мы создали эту статью, чтобы показать вам, как мы это сделали. Выберите сорт древесины, который вы предпочитаете, следуйте инструкциям и начните строить окрасочную камеру.Ниже мы осветили некоторые преимущества созданной нами окрасочной камеры для хобби.
Характеристики покрасочной камеры Hobby
- 265 CFM вытяжной вентилятор, 115 В, 1.9 ампер, 1500 об / мин.
- Заземленный шнур питания длиной 7 футов.
- Монтажная панель из оцинкованной стали 24 калибра для воздуходувки.
- Стойка для фильтров из оцинкованной стали, размер 24, для использования со стандартным сменным фильтром печи. 12 дюймов x 24 дюйма x 1 дюйм
- Круглый выпускной патрубок 4 дюйма для облегчения вентиляции (стандартное вентиляционное отверстие осушителя)
- Фанера толщиной 1/2 дюйма для нижней, боковых, задней и передней панелей.

- Оргстекло толщиной 1/4 дюйма для верхней панели.
Выбор воздуходувки для окрасочной камеры для хобби
Это воздуходувка, которую мы использовали:
Мы выбрали эту воздуходувку Dayton, потому что она тихая и мощная.Мы провели сравнительные испытания множества различных воздуходувок и вентиляторов, Dayton 6FHX9 был самым тихим, он лучше всех выдерживал статическое давление и получил лучшую общую производительность среди всех других нагнетателей аналогичной мощности (265 кубических футов в минуту). Кроме того, мы получили положительные отзывы о воздуходувке от многих читателей, которые использовали его в своей кабине.
Мы знаем, что розничные цены Grainger могут быть довольно высокими, поэтому мы рекомендуем вам присмотреться к ним, если стоимость вызывает беспокойство. Если вы решите использовать другой вентилятор, а длина вытяжного канала превышает 8 футов, убедитесь, что он выдерживает статическое давление так же, как и вентилятор Dayton.
Убедитесь, что важные характеристики аналогичны изображенным ниже.
Шнур вентилятора
Эти типы воздуходувок не имеют сетевого кабеля, поэтому вам придется приобрести заземленный шнур питания и подключить его самостоятельно. Этот процесс чрезвычайно прост, буквально 3 провода; 1 положительный, 1 отрицательный и 1 заземляющий. Не волнуйтесь, вам не понадобится ни опыт, ни знания в области электричества, чтобы подключить воздуходувку.
Панель для крепления вентилятора
Мы использовали оцинкованную сталь 24-го калибра для монтажной панели вентилятора, чтобы можно было получить верхний или нижний выпуск, просто перевернув панель.Мы установили вентилятор снаружи, чтобы не повредить обмотки двигателя вредной краской и растворителями.
Подробнее о монтажной панели вентилятора
Адаптер вентилятора квадратный-круглый
Когда мы строили окрасочную камеру, мы создали собственный переходник от квадрата к круглому. Люди начали спрашивать нас, где взять адаптер, поэтому мы начали искать адаптер, который подойдет. После долгих исследований мы пришли к выводу, что в продаже не существует адаптеров, которые могли бы правильно переходить от квадратного фланца воздуходувки к выпускному отверстию круглого воздуховода.Именно тогда мы поняли, что можем повысить ценность, если сделаем этот адаптер коммерчески доступным.
Этот продукт позволяет вентилировать Dayton Blower 6FHX9 с помощью стандартного круглого воздуховода диаметром 4 дюйма. Этот адаптер можно использовать с жестким, полужестким или гибким воздуховодом.
Примечание. Вы должны согнуть фланец заподлицо с корпусом воздуходувки, чтобы расположение болтов переходника правильно совпадало.
Предупреждение. Он может не подходить для других воздуходувок, поскольку размеры фланцев и расположение болтов различаются.
Подробнее об адаптере для вентилятора с квадратной формы на круглую
Стойка фильтра
Когда мы создавали фильтровальную стойку для нашей окрасочной камеры, мы использовали оцинкованную сталь 24-го калибра, мы понимаем, что большинство людей не смогут использовать этот материал. Стойку фильтра можно сделать из дерева или из той же фанеры, из которой вы строите будку. См. Ниже, если вы хотите купить стальную фильтрующую стойку Vent Works.
Примечание:
Дешевые стандартные печные фильтры работают лучше всего, если вы используете дорогой фильтр для аллергенов. E.грамм. фильтрат печного фильтра будет ограничивать поток и вызывать недостаточную вентиляцию.
Подробнее о стойке для фильтров
Освещение
Мы решили не включать внутреннее освещение в саму будку, вместо этого мы использовали оргстекло в качестве верхней панели. Таким образом, свет будет легко попадать в кабину, и мы сможем быстро отрегулировать свет в зависимости от того, где мы находимся и что делаем.Мы рекомендуем оргстекло от 1/8 «до 1/4», но вы можете использовать любой полупрозрачный материал. В местных магазинах бытовой техники должно быть что-то пригодное для использования, но толщина, размер и материалы могут отличаться. Мы использовали настольную пилу, чтобы разрезать материал, но циркулярная пила подойдет. Обязательно установите глубину пильного диска так, чтобы он просто очищал материал, иначе материал мог расколоться, потрескаться или сколотиться.
Древесная альтернатива
Покрасочная камера, используемая в этой статье, была сконструирована с использованием стойки фильтра Vent Works и монтажной панели вентилятора, но при желании вы можете сделать эти части самостоятельно из дерева.
Если вы используете дерево для панели крепления вентилятора, вам нужно будет создать панель, вырезать отверстие, просверлить пилотные отверстия в панели и в воздуходувке, получить подходящие крепежные детали и защитный уплотнитель.
Ниже представлены изображения будки, построенной с использованием той же фанеры для камеры, рамы фильтра, монтажной панели вентилятора и верхней панели (вместо плексигласа).
Часто задаваемые вопросы
- ▼
Взрывобезопасна ли эта окрасочная камера?
.Нет, чтобы классифицировать как взрывозащищенный, необходимо использовать пароизоляционный двигатель и переключатели.Взрывозащищенные компоненты очень дороги и сделают эту будку непомерно высокой. Однако для того, чтобы произошел взрыв, концентрация легковоспламеняющихся паров должна быть на уровне нижнего предела взрываемости (НПВ) или превышать его. В большинстве случаев, если вентилятор работает до ввода пара, концентрация пара будет ниже нижнего предела взрываемости. 
- ◄
Потребуется ли обслуживание покрасочной камеры?
Да, необходимо периодически заменять фильтры и проверять воздуховоды на предмет засорения.Это обеспечит надлежащий поток воздуха, что снизит риск скопления пара. - ◄
Как далеко я могу проложить выхлопной канал?
Выхлопная труба увеличивает трение (сопротивление воздушному потоку), поэтому вам следует располагать кабину как можно ближе к выхлопной трубе. По возможности, Vent Works рекомендует использовать вытяжной канал длиной не более 15 футов. - ◄
Где я могу купить выхлопную трубу?
.Созданная нами окрасочная камера для хобби имеет круглое выпускное отверстие диаметром 4 дюйма, которое можно вентилировать с помощью стандартного вентиляционного канала сушилки, который легко доступен в большинстве магазинов бытовой техники и товаров для дома. 
- ◄
Может ли отработанный воздух из окрасочной камеры повредить растительность возле выпускного отверстия?
Нет, если фильтр в кабине установлен и поддерживается надлежащим образом, излишки распыления и частицы будут удалены без ущерба для жизни растений.
Список вырезов и сборка
Загрузить список каталогов и инструкции по сборке ниже
Инструкции по сборке покрасочной камеры для хобби и список материалов для резки
Если вам понравилась эта статья, передайте ее, поделитесь с друзьями и другими людьми, которые сочтут ее ценной.Кнопки, расположенные ниже, упрощают эту задачу, поэтому, пожалуйста, поделитесь ею, это очень много значит для нас.
![]()
Спасибо
Vent Works
Пожалуйста, включите JavaScript, чтобы просматривать комментарии от Disqus.
Автоинструменты и принадлежности для кузовных работ
Работа в автомастерской означает, что вы постоянно окружены опасностями. Электроинструменты и тяжелое оборудование — все это в изобилии в цехе, но, пожалуй, одна из самых опасных областей кузовного цеха — это покрасочная камера.
Хотя распыление краски на поверхности может показаться безобидным занятием, оно влечет за собой постоянное окружение себя химическими веществами, которые могут быть опасны для вашего здоровья и безопасности, если с ними не обращаться при правильных обстоятельствах. Лучший способ защитить себя и своих сотрудников от опасности — это построить надежную систему вентиляции окрасочной камеры, обеспечивающую оптимальный воздушный поток.
Требования к потоку воздуха в окрасочной камере
OSHA: OSHA утверждает, что кабины для покраски должны быть спроектированы таким образом, чтобы отфильтровывать легковоспламеняющиеся загрязнения и отводить воздушные потоки к вытяжке для надлежащей вентиляции.Должна быть какая-то независимая вытяжная система для выпуска за пределы здания. Система вентиляции должна постоянно работать во время и после опрыскивания. Отработанный воздух не следует возвращать обратно в окрасочную камеру, так как это может вызвать загрязнение.
EPA: EPA имеет очень конкретные инструкции относительно вентиляции окрасочной камеры. На всех окрасочных камерах должны быть установлены фильтры с эффективностью улавливания не менее 98%, а окрасочные камеры, используемые для повторной окраски автомобилей, должны быть полностью закрыты и вентилироваться при отрицательном давлении или до 0.
05 дюймов водяного манометра положительного давления для кабин с уплотнениями на всех дверях и других проемах, а также с автоматической системой балансировки ».
К счастью, наличие этих рекомендаций позволяет относительно легко настроить соответствующую и должным образом вентилируемую покрасочную камеру.
Как оптимизировать воздушный поток в окрасочной камере
При строительстве системы вентиляции окрасочной камеры следует инвестировать в некоторые ключевые элементы оборудования:
Вентиляторы
Вентиляторы покрасочной камеры должны быть установлены для облегчения циркуляции воздуха и удаления загрязняющих веществ за пределы здания.Вы должны регулярно проверять вентиляторы вашей покрасочной камеры на предмет блокировки или неисправности, чтобы обеспечить максимальную производительность.
Фильтры
В покрасочных камерах используются два типа фильтров для окрасочной камеры: выпускные фильтры и впускные фильтры.
Выхлопные фильтры (также известные как ограничители избыточного распыления краски) работают за счет улавливания чрезмерно распыленных покрытий до того, как они выбрасываются в окружающую среду, чтобы сократить производственные выбросы. Если у вас есть покрасочная кабина с нисходящим потоком, вам нужно, чтобы выхлопные фильтры были установлены рядом с полом.Если у вас есть кабины с перекрестной тягой, они будут расположены с противоположной стороны от приточных фильтров.
Впускные фильтры используются для очистки воздуха, попадающего в камеру окрасочной камеры, от грязи и загрязнений. Они расположены на потолке кабины для окраски с нисходящим потоком и в дверях кабины для перекрестной окраски или рядом с ними.
Регулярно контролируйте и заменяйте фильтры покрасочной камеры, чтобы обеспечить хорошую вентиляцию окрасочной камеры. Забитый фильтр неэффективен для удаления опасных загрязнений и принесет вам больше вреда, чем пользы.
Дизайн
Кабины для покраски с плоским верхом — популярный выбор многих производителей, поскольку они дешевы.
Однако такая конструкция приводит к плохому потоку и циркуляции воздуха. Лучше всего выбрать покрасочную кабину с остроконечной крышей, которая обеспечивает лучший поток воздуха и обеспечивает более качественную отделку.
Риски плохой вентиляции окрасочной камеры
Плохая вентиляция окрасочной камеры связана с множеством опасностей. Среди них:
Токсичные пары — Возможно, наиболее очевидным последствием плохой вентиляции окрасочной камеры является риск вдыхания токсичных паров.Растворители и другие химические вещества, используемые в окрасочной камере, содержат ЛОС (летучие органические соединения), которые со временем могут нанести вред вашему здоровью и здоровью ваших сотрудников. Обеспечение надлежащей вентиляции окрасочной камеры помогает контролировать здоровье и безопасность.
Пожар — Из-за большого количества опасных материалов и оборудования, используемого в покрасочной камере, пожар представляет собой вполне реальную опасность.
Если пары краски попадут в контакт с электрическим разрядом или химически активными химикатами, пожар может начаться в считанные секунды.У нас есть системы пожаротушения, доступные для покупки, и они определенно стоят вложенных средств. Однако также важно принять необходимые меры для предотвращения возгорания в первую очередь — и это начинается с надлежащей вентиляции.
Низкое качество отделки — Плохая система вентиляции с меньшей вероятностью улавливает пыль, грязь и другие загрязнители, что приводит к некачественной окраске. Кроме того, плохо вентилируемая окрасочная камера влияет на способность ваших сотрудников выполнять отличную работу.Хорошо вентилируемая окрасочная камера поможет вам добиться более высокого качества отделки, сократить расходы и время цикла, а также повысить удовлетворенность клиентов.
Обеспечение вентиляции окрасочной камеры
Регулярное техническое обслуживание окрасочной камеры помогает продлить срок ее службы, улучшить качество вашей работы и защитить ваших сотрудников.
Вот некоторые работы по техническому обслуживанию, которые вы должны выполнять на регулярной основе, чтобы поддерживать вашу будку в хорошем рабочем состоянии.
- Регулярно проверяйте и заменяйте воздушные фильтры. Придерживайтесь графика, чтобы все было сделано.
- Держите свою будку в чистоте . Очистка окрасочной камеры — один из лучших способов поддерживать в ней качественный воздушный поток. Используйте швабру и очиститель на основе растворителя, чтобы удалить излишки брызг, затем вымойте кабину под давлением, чтобы тщательно вымыть.
- Запланируйте регулярные проверки у производителя окрасочной камеры. Большинство производителей покрасочных камер предлагают услуги по осмотру оборудования и профессиональной чистке, чтобы ваша окрасочная камера всегда работала с максимальной производительностью.Воспользуйтесь этим, чтобы обеспечить надлежащую вентиляцию покрасочной камеры.
Обеспечение хорошей вентиляции окрасочной камеры имеет решающее значение для здоровья и благосостояния вашего магазина.
Если вы ищете новую окрасочную камеру, обязательно ознакомьтесь с нашей линией покрасочных камер Col-Met. Они имеют двускатную крышу, которая обеспечивает лучший воздушный поток, чем покрасочные камеры с плоским верхом, что обеспечивает выдающиеся результаты.
Покрасочные камеры Вытяжная вентиляция — Прямые промышленные вентиляторы
Если вы распыляете краску, вам нужны вентиляторы.Краска выделяет летучие органические соединения, которые создают опасность возгорания и создают проблемы для здоровья и окружающей среды. Вот почему NFPA, OSHA и EPA имеют подробные требования к вентиляции, и у вас не может быть хорошей вентиляции без вытяжных и подпиточных вентиляторов.
Мы продаем вентиляторы, разработанные специально для покрасочных камер. Они взрывозащищены для опасных сред, и многие из них содержат фильтры. Эти узкоспециализированные вентиляторы разработаны с полностью закрытыми взрывозащищенными двигателями и лопастями из искробезопасных или цветных металлов.
Эти вентиляторы обычно оцениваются по критериям класса, подразделения и группы. В зависимости от типа опасных химикатов, паров, газов или пыли в атмосфере важно приобрести вентилятор или нагнетатель на основе этих элементов. Мы предлагаем модели производительностью до 55 000 кубических футов в минуту и доступны во многих размерах лезвий.
По мере высыхания краски, особенно масляной краски, она выделяет пары. Это может вызвать головную боль, головокружение и тошноту. Это не только плохо для сотрудников, но также влияет на производительность и качество.Не забывайте, что эти пары могут также повлиять на других, работающих или живущих поблизости.
Пары краски имеют низкую температуру воспламенения и легко воспламеняются. Эффективная вентиляция предотвращает скопление паров, что происходит в основном на уровне пола, но все же важно устранить все потенциальные источники возгорания. Стандарт NFPA 33 касается предотвращения пожара в окрасочных камерах, а NFPA 70 охватывает источники возгорания, такие как электрические выключатели.
И, наконец, EPA также имеет строгие правила в отношении вентиляции окрасочной камеры.
Кабины обычно конфигурируются одним из двух способов для обеспечения надлежащей вентиляции. Это нисходящая и поперечная тяга. В кабине с нисходящим потоком вытяжной вентилятор, установленный внизу, вытягивает насыщенный парами воздух, в то время как подпиточный воздух поступает через верх камеры. При поперечной тяге вытяжка размещается на противоположной стене кабины от забора.
И OSHA, и NFPA предъявляют строгие требования в отношении расположения выпускных отверстий, чтобы загрязненный воздух не попадал обратно в камеру.В большинстве кабин также требуются фильтры на выхлопе, иногда называемые ограничителями распыления краски. (Фильтрация подпиточного воздуха не является обязательной, но настоятельно рекомендуется для сохранения качества наносимой отделки.)
Нормы NFPA также требуют, чтобы вентиляторы были взрывобезопасными, и не рекомендуют использовать вентиляторы с ременным приводом.
Если выбран ременной привод, и ремень, и шкив должны быть полностью закрыты.
Все продаваемые нами вентиляторы для окрасочных камер являются взрывозащищенными.Мы предлагаем вентиляторы как для подпиточного (приточного), так и для вытяжного воздуха, с фильтрами и без них. Вот подробности:
Взрывозащищенные настенные вытяжные вентиляторы со ставнями
Эти вентиляторы монтируются в квадратные корпуса с жалюзи на внешней поверхности. Это предотвращает попадание ветра и дождя, когда будка не используется. Вентиляторы этого типа доступны с производительностью до 7 500 кубических футов в минуту.
Взрывозащищенные настенные вытяжные вентиляторы с фильтром Эти вентиляторы способны обрабатывать до 15 000 кубических футов в минуту и оснащены фильтрующим элементом для улавливания твердых частиц, которые в противном случае были бы выброшены.Обратите внимание, что фильтры следует регулярно проверять и заменять по мере необходимости.
Взрывозащищенные панельные вытяжные вентиляторы настенные
Эти вентиляторы устанавливаются на стену или металлическую панель. Доступны модели со скоростью до 15 000 кубических футов в минуту.
Приточные или приточные вентиляторы с взрывозащищенными фильтрамиВажно, чтобы подпиточный воздух был чистым, поскольку твердые частицы могут повлиять на качество отделки краски. Эти приточные вентиляторы имеют в своих корпусах фильтры, удаляющие вредные загрязнения.Доступны модели с производительностью до 55 000 кубических футов в минуту.
Взрывозащищенные трубчатые осевые канальные вентиляторы Трубчатые осевые вентиляторы предназначены для встраивания в цилиндрические воздуховоды. Доступны модели с ременным и прямым приводом. Модели с ременным приводом занимают немного больше места и требуют большего обслуживания. Также обратите внимание на необходимость в ограждении. Доступны вентиляторы мощностью до 55 000 кубических футов в минуту.
Вентиляторы циркуляции воздуха не предназначены в первую очередь для отработанного или подпиточного воздуха.Их цель — поддерживать движение воздуха. Это помогает удалить запахи и испарения и поддерживает более комфортную температуру на рабочем месте. Доступны модели, обеспечивающие до 40 000 кубических футов в минуту.
Вентиляция покрасочных камер для обеспечения безопасности и качестваВ окрасочных камерах необходима принудительная вентиляция. Это необходимо для обеспечения безопасности рабочих, сведения к минимуму рисков возгорания и взрыва, защиты окружающей среды и поддержания качества покрытия. Всегда проверяйте местные нормы и правила на предмет требований, характерных для вашего местоположения.
Industrial Fans Direct предлагает самую полную линейку взрывозащищенных вентиляционных вентиляторов, нагнетателей и оборудования для окрасочных камер и множества других опасных мест на рынке сегодня.
Если вам требуются настенные вытяжные вентиляторы со ставнями, настенные вытяжные вентиляторы панельного типа, настенные вентиляторы циркуляции воздуха, напольные вентиляторы, вытяжные вентиляторы с фильтром, воздухозаборные вентиляторы с фильтром или трубчатые осевые вентиляторы для установки в воздуховоды, мы вам поможем. Мы с гордостью предлагаем такие замечательные бренды, как National Fan Co., Canarm, Airmaster Fan, Triangle Engineering, TPI Corp. и Schaefer Ventilation.
При наличии множества различных типов вентиляторов выбор правильных вентиляторов для распыления краски может быть затруднительным. За помощью обращайтесь к специалистам по телефону: 866 727 1060.
Читать меньшеВ чем разница в вытяжных вентиляторах покрасочной камеры? — Garmat
В чем разница в вытяжных вентиляторах покрасочной камеры?
Если вы покупаете кабину для покраски и сравниваете расценки на оборудование, может показаться, что вы сравниваете «яблоки с яблоками», если вы не знаете, что характеристики или особенности существенно влияют на производительность.
Две покрасочные камеры могут показаться похожими, но имеют совершенно разные характеристики.
Есть несколько мелких, но точных деталей, которые отличают одну окрасочную кабину от другой и влияют на производительность вашей окрасочной кабины на протяжении всего срока ее службы. При таких важных инвестициях, как окрасочная камера, подумайте о том, какое влияние она окажет на вашу работу. Решения, которые вы принимаете сегодня, потенциально могут повлиять на вас (положительно или отрицательно) на десятилетия.
Одним из ключевых критериев является выбор вытяжного вентилятора.Эта важная деталь, которая поначалу может показаться неважной, очень важна для работы окрасочной камеры. Разница в конструкции вентилятора оказывает значительное влияние на стабильность и постоянство воздушного потока, срок службы фильтра и долговечность двигателя и подшипников.
Покрасочные камеры поставляются с двумя конфигурациями основных вытяжных вентиляторов: осевым и центробежным.
Трубные осевые вентиляторы Vs. Центробежные вентиляторы
Трубка осевая
Осевые вентиляторы предназначены для перемещения больших объемов воздуха при заданной потребляемой мощности и статическом давлении (сопротивление потоку воздуха).Трубчатые осевые вентиляторы представляют собой типичную конструкцию вентиляторов, используемых в недорогих окрасочных камерах, и выбираются из-за их низкой цены, но не обязательно из-за их эффективности.
Осевой вентилятор — самый старый и самый простой вид устройства для перемещения воздуха. Схема воздушного потока параллельна валу вентилятора. Эти вентиляторы широко известны как циркуляционные, пропеллерные и трубчато-осевые.
Самым большим недостатком осевых вентиляторов является их чувствительность к изменениям статического давления и сопротивление движению воздуха.По мере того, как фильтры в окрасочной кабине начинают загружаться избыточным распылением и частицами пыли, мощность осевого вентилятора быстро уменьшается, что снижает поток воздуха.
Трубно-осевые вентиляторы также значительно шумнее, чем реверсивные. Шум увеличивается по мере роста статического давления из-за увеличения скорости вентилятора, необходимой для поддержания воздушного потока. Трубно-осевой вентилятор также требует более строгого графика технического обслуживания, чтобы поддерживать работу вентилятора на уровне при первой установке.
Примечание. Компания Garmat USA не использует трубчатые осевые вентиляторы в своей стандартной линейке покрасочных камер для автомобилей, если заказчик специально не требует этого.
Центробежные вентиляторы
Центробежные вентиляторы ускоряют воздух в радиальном направлении, изменяя направление воздушного потока. Они тихие, надежные и способны работать в широком диапазоне статических условий. Этот тип вентилятора работает на более низких оборотах, накапливает меньше избыточного распыления, что снижает как шум, так и затраты на техническое обслуживание.
Центробежные вентиляторы трех типов:
Существует несколько типов центробежных вентиляторов, но три наиболее эффективных конструкции включают вентиляторы с прямым изгибом, обратным наклоном и крыльчатые вентиляторы с обратным наклоном.
Вентиляторы с прямой кривой являются наиболее эффективными для заданного набора условий, таких как мощность в лошадиных силах, размер и начальное статическое давление. Однако эти вентиляторы склонны к скоплению избыточного количества брызг, поэтому их лучше всего использовать на стороне подачи и обычно не рекомендуется использовать в системах вытяжки.
Вентиляторы с обратным наклоном используют лопасти, изогнутые против направления крыльчатки вентилятора. Обратное направление крыльчатки создает вакуум воздуха, который окружает лопасти, тем самым уменьшая скопление избыточного распыления.Эти вентиляторы очень эффективны в широком диапазоне статического давления и обеспечивают более постоянный воздушный поток, поскольку фильтры начинают загружаться избыточным распылением и частицами пыли.
Вентилятор обратного наклона с двойным впуском и лопастями с аэродинамическими профилями — это недавнее усовершенствование вентилятора с обратным наклоном для повышения эффективности. Он обладает всеми преимуществами вентилятора с обратным наклоном, но аэродинамическая конструкция лопастей обеспечивает большую мощность вентилятора при заданных оборотах и мощности и с меньшим уровнем шума, чем при стандартном обратном наклоне.Дополнительной особенностью этого выбора вентилятора является то, что двигатель не может быть перегружен при заданной скорости вращения колеса независимо от величины статического давления, приложенного к системе.
Инженеры Garmat USA обнаружили, что вентилятор с двойным входом и обратным наклоном с лопастями с аэродинамическим профилем обеспечивает наиболее стабильный воздушный поток среди всех вентиляторов на рынке. Стандартная линия окрасочных камер, CTOF (закрытые верхние и открытые передние окрасочные камеры) и подготовительных станций Garmat USA в стандартной комплектации оснащена вентиляторами с двойным впуском и обратным наклоном с лопастями с аэродинамическим профилем.
Как видите, выбор вентилятора может быть отдельной строкой в новом расценке на окрасочную камеру, однако это влияние имеет решающее значение для производительности окрасочной камеры. Убедитесь, что конфигурация вытяжного вентилятора указана в вашем расценке, чтобы вы понимали, что вы получаете взамен своей покупкой.
Энтони Демарест — Инженер по контролю и соответствию
Возникли вопросы по приобретению окрасочной камеры? Нажмите кнопку ниже.
{{cta (‘74557991-48dd-4773-ac3f-1e7a6e49402d’)}}
Выхлоп из кабины для самостоятельной окраски с использованием эффекта Вентури — Часть 2
Покрасочная будка, которую я переделал из старой тумбы под телевизор, готова.Я закончил с добавлением и вытяжкой в верхней части шкафа. Следующим шагом будет проветривание шкафа и установка какого-либо вытяжного устройства для покрасочной камеры. Я провел небольшое исследование. Вариантов было много. Вентиляторы для коробок, вентиляторы для компьютеров и вентиляторы для беличьих клеток — вот лишь некоторые из вариантов, с которыми я столкнулся.
Я только что закончил покупку небольшого специального пылесоса для своего пескоструйного шкафа. Имея это в виду, я решил проверить, могу ли я каким-то образом использовать нагнетательную сторону для вентиляции распылительного шкафа.Я хотел снизить расходы, поэтому, если бы я мог придумать систему, которая использовала бы обе стороны вакуума (отсос для абразивоструйной камеры и продуваемый воздух для окрасочной камеры), это было бы идеальным решением для окрасочной камеры. выхлоп.
Эффект Вентури
Я остановился на конструировании выхлопного двигателя из ПВХ, который будет использовать эффект Вентури для создания вакуума. вакуум вытянет воздух из вентиляционного отверстия в шкафу. Эффект Вентури — это физический принцип, согласно которому ограниченный поток (воздуха или воды) создает зону низкого давления непосредственно за ним.Сужение вызывает увеличение скорости среды, вызывая снижение давления среды. Это также вносит в него принцип Бернулли. Эффект Бернулли утверждает, что увеличение скорости вызовет снижение давления.
Они оба работают рука об руку. Вместо того, чтобы пытаться дать вам полное объяснение физики, лежащей в основе этого, вот несколько ссылок, которые, если вы хотите, вы можете изучить дальше:
Выхлоп из кабины боли
Дизайн, который я использовал, был простым и относительно недорогим.Я использовал секцию из четырехдюймового ПВХ профиля 80 и несколько 1,5-дюймовых ПВХ и угловые фитинги. Используя меньший ПВХ и фитинги, я планировал ввести выход из пылесоса в четырехдюймовый ПВХ с прямым угловым фитингом. Это направит поток воздуха к выходной стороне трубы. Вот анимированная иллюстрация того, что я планировал сделать.
4 причины, по которым вам нужна вытяжная стена для покрасочной камеры
Установлена ли в вашей покрасочной камере вытяжная перегородка? Если нет, вы можете подумать о добавлении одного из них при первой возможности.Вытяжные перегородки — это эффективный способ удалить ядовитые пары и пары, обеспечивая безопасное рабочее место.
Если вы выполняете много крупномасштабных работ в кузовном цехе, вам следует подумать о добавлении вытяжной стены к окрасочной кабине. Многие люди не осознают, что системы общей вытяжной вентиляции могут быть перегружены и перегружены, что снижает их способность работать эффективно. Именно поэтому вы не найдете профессионалов, рекомендующих смесительные комнаты без специальных систем вентиляции.Фактически, добавление вентилятора к перегруженной системе вентиляции не решает проблемы. Он просто смешивает токсичные пары и пары с чистым воздухом, что ставит под угрозу ваше здоровье и здоровье ваших коллег.
Вот несколько причин, по которым вам нужно подумать о добавлении вытяжной стены в покрасочную кабину:
1. Вытяжные стенки отлично подходят для поддержания чистоты на рабочем месте.
Никто не хочет иметь дело с избыточным распылением. Это неаккуратно и может поставить под угрозу качество отличной окраски.Если вы спросите большинство специалистов, занимающихся окраской автомобилей, что они ищут в хорошей покрасочной кабине, они, вероятно, ответят, что это первоклассный вентилятор, который устраняет чрезмерное распыление.
Знаете ли вы, что добавление вытяжной стены также может предотвратить чрезмерное распыление? Фактически, некоторые из них настолько эффективны при удалении избыточного распыления, что мелкие маляры могут выполнять качественные работы по окраске за пределами окрасочной камеры. С учетом сказанного, это в основном для таких объектов, как игровое оборудование и большие вывески. Хотя не рекомендуется красить легковые и грузовые автомобили за пределами окрасочной камеры, просто поймите, что установка распылительной стены может сделать ваше рабочее место чище и создать идеальный готовый продукт.
2. Установка вытяжной перегородки снизит вероятность загрязнения.
Вы потратили часы на подготовку, покраску и сушку автомобиля. Последнее, что вы хотите увидеть, — это готовый продукт, загрязненный пылью и мусором. Дело в том, что загрязнение краски не так уж и редко, как вы думаете. Вот почему многие профессионалы переходят на окрасочные камеры с нисходящим потоком.
Возможно, вам будет приятно узнать, что вытяжная стена может обеспечить такую же защиту, как и технология нисходящего потока.
Нельзя сказать, что вытяжные стены полностью заменяют покрасочные камеры с нисходящим потоком, но они действительно помогают защитить краску от грязи и мусора. Вытяжные стены годами использовались плотниками и сварщиками для поддержания чистоты на рабочих местах, поэтому неудивительно, что они используются в автомастерских по всей стране.
3. Вытяжные стенки прочные и долговечные
Назначение вытяжных перегородок — всасывать все токсичные пары, пары и грязь в рабочей зоне, чтобы они были долговечными.В конце концов, вытяжная стена, построенная из второсортных деталей, не сможет выполнять свою работу должным образом.
Вот некоторые вещи, на которые следует обратить внимание при выборе хорошей стенной вытяжной системы:
- Прочная конструкция из толстого куба, способная выполнять ежедневные тяжелые работы.
- Возможность легкой интеграции с покрасочной кабиной.
- Первоклассное удобство использования. Вам нужна стенная вытяжная система, которую легко установить и легче освоить.

- Измерительная система, позволяющая отслеживать давление воздуха.
4. Вытяжные стены создают более безопасную рабочую среду
Что наиболее важно, нельзя отрицать, что воздействие краски наносит вред здоровью. Часовое пребывание в атмосфере токсичных паров и дыма может вызвать серьезные проблемы со здоровьем. Хотя вы можете не сразу почувствовать последствия, ваши легкие и нервная система могут быть в опасности. Это самая важная причина для хорошей вентиляции в покрасочной кабине.
Продолжительное времяпрепровождение с красками, среди прочего, связано с раком и астмой. Работа в автомастерской без надлежащей вентиляции не только противоречит рекомендациям EPA, но также может нарушать законы штата и федеральные законы.
Если вы чувствуете головокружение или головокружение после работы в окрасочной кабине, велика вероятность, что вы находитесь в не вентилируемом помещении. Не рискуйте своим здоровьем. Купите вытяжную перегородку, чтобы повысить эффективность вентиляционных систем.
Подробнее о системах вытяжной вентиляции
Как видите, установка вытяжной стены может повысить общую безопасность рабочего места и повысить эффективность вашей окрасочной камеры. Если вы думаете о добавлении вытяжной перегородки к своему кузовному цеху, обратите внимание на промышленную вытяжную перегородку Accudraft. Это стена размером 10 футов на 10 футов с современной системой фильтрации воздуха.
Accudraft построил свою вытяжную стенку из прочных деталей и достаточно прочен, чтобы выдерживать самые тяжелые рабочие нагрузки.Эта выхлопная стенка идеально подходит для кузовных мастерских и центров ремонта после столкновений. Он специально разработан для быстрого удаления дыма, частиц и излишков краски. Это делает его функциональным дополнением к любой окрасочной кабине, зоне подготовки или рабочему месту, где используются сварочные инструменты или паяльная лампа.
Основные характеристики вытяжной стены Accudraft:
- Оснащен вытяжным вентилятором осевого типа для максимальной эффективности.

- Состоит из толстой стали 18-го калибра.
- Он имеет уникальную конструкцию с болтовым креплением, которая обеспечивает максимальную прочность системы.
- Владельцы могут выбрать гальванизированную или белую краску для вытяжной стены.
- При необходимости владельцы могут добавить в систему шторы.
Если вы ищете надежную систему, но 10 ‘x 10’ не справляется со своей задачей, не волнуйтесь! У вас есть возможность увеличить высоту и ширину этой системы. Это делает выхлопную стенку Accudraft жизнеспособным выбором для всех операций по ремонту кузовов, как больших, так и малых.
Могу ли я добавить вытяжную стену в свою будку?
Ответ на этот вопрос непростой и во многом зависит от типа вашей будки.Практически любой кузовной цех может получить выгоду от установки вытяжной стены. Однако это не значит, что он будет совместим с вашей текущей настройкой покрасочной камеры. По этой причине важно провести надлежащее исследование и проконсультироваться с производителями окрасочной камеры, прежде чем принимать какие-либо решения о покупке.
С учетом вышесказанного, у вас уже может быть покрасочная кабина, в которой используется технология вытяжных стен! Обратите внимание на следующие покрасочные камеры Accudraft с вытяжными стенками внутри:
Каждая из этих окрасочных камер оснащена технологией нисходящего, полу- или бокового нисходящего потока.В конечном итоге это означает, что в покрасочную камеру уже встроена вытяжная перегородка, которая очищает рабочее пространство от избыточного распыления, загрязнений и вредных паров и испарений.
Что делать, если я ищу что-то меньшее?
То, что вам нужно рабочее место с вытяжной стенкой, не означает, что вам нужно соглашаться на одну из таких крупногабаритных окрасочных кабин. Люди, которые хотят использовать дополнительное пространство, смогут эффективно использовать открытую окрасочную камеру Accudraft.
Хотя окрасочная камера с открытым лицом не подходит для крупномасштабных операций, она идеально подходит для людей, которым нужно место в мастерской для периодической подготовки и покраски.
Будка представляет собой вытяжную стену размером 10 х 10 футов с двумя боковыми стенками и крышей. Он идеально подходит для шлифования, сварки и окраски отдельных деталей автомобиля.
Так же, как и вытяжная стена Accudraft, окрасочная камера с открытым лицом может выходить за пределы 10 на 10 футов, что означает, что она может вместить людей, которым необходимо использовать дополнительное пространство.Поскольку в нем используется мощная технология вытяжных стен, ваша рабочая зона гарантированно не образует дыма и защищена от грязи и чрезмерного распыления.
Некоторые приятные особенности открытой окрасочной камеры:
- Он изготовлен из прочной и толстой стали 18-го калибра.
- Поставляется с люминесцентным верхним освещением.
- Кабина отличается прочной конструкцией, скрепленной болтами, что делает ее прочной.
- Можно добавить дополнительные занавески.
Последнее слово о выхлопных стенах
Независимо от размера вашего кузовного цеха, крайне важно поддерживать чистоту и надлежащую вентиляцию рабочего места.
Установка дополнительной вытяжной стены в вашем цехе может удалить токсичные пары и пары, тем самым улучшив здоровье и безопасность на рабочем месте.
Accudraft может помочь вам выбрать вытяжную стеновую систему или покрасочную кабину с вытяжной стеновой технологией, которая соответствует вашим уникальным потребностям. Вы можете быть уверены, что купите кабину или вытяжную стену, достаточно мощную, чтобы выполнить свою работу. Большинство продуктов Accudraft можно настроить в соответствии с уникальными потребностями вашего магазина, поэтому интеграция новой системы в вашу мастерскую не должна стать проблемой.
Наконец, если вы хотите узнать, как поддерживать чистоту, безопасность и отсутствие токсичных паров в зоне рисования, свяжитесь с Accudraft сегодня. Один из их дружелюбных представителей свяжется с вами и обсудит, как вы можете оптимизировать рабочее место и повысить производительность.
.



