как сделать для ремонта авто, чертежи и размеры
Автомобиль периодически требует осмотра ходовой части. Для этого используют эстакаду. Конструкция используется в точках техобслуживания. Если владелец автомобиля не хочет тратить деньги на работу автомастеров, может осмотреть машину самостоятельно, приподняв ее над землей на эстакаде. Это альтернативный смотровой яме способ получить доступ к днищу. Сборка эстакады своими руками сэкономит средства.
Основные виды
По типу конструкции различают два вида эстакад для автомобилей:
- Полноразмерные позволяют провести ремонт машины, полностью поднятой над уровнем земли на 1 метр. Они громоздки и требуют много места. Подходят как для легкового, так и грузового транспорта.
- Мини эстакада. Представляет собой два небольших, независимых друг от друга, скошенных с одной стороны подиума. Автоэстакада позволяет приподнять машину со стороны передних или задних колес. Используется для частичного осмотра днища. Недостатком такой конструкции стала необходимость наличия ювелирной точности у водителя при заезде на нее.

Стационарная
Полноразмерные эстакады относятся к стационарному типу. Их устраивают вдоль трасс, на обочинах дорог, в точках СТО. Площадка высоко поднята над землей и позволяет провести детальный осмотр авто со стороны днища, выполнить ремонтные работы. Рассчитана на вес легковых и грузовых автомобилей.
Самая прочная и долговечная конструкция варится из металла. Для создания смотровой площадки используют кирпич, древесину, трубы и швеллер.
Совет! Если гараж выстроен на 2 машины, но стоит там только одна, то свободное место можно отвести под собственную эстакаду.
Разборная
Разборная эстакада обладает меньшими габаритами. Она легко помещаются в гараже и, при необходимости, быстро собирается. Предназначена для осмотра легкового автомобиля.
В конструкцию входит:
- 4 тумбы под опоры;
- 2 пары платформ со стопором, чтобы машина не скатилась;
- 2 пары горизонтального трапа под наклонный заезд;
- несколько ребер жесткости для фиксации деталей относительно друг друга.

Строят из металла. Чем более толстый и прочный выбран материал, тем дольше прослужит конструкция.
Общие требования
Изготовление эстакады – не сложный процесс, но нужно помнить о нескольких нюансах:
- Высота полноразмерной – до 1 метра, а мини вариант позволяет поднять машину на 0,3-0,7 метра.
- Ширина конструкций определяется шириной автомобиля. Чтобы было легко на нее заехать, трапы и платформы делают шириной 0,4 метра. Таких габаритов достаточно для большинства колес.
- Запас прочности определяет срок службы. В мини модели он не так критичен, а при строительстве стационарной эстакады на материалах не экономят.
Эстакада, собранная самостоятельно, должна помещаться в обычных гаражах. При создании чертежа учитывают, сколько есть свободного места для ее хранения.
Этапы подготовительных работ
Провести работы своими руками, с этапа проектирования и до финальной сборки, не сложно. Для этого нужно определиться с типом конструкции, предпочитаемым и доступным материалом, сделать чертеж, рассчитать размеры и количество деталей, составить смету на закупку материала, аренду оборудования.
Расчет размеров и составление чертежа
Начинают создание чертежа с выбора типа (стационарная или переносная) и материала. Для каждого будет предпочтительна своя форма изделия. Общие габариты:
- высота – до 1 метра;
- ширина – около 0,4 метра;
- длина подъема – около 1 метра;
- длина плоской платформы – от 0,3 метра.
Эстакада – это пара одинаковых сооружений. Сбоку на схеме по форме она напоминает прямоугольную трапецию. Между собой пара горок может дополнительно фиксироваться, чтобы избежать смещения во время подъема на нее машины.
Подготовка материалов и инструментов
В зависимости от материала, для эстакады подбирают инструменты. Конструкция из шпал или металла собирается с помощью:
- сварочного аппарата;
- болгарки;
- болтов, гаек.
В качестве основного материала берут арматуру и 40-ка миллиметровый уголок. Готовую конструкцию сверху покрывают антикоррозийной краской.
Эстакада из дерева создается из:
- деревянных брусков с квадратным сечением со стороной 0,2 метра;
- деревянных колодок или досок;
- гвоздей, шурупов;
- пилы;
- отвертки.
Металлическая конструкция своими руками
Наиболее популярна мини эстакада, выполненная из металла. Такое изделие отличает ряд преимуществ:
- легко перемещать;
- простота сборки – не требует особых навыков;
- надежность и долговечность.
Хотя, сделанная своими руками, эстакада может прослужить не одно десятилетие, со временем любая конструкция изнашивается. Если правильно ухаживать, обрабатывать от ржавчины, срок службы заметно увеличится.
Сварка конструкции проходит следующим образом:
- нарезается уголок, и собираются две прямоугольные трапеции;
- соединяют их между собой уголком;
- обрезками и остатками уголка по бокам формируют дополнительные ребра жесткости;
- нарезают арматуру и приваривают на верхнее основание и наклонную плоскость;
- зачищают металлической щеткой, окрашивают краской по металлу.

Процедуру повторяют для второй части из пары эстакады. На верхней платформе можно сделать ограничивающий бортик, чтобы машина не проехала дальше. Удобно хранить ее вертикально.
Инструкция по изготовлению деревянной мини эстакады
Деревянная конструкция отличается невысокой стоимостью материалов. Также к достоинствам стоит отнести:
- простоту конструкции. Она не требует специальных инструментов и оборудования, ее можно сделать подручными материалами;
- передвижная эстакада обладает сравнительно небольшим весом;
- мобильность – легко поставить и убрать.
К недостаткам относится малый запас прочности. Со временем эстакада из бруса будет гнить, ее подтачивают насекомые. Специальная обработка поможет увеличить срок эксплуатации.
Переносная эстакада из дерева бывает двух типов:
- Цельная. Берут брус со стороной сечения не менее 0,2 метра. Соединяют его гвоздями с еще одним отрезом. С одного края срезают скос.
Высота такой эстакады небольшая, но она легкая, и может храниться в багажнике машины. - Ступенчатая. Создается из колодок и 50-миллиметровых досок. Колодки нарезают на куски. В зависимости от высоты, с одного края некоторые срезают. Собирается конструкция слоями: доска, на ней, с определенным шагом, прибито несколько колодок, и снова доска. Каждый ярус короче предыдущего. Останавливаются на требуемой высоте. Сверху обязательно набивают колодку-ограничитель движения. Чем меньше угол наклона, тем легче заехать машине. Но это удлиняет эстакаду и делает ее более тяжелой.
Технология создания кирпичной конструкции
Разновидностью стационарной конструкции является изделие из кирпича. Для постройки необходимо выделить участок земли. Самодельная эстакада по форме не отличается от металлической или деревянной. Все части возводят из кирпича.
Методика постройки включает создание классической кирпичной кладки на цементном растворе. Преимуществом этой автомобильной альтернативы смотровой ямы стала прочность.
Она способная выдержать вес даже грузовой машины.
К недостаткам относят:
- необходимость отдать под нее достаточно большой земельный участок;
- монтаж, как и демонтаж, требует много времени;
- со временем кладка разрушается, и требуется ее полый снос.
Такое сооружение больше подойдет для гаражей в селах и за городом, где есть много свободного места. Кирпич выбирают как можно более прочный. Строительные работы лучше проводить в теплое время года.
как сделать, примеры конструкций, чертежи, видео
Осмотр ходовой части автомобиля — регулярная процедура, которой нельзя пренебрегать. Обычно такую проверку осуществляют в местах техобслуживания, где всегда есть смотровая яма или особая эстакада. Но осматривать днище автомобиля можно и самому. И если нет возможности организовать целую яму, то можно и сделать эстакаду для авто своими руками.
Разновидности эстакад для авто
Начать стоит с того, что эстакады для ремонта авто могут быть двух видов:
- Полноразмерная платформа поднимает автомобиль как минимум на 1 метр над землей. Она получается большой и крепкой, благодаря чему на нее несложно въехать, осматривать можно как легковой, так и грузовой транспорт, а исправить неполадки получается сразу же. Но такой эстакаде требуется много места, поэтому нередко ее устанавливают не в гараже, а около него.
- Мини-эстакада легче, проста в сборке, а выглядит как два подиума, которые приподнимают машину со стороны передних или задних колес. Заехать на такую установку сложнее, чем на полноразмерную, так как она может разъехаться от любого неаккуратного толчка, а осмотр можно провести только частичный.
Примеры полноразмерной конструкции (слева) и мини-эстакады (справа)
Выбор подходящего типа конструкции зависит от того, какой вид транспорта предстоит осматривать, нужно ли проводить полную проверку или будет достаточно поверхностной, какой величины территория может быть отдана под установку конструкции и т.
Также для авто бывают эстакады из железнодорожных шпал и кирпича, но они используются не так часто.
Требования и размеры
После выбора типа платформы нужно сделать расчеты для заготовки материала. Здесь необходимо учесть:
- Высоту конструкции, что должна составить 0,3-0,7 метра при мини-версии и как минимум 1 метр для полноразмерной.
- Ширину. Определяется шириной самого автомобиля. А вот ширина трапа, на который нужно заезжать, обычно не менее 0,4 метра. Такая величина подойдет для большинства колес.
- Длину. Мини-эстакада сама по себе небольшая, поэтому она поместится практически в любой гараж. А вот полноразмерная потребует больше места, как под отдельное авто.
Важную роль также сыграет материал — обычно металл или дерево. Материал повлияет на конечную стоимость всей конструкции, рассчитываемую по чертежу.
Также стоит учитывать, что мини-эстакада мобильная, а полноразмерная предполагает вкапывание в грунт и бетонирование.
![]()
Как сделать металлическую эстакаду своими руками
Сварить эстакаду для авто своими руками несложно, и для этого потребуются:
- Арматура.
- Уголок 40 мм и 63 мм.
- Трубы.
- Болгарка.
- Сварочный аппарат.
- Гайки и болты.
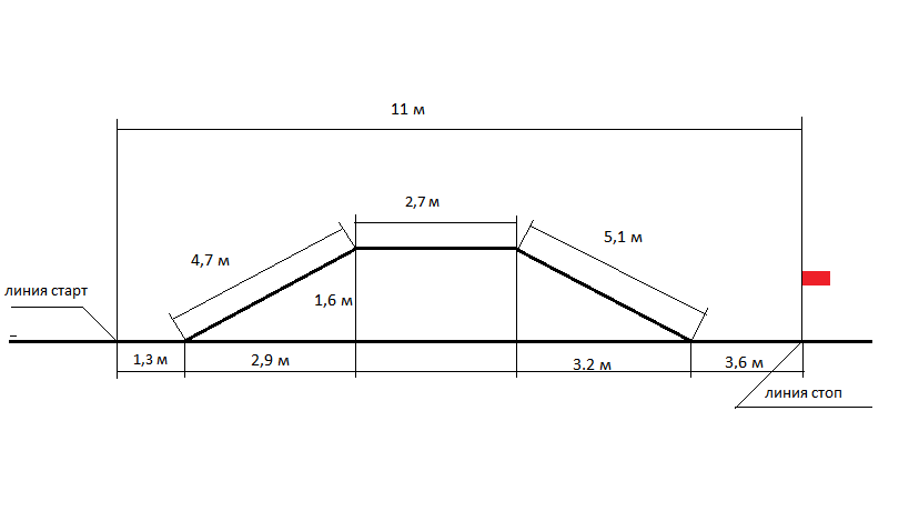
Чертеж полноразмерной эстакады для авто
Стальные трубы (89–100 мм) используются для создания опор, которые обязательно бетонируются. Более того, их нужно помещать ниже точки промерзания грунта, иначе каждую весну конструкция будет менять свое положение. Количество опор обычно доходит до 4 или 6. А собирать эстакаду под авто здесь нужно так:
- Сначала делаются опорные тумбы из уголков. Чтобы быть более устойчивыми, они должны быть трапециевидными. Их высота соответствует высоте будущей эстакады, угол составляет 120 градусов. Внизу у них должна быть квадратная опора, сверху — прямоугольная. На этом этапе можно сделать для тумбы тупик для машины. Следующие тумбы делаются без тупиков.

- Чтобы сделать конструкцию более устойчивой, на высоте полуметра обычно делают поперечную планку из стального профиля. Она крепится болтами прямо к тумбе.
- Теперь нужно сделать 4 трапа. На двух из них машина будет стоять, а по второй паре — заезжать. Оба вида трапов делаются из уголка 63 мм и своеобразной лесенки из арматуры. Длина горизонтальных платформ вычисляется как длина авто + 1 метр. Длина наклонных въездов — не менее 3 метров.
- После вычисления длины трапов под них нарезаются уголки.
- Сначала лучше сделать горизонтальные части, так как прикрепить арматуру на них проще — нужно лишь положить уголки на ровную поверхность так, чтобы они были боковыми бортиками и основой для крепления арматуры. После можно прикреплять отрезки арматуры так, чтобы между ними помещался кусок уголка — это классический «шаг». Дополнительно лучше сделать так, чтобы рубцы на арматуре направлялись то влево, то вправо на каждом последующем куске.
- Изготовить наклонные трапы немного труднее.
Нужно оставить без арматуры свободную часть длиной в 10 см. Это стыковочный узел. Вертикальное ребро профиля здесь прорезают до горизонтальной полки (лучше всего сделать это болгаркой). Потом стыковочные концы загибаются. - Чтобы выполнить загиб, лучше всего использовать гибочный станок, но это можно сделать и использовав что-то тяжелое для противовеса. Тогда получившийся узел опирания нужно будет сварить с куском стальной пластины для усиления.
- Уложив горизонтальные части эстакады на трапециевидные тумбы, их к ним приваривают.
- Теперь монтируются наклонные части конструкции.
- Эстакада фиксируется дюбелями к бетону, так она не сместится, когда на нее заедет машина. Если наклонные трапы будут проседать при первом въезде авто, им будет нужно укрепление в виде промежуточных опорных рамок.
Металлические конструкции сваривают и в том случае, если для авто нужна мини-эстакада.
Тогда принцип создания будет примерно таким же, только нужно значительно уменьшить размеры, убрать опоры и необходимость бетонирования.
К полноразмерной конструкции можно приделать лестницу для удобства или даже подвести воду, чтобы самостоятельно мыть авто на платформе.
Изготовление мини-эстакады из досок
Изготовление эстакады своими руками из дерева начинается с подготовки материалов и инструментов. Здесь будут нужны:
- Колодки из дерева или просто доски.
- Деревянные бруски. У них должно быть квадратное сечение, сторона квадрата — 20 см.
- Пилы.
- Отвертки.
- Гвозди и шурупы.
Главные преимущества такой конструкции — мобильность, легкость, простота сборки.
Но есть и недостатки, так как прочность такой конструкции не настолько велика, как хотелось бы, а еще ее нужно время от времени обрабатывать защитными средствами, чтобы платформа для авто не сгнила и не была повреждена паразитами.
Пример простейшей мини-эстакады
Конструкции из дерева, кстати, могут быть двух видов:
- Цельными.
- Ступенчатыми. Они делаются из обрезков досок.
Главное их различие в том, что цельная проще собирается и она легкая (с точки зрения веса). А вот на ступенчатую нужно потратить время и она не подходит для перевозки. Но зато на ступенчатую платформу авто легче заехать, так как она получается длиннее цельной.
Чертеж мини-эстакады из дерева
Здесь мы рассмотрим пошаговый алгоритм, по которому собирается цельная деревянная эстакада для авто с частичным наездом. Выглядит инструкция так:
- Распиливаем колодки на равную длину. Нужно сделать так, чтобы верхний край был срезан немного под углом, а в конце поставить ограничитель.

- К колодке прикрепляем две доски. Одна будет основанием, вторая — въездом. Закрепить лучше всего длинными гвоздями и шурупами.
- По бокам колода укрепляется планками.
- Сверху обязательно делаем ограничители, чтобы вовремя остановить авто.
Останется только обработать защитой, а потом сделать вторую часть.
Знать, как сделать эстакаду для автомобиля своими руками из металла или дерева будет полезно даже тем, кто предпочитает доверять проверку авто профессионалам. Это одно из тех умений, которое обязательно может пригодиться, ведь иногда, чтобы осмотреть машину, совсем не нужен глаз специалиста. Важно уметь проводить простейший осмотр самостоятельно, и эстакада для этих целей пригодится как нельзя лучше.
Как сделать простую эстакаду для авто своими руками
Добавил(а): Максим Овсянников 24 мая
Эстакада — незаменимый инструмент для осмотра и ремонта легкового автомобиля. Небольшая мини-конструкцию изготавливается в домашних условиях собственными руками. Важно соблюдать все размеры и ориентироваться на габариты вашей автомашины.
Необходимость установки мини-эстакады. Устройство
Современный автомобиль — это технически сложное устройство, требующее периодического технического обслуживания, замены комплектующих и расходников, мелкого ремонта. Многие неопытные автомобилисты предпочитают проводить текущий осмотр машины исключительно на СТО и платить из своего кармана даже за замену масла.
Более опытные водители делают большинство работ своими руками. Для этого в гараже нередко устанавливается самодельная эстакада — конструкция, с помощью которой можно исследовать днище автомашины.
Эстакады бывают двух видов:
- Полноразмерные. Заезжая на эту конструкцию, автомобиль поднимается над землёй примерно на метр.
Можно исследовать днище, капот, проводить необходимые манипуляции.Подходит для обслуживания легковых автомашин и легких грузовиков
- Мини-эстакады. Обеспечивают частичный подъем автомобиля. Этого достаточно для проведения косметического ремонта авто своими руками.
Подходит для частичного заезда легковых автомобилей
В первом приближении функции эстакады аналогичны смотровой яме. Она обеспечивает доступ к днищу автомобиля. Однако при высоком уровне залегания грунтовых вод в месте строительства гаража обустраивать смотровую яму нецелесообразно: она будет постоянно заливаться водой, что потребует оборудования дополнительной дренажной системы, а на металлических частях автомашины из-за повышенной влаги появится коррозия.
Полноразмерная эстакада — это монолитная конструкция, которую можно встретить в ремонтных автомастерских и вдоль оживлённых трасс. Для её установки требуется много места — протяжённость изделия составляет около шести метров над землёй плюс заезд.
Строительство такого варианта в собственном частном гараже оправдано, если здание рассчитано на два машиноместа, одно из которых пустует.
Мини-эстакада — небольшая переносная конструкция, предназначенная для частичного наезда автомашины. В её основе — две независимые части, не связанные друг с другом. Автомашина наезжает на подготовленный помост задними либо передними колёсами, немного приподнимается над полом или землёй и позволяет автовладельцу провести первичный осмотр или косметический ремонт.
Достоинство мини-эстакады — возможность её использования в ограниченном пространстве. После работы её можно убрать в сторону. Основные минусы конструкции состоят в следующем:
- Для заезда на помост необходима ювелирная точность. В противном случае возможно опрокидывание конструкции или повреждение авто.
- Элементы конструкции устанавливаются в местах, где исключена возможность того, что они разойдутся в разные стороны от малейшего толчка колёс.
Общие требования
При изготовлении стандартной эстакады необходимо соблюдать ряд требований.
Это поможет обеспечить удобную и безопасную работу с автомашиной.
- Высота полноразмерной ремонтной конструкции — около метра. Это позволяет беспрепятственно забраться под автомобиль, обеспечить достаточный приток естественного света для осмотра ходовой части, провести необходимые манипуляции с запчастями и инструментами. Высота мини-эстакады с частичным заездом — около полуметра: она не предполагает детальной разборки авто.
- Ширина конструкции напрямую зависит от типа и габаритов автомашины. Не стоит выводить размер до миллиметра, при расчёте конструкции нужно сделать небольшие припуски. Машина должна беспрепятственно заезжать на помост.
- Мини-эстакады используются для осмотра и ремонта легковых автомашин. Для стационарной конструкции предусматривается дополнительный запас прочности. Благодаря этому изделие со временем не деформируется. Также на него можно закатывать и достаточно тяжёлый транспорт.
Выбор материала
Есть множество способов изготовить эстакаду или мини-эстакаду для ремонта автомобилей своими руками.
Кирпичная конструкция
Эстакада из кирпича — стационарная конструкция, которая чаще используется в сельской местности или за городом. Строительство ведётся методом кирпичной кладки на цементный раствор. Ширина конструкции соответствует расстоянию между колёсами автомашины.
Этот способ имеет ряд недостатков:
- Необходимо выделить участок земли для обустройства. Если впоследствии эстакаду потребуется убрать, её демонтаж потребует значительных сил и времени.
- Через некоторое время под воздействием перегрузок кирпичная кладка может разрушиться, вследствие чего может потребоваться её демонтаж.
Эстакада из шпал
В основе конструкции лежат несколько железнодорожных шпал. Уложенные одна на другую в стиле «горки» шпалы образуют две основы. Поперёк укладываются колеи, обеспечивающие заезд. Чтобы эстакада из шпал не разъезжалась в процессе эксплуатации, она тщательно крепится скобами.
Такая конструкция также имеет определённые недостатки.
- Шпалы в быту встречаются не так часто, и не у каждого автовладельца есть несколько лишних.
- В одиночку установить и разобрать подобную установку невозможно. Шпалы слишком тяжелы.
- Для хранения железнодорожных шпал требуется место.
Использование эстакады из железнодорожных шпал оправдано на дачном или садовом участке, когда конструкцию оставляют на открытом воздухе круглый год. Для защиты от гниения, изделие пропитывается креозотом.
Из металла
Чаще всего эстакада изготавливается из металла и деревянных досок. Преимущества металлической эстакады:
- Мобильность. При желании, конструкцию можно сделать разборной и собирать только перед началом ремонта. Благодаря этому экономится место.
- Простота конструкции. Собрать металлическую эстакаду можно своими руками с использованием минимума инструментов.
- Долговечность. При должном уходе и своевременном осмотре металлическая эстакада может прослужить около десяти лет и более.

Есть и некоторые недостатки. Металл изначально подвержен коррозии, потому перед работой материал необходимо обработать специальными пропитками.
Среди основных преимуществ деревянной эстакады можно отметить простоту сборки и дешевизну материалов. Её легко установить, а при необходимости можно быстро демонтировать и убрать. Вам не понадобится сложное специализированное оборудование, достаточно обычных плотницких инструментов, которые есть в каждом доме. Среди недостатков деревянной конструкции можно отметить малую долговечность, слабую устойчивость к гниению и насекомым. Частично эти проблемы можно решить с помощью обработки антисептиками, антипиренами и инсектицидами.
Инструменты и материалы
Самостоятельное изготовление деревянной или металлической эстакады требует наличия определённых материалов и инструментов. Нет необходимости закупать сложное специализированное оборудование, достаточно приобрести бытовые электроинструменты, которые продаются в каждом магазине.
Что нужно для строительства металлической эстакады
Для изготовления обычной металлической эстакады потребуются следующие материалы и инструменты:
- Металлопрокат.
- Сварочный аппарат с набором электродов.
- Болгарка, укомплектованная несколькими отрезными кругами.
- Куски арматуры.
- Крепежи: болты, гайки.
- Краска по металлу для окончательной обработки конструкции.
Материалы и инструменты для деревянной эстакады
Для изготовления простейшей переносной деревянной эстакады потребуется минимум материалов и инструментов:
- Доски толщиной 45–50 миллиметров. Если используются более тонкие доски, по центру эстакады устанавливаются дополнительные вертикальные опоры.
- Две деревянные колодки.
- Два куска вагонной доски.
- Шурупы (150-ка), гвозди (300-ка), отвёртки, молоток, пила по дереву.
Подготовка к работе и составление чертежа
Перед изготовлением эстакады необходимо провести ряд измерительных работ.
Мини-эстакада состоит из двух независимых установок. Ширина каждой из них соответствует колесу автомашины с небольшим запасом. Промежуток между установками равен расстоянию между колёсами автомобиля. На этом же этапе подготавливаются инструменты, материалы и место работы.
Все размеры указаны примерно и рассчитываются для каждой модели авто
Металлическая конструкция своими руками
Если металлическую эстакаду планируется использовать в нескольких местах, или она необходима лишь эпизодически, конструкцию можно сделать в сборно-разборном варианте. Это позволит быстро собрать её по мере надобности в течение получаса.
Сборка металлической эстакады происходит следующим образом:
- Собираются основания тумб. Заготовки нарезаются исходя из размеров колёс автомашины. Заготовки можно разложить на листе ДСП или другой ровной поверхности и зафиксировать под углом 90 градусов (для определения угла можно использовать обычный строительный уголок). После всех промеров заготовки свариваются между собой.

Все части соединяются под прямым углом
- Собираются стойки. Высота — около полуметра, угол — около 120 градусов. Фиксируются, обвариваются.
Углы и боковые стены должны быть равными
- Привариваются верхние опоры тумб. Для этого верхние уголки соединяются со стойками, выставляются по углом в 90 градусов, обвариваются.
- Готовые опоры соединяются с основанием, выставляются под прямым углом и привариваются.
После сборки можно дополнительно пройти сваркой по основным узлам
- Приваривается тупик тумбы. Это необходимо, чтобы машина не уехала дальше и не перевернулась. Деталь делается из уголка 63*63*5 мм.
- К готовой тумбе привариваются арматурные перекладины. Для подгонки расстояния между ними можно использовать такой же уголок 63*63*5 мм. Отрезки арматуры укладываются так, чтобы их «ёлочки» перекрещивались.
В качестве шаблона используется обычный строительный уголок со стороной в 63 миллиметра
- Сборка трапов (мостиков). Нарезаются заготовки, фиксируются с помощью струбцин на уголках.
К уголкам привариваются отрезы арматуры, расстояние можно определять по шаблонному уголку, «ёлочки» перекрещиваются. Уголки привариваются к заготовкам.По этим мостикам машина будет заезжать на эстакаду
- Заключительный этап — подгонка. На ровной местности обе части эстакады выставляются вплотную между собой. Отмечаются центры тумб, конструкция выставляется под ширину автомашины. В трапах и тумбах сверлятся отверстия, после чего элементы соединяются между собой с помощью болтов. Благодаря болтовому соединению впоследствии можно будет легко разобрать и собрать эстакаду.
Готовая конструкция зачищается щёткой по металлу, обезжиривается и окрашивается.
Готовая конструкция будет выглядеть примерно так
Изготовление деревянной мини-эстакады
Простейшая деревянная эстакада собирается из двух пар деревянных брусьев сечением 20–20 см. Брусья сбиваются попарно, обрезаются под косым углом. Импровизированная эстакада готова.
Усовершенствованная деревянная эстакада собирается из обрезков досок, которые сбиваются в широкий «щит-пирамиду».
На одной из сторон образуется ступенчатый склон для заезда авто.
Ещё один вариант мини-эстакады собирается из четырёх 50-миллиметровых досок, двух колодок, вагонки и крепежей.
- Колодки распиливаются на равную длину. Верхний край срезается под углом, в конце необходимо оставить небольшой упор.
- К колоде крепятся доски заезда и основания. Для этого используются длинные гвозди и шурупы.
- Сбоку к колодам прибиваются страховочные планки.
- Сверху прибиваются колодки, ограничивающие движение автомобиля дальше эстакады.
Деревянная мини эстакада для авто своими руками
Не всегда поблизости может оказаться эстакада или подъемник, чтобы осмотреть в профилактических целях автомобиль снизу или заменить какую-нибудь деталь. Не зависеть от внешних обстоятельств поможет мини-рампа, которую быстро, без особых усилий и затрат можно сделать самостоятельно.Понадобится
Проще всего это приспособление выполнить из дерева, поэтому нам необходимо заготовить:
- обрезные доски нужной длины;
- ролики для мебели или тележек – 4 шт.
; - шурупы и гвозди.
В работе мы будем пользоваться следующими инструментами и принадлежностями: рулеткой, линейкой и маркером, циркулярной и маятниковой пилой, гвоздезабивным пистолетом, шуруповертом, струбцинами и молотком.
Порядок выполнения операций
Из шести обрезных досок изготавливаем боковой профиль рампы.
Для этого с учетом размера колес и переднего свеса автомобиля размечаем с помощью рулетки и маркера наклонную линию на одной из них.
Распиливаем размеченную доску переносной циркулярной пилой. Используя первую заготовку в качестве шаблона, размечаем оставшиеся пять и также их распиливаем.
Укладываем четыре боковых профиля попарно параллельно на ровную поверхность основанием вверх и на расчетном расстоянии друг от друга.
На каждую пару боковых профилей укладываем по доске заподлицо с их торцами. С помощью гвоздезабивного пистолета скрепляем эти элементы рампы гвоздями, которые окончательно добиваем молотком.
Для контроля линейкой замеряем в нескольких местах расстояние между боковыми профилями. От пятой и шестой заготовок с контурами бокового профиля отрезаем маятниковой пилой две пары прямоугольных брусков с учетом произведенных замеров.
Вставляем их в начале и конце прямолинейных участков боковых профилей, которые будут выполнять функции распорок и одновременно усилителей. Закрепляем их снаружи гвоздями.
Оставшиеся клинообразные элементы укладываем между наклонными участками боковых профилей и, зафиксировав сверху одним гвоздем в подходящем месте, крепление осуществляем снизу через доску-основание.
Накрываем доской, совместив ее торец с торцами боковых профилей, верхнюю горизонтальную площадку и делаем на ней отметку для поперечного разреза.
Прибиваем гвоздями короткую часть доски к горизонтальному участку боковых профилей. Длинную часть пристыковываем к короткой и закрепляем гвоздями к наклонному участку.
Открытые торцы рамп закрываем доской и отрезаем ее несколько выше верха горизонтальной площадки.
Этот выступ будет служить ограничителем для колес, не допуская их скатывания с площадки. Также закрепляем их к торцам гвоздями.К верхней части ограничительного элемента снизу поперечно прикручиваем два ролика, используя шурупы и шуруповерт. Ролики позволят перемещать рампу при необходимости качением, что намного легче, чем переносить ее на весу или волоком.
Проверка рампы в деле
Подкатываем и укладываем рампу перед передними колесами автомобиля.
Осторожно подаем машину вперед, преодолевая наклонный участок рампы, заезжаем передними колесами на горизонтальную площадку. Ставим автомобиль на ручной тормоз. Также не лишним будет подставить упор под заднее колесо.
Убеждаемся, что расстояние от пола до низа машины стало довольно просторным и можно без труда расположиться под ней для профилактического осмотра или ремонта.
Завершив работу, осторожно съезжаем с рампы и убираем ее в укромное место, где она будет находиться до следующего применения.
Смотрите видео
Как выполнить базовое обслуживание автомобиля самостоятельно [Руководство для самостоятельной работы]
01 апреля 2019 г., 11:21
Владение автомобилем — дорогое удовольствие: первоначальные затраты на его покупку, а затем текущие расходы на страховку, топливо и техническое обслуживание. Рекомендуется обслуживать автомобиль не реже одного раза в год, чтобы поддерживать механику в хорошем рабочем состоянии, продлевать срок ее службы и обеспечивать безопасность основных компонентов.
Чтобы сократить расходы, вы можете выполнить базовое обслуживание автомобиля самостоятельно, не прибегая к причудливому оборудованию, вместо того, чтобы отдавать его в профессиональный гараж, который будет взимать плату за их труд и замену запчастей.
Помимо финансовой выгоды, обслуживание собственного автомобиля означает, что вы знаете, что работа была сделана тщательно и были использованы качественные компоненты, такие как хорошее масло.
ИНСТРУМЕНТЫ, НЕОБХОДИМЫЕ ДЛЯ САМОСТОЯТЕЛЬНОГО ОБСЛУЖИВАНИЯ АВТО
Если вы собираетесь выполнять базовое обслуживание своего автомобиля, вам необходимо убедиться, что у вас есть подходящие инструменты:
- Набор головок (включая головку для снятия свечи зажигания)
- Поддон для слива масла (можно и ведро)
- Съемник масляного фильтра (трехрычажного или цепного)
- Гаечный ключ (возможно, динамометрический ключ)
- Отвертки (возможно)
- Шестигранный ключ (возможно)
- Домкрат
- Осевые стойки (можно использовать комплект пандусов)
- Манометр в шинах
- Старые тряпки
- Воронка (опция)
- Нитриловые перчатки (по желанию)
Хотя эти инструменты будут сопряжены с большими затратами на начальном этапе, как только они у вас появятся, вы сможете использовать их для обслуживания навсегда (а не только для собственного автомобиля), что в конечном итоге сэкономит вам много денег.
Прочие предметы, необходимые для обслуживания автомобиля
Целью обслуживания является замена определенных деталей и жидкостей для обеспечения бесперебойной работы автомобиля. В результате вам также потребуется приобрести эти запасные компоненты. Чтобы убедиться, что вы получите правильные, проверьте руководство по эксплуатации автомобиля.
- Масло
- Фильтр масляный
- Свечи зажигания
- Воздушный фильтр
- Антифриз
- Омыватель ветрового стекла
ЗАДАНИЯ, ВЫПОЛНЕННЫЕ ВО ВРЕМЯ БАЗОВОГО ОБСЛУЖИВАНИЯ
Базовая услуга будет отличаться от гаража к гаражу, но все они должны включать:
- Замена масла
- Замена свечи зажигания
- Замена воздушного фильтра
- Проверка давления в шинах
- Проверка состояния шин
- Проверка жидкости
Замена масла
Прежде чем залезть под машину, первое, что нужно сделать, это немного ее прогреть, быстро объехав квартал, или оставить на холостом ходу около пяти минут.
Это позволит маслу течь более свободно, облегчая и ускоряя слив.
В зависимости от дорожного просвета вашего автомобиля, можно производить замену масла, не поднимая его на пандусах или осевых опорах. Однако размещение его выше на ровной поверхности облегчит работу.
После того, как автомобиль занял свое место с помощью домкрата или пандусов, самое время поставить поддон для слива масла под пробкой поддона. Перед тем, как открутить пробку поддона, снимите масляную крышку из-под капота на верхней стороне двигателя — ее установка на место иногда может вызвать разрежение при сливе масла.
Пробка масляного поддона на самом деле представляет собой просто болт, прикрепленный к самой нижней части поддона. Как правило, это либо 14-миллиметровый болт, либо болт с внутренним шестигранником, который можно открутить торцевым ключом.
Пока масло стекает в поддон, возьмите инструмент для снятия масляного фильтра, закрепите его на текущем масляном фильтре и отверните его против часовой стрелки.
Обычно для того, чтобы двигатель полностью перестал капать масло, требуется около часа; нет необходимости ждать так долго (в гараже не было бы), но если у вас есть время, имеет смысл слить как можно больше старого масла.
Когда будете готовы, возьмите новый масляный фильтр и слегка смочите резиновое уплотнение новым маслом, чтобы обеспечить более прочное уплотнение и позволить вам его правильно затянуть. Верните его в то же положение, что и старый фильтр, и сначала затяните вручную. Чтобы убедиться, что он плотно закрыт и не протекает масло, используйте инструмент для снятия, перевернув его, чтобы слегка затянуть его.
Перед тем, как снова вставить пробку поддона, вы можете пролить немного нового масла через двигатель, чтобы вымыть остатки старого масла.В этом шаге нет необходимости, поэтому, если вы не хотите этого делать, просто замените пробку поддона и снимите автомобиль с осей или рампы.
Для большей точности при заливке нового масла в машину можно использовать воронку.
Обязательно добавляйте только понемногу и проверяйте щуп, чтобы убедиться, что вы не переполняете двигатель. Как только уровень масла опустится чуть ниже отметки максимального уровня, закройте крышку маслёнки и дайте двигателю поработать примерно 10 минут, чтобы масло добралось до необходимых деталей.
Заглушите двигатель и еще раз проверьте уровень масла.Добавьте еще масла, если уровень опустился ниже средней отметки на щупе.
Теги: автосервис базовый автосервис Сделай сам руководство техническое обслуживание автомобиля смена масла замена свечи зажигания замена воздушного фильтра проверьте давление в шинах проверить состояние шин
Категория: Советы
После замены масла важно утилизировать его ответственно. Отработанное моторное масло необходимо хранить в закрытой таре и не смешивать с другими веществами — не сливайте его в канализацию или на землю.
Отнесите запечатанный контейнер в масляный банк, чтобы утилизировать его безопасным и законным образом. Вы можете найти ближайший к вам нефтяной банк на веб-сайте нефтяного банка, позвонить по телефону 03708 506 506 или обратиться к местному уполномоченному по утилизации.
ЗАМЕНА СВЕЧИ ЗАЖИГАНИЯ
Как правило, производители рекомендуют заменять свечи зажигания каждые 30 000 миль (проверьте руководство пользователя, чтобы подтвердить свой автомобиль), поэтому вам, возможно, не придется вносить изменения при каждом базовом обслуживании.
Если ваш автомобиль не запускается, чрезмерно вибрирует на холостом ходу или имеет пониженный расход топлива, это все признаки того, что ваши свечи зажигания нуждаются в замене., В качестве альтернативы вы можете визуально проверить, нет ли ржавчины на концах или трещин в керамике посередине.
Чтобы найти свечи зажигания, просто проследите за проводами свечей зажигания — обычно они находятся по обе стороны от двигателя.
Снимите провода свечи зажигания, потянув за «пыльник», а не за сам провод, чтобы открыть свечу.
Возьмите патрон свечи зажигания (может потребоваться удлинитель) и вставьте его в зазор, оставленный проводом свечи зажигания. Надавите на свечу и вырвите ее из кобуры, повернув гнездо против часовой стрелки, и вы сможете ослабить свечу зажигания до конца вручную.
Возьмите новую свечу зажигания, вставьте ее в патрон свечи зажигания и опустите в зазор. Убедитесь, что вы затягиваете его только вручную, прежде чем использовать гаечный или динамометрический ключ, чтобы немного затянуть его. Верните провод свечи зажигания на место и повторите процедуру для остальных свечей.
ЗАМЕНА ВОЗДУШНОГО ФИЛЬТРА
Большинство автомобилей оборудовано воздушной камерой, закрывающей воздушный фильтр.
Обычно они удерживаются на месте только набором зажимов, но некоторые крепятся винтами, поэтому вам может потребоваться отвертка.
После того, как воздушный ящик откреплен, вы можете снять его, чтобы открыть воздушный фильтр, который, скорее всего, будет черным от всей скопившейся грязи. Вытащите старый воздушный фильтр и замените его новым, чистым, белым.
Просто замените и закрепите воздушный короб.
ПРОВЕРКА ДАВЛЕНИЯ В ШИНАХ
Когда вы проверяете давление в шинах, всегда лучше, чтобы шины были холодными. Чтобы понять номинальное давление в шинах вашего автомобиля, вам сначала нужно найти правильное давление в шинах — обычно вы можете найти их в руководстве к вашему автомобилю, внутри крышки бензобака или напечатаны на внутренней стороне выступа двери водителя.Кроме того, вы можете ввести регистрационный номер на веб-сайте Национальной службы шин.
Присоедините манометр к клапану каждой шины, запишите показания и сверьте их с правильным номиналом.
Если давление слишком низкое, вы можете купить воздушный насос, чтобы накачать шину дома или на автозаправочной станции. С другой стороны, если давление слишком высокое, позвольте некоторому количеству воздуха выйти, когда пылезащитный колпачок снят, и перепроверьте давление, пока оно не станет правильным.
Не забудьте проверить запасное колесо — никогда не знаешь, когда оно может понадобиться.
ПРОВЕРКА СОСТОЯНИЯ ШИНЫ
Помимо проверки давления в шинах, вы также должны отметить глубину протектора и увидеть, есть ли какие-либо видимые повреждения, такие как выпуклости, порезы или какие-либо предметы, проткнувшие стенку шины.
В Великобритании минимальная допустимая глубина протектора составляет 1,6 мм (хотя для дополнительной безопасности рекомендуется менять шины, когда они достигают 3 мм). Вы можете легко увидеть, есть ли у ваших шин допустимая глубина протектора, используя тест 20p.
Если какая-либо из ваших шин опустилась ниже установленной законом нормы или имеет видимые повреждения, вам следует немедленно их заменить.
Это работа, которую вы могли бы выполнить самостоятельно, но для сохранения углов установки колес, вероятно, лучше всего ее будет выполнять профессионал с более современным оборудованием.
ПРОВЕРКА ЖИДКОСТИ
Помимо замены масла, базовое обслуживание будет включать проверку и доливку других уровней жидкости, включая омыватель ветрового стекла, антифриз / воду, тормозную жидкость, жидкость для гидроусилителя руля и охлаждающую жидкость двигателя.
Используя фонарик, обычно можно увидеть уровень каждой из этих жидкостей, подняв соответствующие крышки и заглянув внутрь контейнеров.Если какой-либо из них выглядит низким, вы можете — и должны — пополнить его.
ДОПОЛНИТЕЛЬНОЕ ОБСЛУЖИВАНИЕ
Выполнение перечисленных выше работ, безусловно, сэкономит вам деньги и даст вам лучшее понимание того, как работает ваш автомобиль; однако это только базовые проверки, которые следует проводить ежегодно.
Большинству автомобилей требуется «серьезное обслуживание» каждые два года для более тщательной проверки двигателя, рулевого управления, системы привода, топливной системы, электрики, тормозов, выхлопной системы и подвески, которые должны выполняться профессиональным механиком.
Вот полный контрольный список всего, что проверяется, когда ваша машина отправляется в гараж для обслуживания.
Наши технические специалисты предлагают ряд вариантов обслуживания, охватывающих все, от базового до основного обслуживания по бесконкурентным ценам.
<Назад ко всем блогамДИЗАЙН ЭКСТЕРЬЕРА И ИНТЕРЬЕРА
Стилист, отвечающий за дизайн экстерьера автомобиля, разрабатывает пропорции, форму и поверхности автомобиля. Внешний дизайн сначала выполняется с помощью серии цифровых или ручных чертежей.Постепенно выполняются и утверждаются более подробные чертежи. Глиняные и / или цифровые модели разрабатываются по чертежам и вместе с ними. Данные этих моделей затем используются для создания полноразмерного макета окончательного дизайна (тело в белом цвете). Глиняные модели сначала разрабатываются в компьютерной программе, а затем вырезаются с помощью машины и большого количества глины. Даже во времена высококлассного программного обеспечения и виртуальных моделей на силовых стенах глиняная модель по-прежнему остается самым важным инструментом для оценки конструкции автомобиля и поэтому используется во всей отрасли.
Стилист, отвечающий за дизайн интерьера автомобиля, разрабатывает пропорции, форму, расположение и поверхности для приборной панели, сидений, дверных панелей, потолка, облицовки стоек. Здесь упор делается на эргономику и комфорт пассажиров. Процедура такая же, как и с дизайном экстерьера (эскиз, цифровая модель и глиняная модель).
Электронные компоненты и детали автомобиля создают больше проблем для дизайнеров, которым необходимо обновлять новейшую информацию и знания, связанные с появляющимися гаджетами, особенно с мобильными устройствами приборной панели (GPS-навигация, спутниковое и HD-радио, мобильное телевидение, MP3-плеер, воспроизведение видео и интерфейсы смартфона).Хотя не все новые гаджеты должны быть разработаны как стандартные заводские элементы, но некоторые из них могут быть неотъемлемой частью определения будущего курса любых конкретных моделей.
1. Дополните эти предложения информацией из текста:
а) Выполнен внешний вид
б) Во времена высококлассного программного обеспечения
c) Стилист, отвечающий за дизайн интерьера, разрабатывает
г) Здесь упор делается на
д) Электронные компоненты и автомобильные компоненты дают
2.
Убедитесь, что вы знаете эти термины:
Акселератор, педаль тормоза, педаль сцепления, приборная панель, рычаг переключения передач, ручной тормоз, звуковой сигнал, зажигание, зеркало заднего вида, крыло (крыло), крышка или крышка бензобака, люк на крыше, указатель поворота (указатель поворота), логотип, стеклоочиститель (лобовое стекло), выхлопная труба, номерной знак, зеркало заднего вида, багажник на крыше, грохочущее сиденье, запасное колесо, задний отсек, изображение марки, брызговик, подножка, порог, решетка (e), дверная ручка, четверть стекла, центральная стойка, форсунка омывателя.
3.Изучите следующую информацию:
Багажник : место для укладки багажа.
Фонарь задний : Фонарь задний.
Заднее крыло : задняя боковая часть корпуса, закрывающая колесо.
Окно на четверть : оконное стекло, расположенное примерно над задним колесом.
Стойка крыши : вертикальная конструкция, поддерживающая верх автомобиля.
Дверная ручка : часть двери, используемая для ее открытия.
Дверь : отверстие для входа в салон.
Наружное зеркало : внешнее зеркало, предназначенное для просмотра назад.
Дверной столб : вертикальные конструкции, закрывающие окна.
Колпак ступицы : кусок металла, закрывающий ступицы.
Колесо : круглый объект, который вращается вокруг центральной оси и позволяет машине двигаться вперед.
Shield : передвижной аппарат, защищающий от ударов.
Световой индикатор : желтый свет, который сигнализирует об изменении направления движения автомобиля.
Номерной знак : кусок металла с номером, используемым для идентификации автомобиля.
Бампер : устройства спереди и сзади автомобиля, защищающие кузов от мелких ударов.
Фара головная : передняя фара автомобиля.
Решетка : пластиковая или металлическая отделка радиатора.
Капот : крышка моторного отсека в передней части автомобиля.
Стеклоочиститель : подвижное устройство, частично изготовленное из резины, которое протирает лобовое и заднее стекло автомобиля.
Наружное зеркало : внешнее зеркало, предназначенное для просмотра назад.
Люк : подвижная часть, позволяющая частично открывать крышу автомобиля.
4.Подберите слова из двух ящиков, чтобы найти внешние части автомобиля:
| Головка, задняя, выхлоп, колесо, перед, бензин, лобовое стекло, крыло, дверь, номер | дворники, фары, накладка, накладка, бампер, колпак, зеркало, ручка, фары, патрубок |
5. Завершите предложения следующими словами (внешний вид):
Капот (капот), багажник (багажник), боковое стекло, антенна, передние и задние фонари, значок.
a) Не забывайте убирать прибор перед мойкой автомобиля.
б) Вы открываете, чтобы посмотреть на двигатель.
в) Не могли бы вы положить мой чемодан в?
г) Когда идет дождь, нужно включить
д) Что это за модель? Не знаю, отсюда не видно.
е) Откройте и впустите свежий воздух в машину.
6. Завершите предложения следующими словами (дизайн интерьера):
Подстаканник, солнцезащитный козырек, прикуриватель, бардачок, педаль сцепления, телефон громкой связи, пепельница.
k) Так практично иметь рядом с рулем, что я могу выпить, когда захочу.
л) В автомобиле с МКПП нужно нажимать кнопку, когда нужно переключить передачу.
м) Обычно есть косметическое зеркало на пассажирах
n) Звонить по телефону во время вождения — противозаконно, поэтому я заказал машину с
.о) Не могли бы вы взглянуть в атлас дорог? Его в
р) Мне не нужны и ан, так как я не хочу, чтобы кто-нибудь курил в моей машине.
Рисуем себя — Идиомы по The Free Dictionary
вытягивать (себя) вверх
1. Встать прямо, как можно выше. Я знаю, что вы стесняетесь того, что вы намного выше всех остальных, но, пожалуйста, попробуйте подтянуть себя для группового фото.
2. Встать прямо в знак негодования. После того, как Эндрю сделал эти грубые замечания обо мне, я выпрямился и вылетел из офиса.
оформление
1.Составить или подготовить документ. Существительное или местоимение может использоваться между «вытягивать» и «вверх». Как только обе стороны придут к соглашению, Стю составит контракт. Вы его оформляете и даете мне на утверждение.
2. Встать прямее, часто для того, чтобы подчеркнуть гордость или возмущение. В этом смысле возвратное местоимение используется между «вытягивать» и «вверх». Когда я услышал, как другие девушки шепчутся обо мне, я выпрямился и направился прямо к их столу.
3. Чтобы что-то приблизить к кому-то или чему-то.
Что ж, присаживайтесь и расскажите нам, что вы думаете.
4. Остановить движение. Машина передо мной внезапно подъехала, и я врезался в нее.
5. Чтобы что-то перестало двигаться. В этом случае существительное или местоимение может использоваться между «вытягивать» и «вверх». Поднимите лошадей, Эдвард, я бы хотел выйти из экипажа.
6. Привести группу к упорядоченному или определенному построению. Существительное или местоимение может использоваться между «вытягивать» и «вверх». Объявление составили солдаты.
7. Укрепиться. Эти штаны, должно быть, сжались при стирке, потому что они продолжают тянуть меня!
Словарь идиом Farlex. © 2015 Farlex, Inc, все права защищены.
подтянуться (к чему-то)
встать прямо во весь рост. (Фиксированный порядок.) Уолтер выпрямился до своего шести футов роста и пошел прочь. Она выпрямилась и пошла прочь.
нарисуйте что-нибудь
1. . Лит. , чтобы тянуть что-нибудь поблизости, например стул, табурет и т.
Д.Поднимите стул и сядьте. Она подняла подушку и села на пол.
2. Рис. для составления документа; подготовить документ. Кто оформит договор? Составлю договор на работу.
потянуть
потянуть потуже; сжаться. Когда они намокли, его стволы стянулись и стали очень тугими. Это дешевое нижнее белье имеет тенденцию стягиваться.
Словарь американских идиом и фразовых глаголов Макгроу-Хилла. © 2002 г., компания McGraw-Hill Companies, Inc.
оформить
1. Составить или выписать по установленной форме, как в Юрист составил договор . [Первая половина 1600-х годов]
2. Расставить по порядку или строем, расставить по позициям, как в Лидер банды построил своих игроков , или Офицер построил войска . [c. 1600]
3. Привести или остановиться, как в Автомобиль подъехал к обочине . [Начало 1800-х]
4. подтянуться .Примите прямую позу, чтобы выразить достоинство или негодование.
Например, Она подтянулась и протестовала против . [Середина 1800-х годов]
Словарь идиом «Американское наследие®» Кристин Аммер. Авторские права © 2003, 1997 Траст Кристин Аммер 1992. Опубликовано Houghton Mifflin Harcourt Publishing Company. Все права защищены.
оформление
v.1. Составить или написать что-либо в установленной форме: Мой юрист составит договор. Комиссия составила список номинантов.
2. Чтобы вытащить что-нибудь рядом: Поднимите стул и присоединяйтесь к нам!
3. Чтобы принять прямую позу, часто как выражение достоинства или возмущения: она подтянулась в полный рост. Он поднялся со стула в знак протеста.
4. Остановиться, как транспортное средство: Грузовик подъехал к обочине.
5. Чтобы остановить что-то, в качестве транспортного средства: я вытащил машину перед домом. Мы подъехали к тротуару.
6. Чтобы привести войска в порядок: Князь построил солдат и похвалил их отвагу.
Словарь фразовых глаголов American Heritage®. Авторские права © 2005 издательской компании Houghton Mifflin Harcourt. Опубликовано Houghton Mifflin Harcourt Publishing Company. Все права защищены.
См. Также:IELTS Transportation Vocabulary — Ключевые слова и вопросы — IELTS Jacky
Эта страница содержит более 120 ключевых слов и словосочетаний транспортная лексика с пояснениями и примерами их использования в предложение.Это поможет вам научитесь правильно ими пользоваться.
Транспорт — обычная повседневная тема в жизни многих людей, поэтому неудивительно, что это популярный предмет на экзамене IELTS. Таким образом, имеет смысл выучить большой словарный запас по транспорту, который поможет вам ответить на любые возникающие вопросы.
Вот несколько вопросов, о которых вас могут спросить:
- Общественный транспорт в вашем городе
- Определенный вид транспорта
- Общие проблемы, связанные с транспортировкой
- Транспорт и окружающая среда
- Транспорт будущего

Не попробуйте выучить все 120+ слов и фраз. Посмотрите на мои предложения ниже относительно лучший способ использовать этот исчерпывающий список.
Кому убедитесь, что вы хорошо подготовлены, чтобы ответить на любые вопросы, связанные с транспортом, Я добавил сюда четыре вещи:
- Вопросы в стиле IELTS по теме транспорта
- Перечень общих перевозок словарь с определениями и примерами предложений
- Ссылки на онлайн-ресурсы для чтения и аудирования
Вы будете
найти PDF-файлы для загрузки как вопросов, так и образцов ответов, а также транспорта
список лексики внизу соответствующих разделов.
Хотя
тема может возникнуть в любой части экзамена, вопросы по
эта страница относится к тесту разговорной речи, потому что эта часть экзамена предлагает
Широчайший круг возможных вопросов по теме. Они дают лучшее
возможность для меня продемонстрировать словарный запас, а для вас — попрактиковаться в использовании
Это.
Я включены вопросы в стиле IELTS и ответы на все три части разговорной речи test и выделили ключевые слова и фразы жирным шрифтом .
Ты найдите эти слова и фразы, а также многие другие в списке словаря ниже вместе с объяснениями и образцами предложений и аудио для прослушивания произношение.
список транспортной лексики содержит слова и фразы, относящиеся ко всем частям экзамена IELTS, так как вас могут попросить написать по теме или получить чтение или прослушивание текста о транспорте.
Наконец, внизу страницы добавлены ссылки на актуальные статьи, короткие видео и подкасты, которые помогут вам пополнить свой словарный запас и ваши навыки чтения и аудирования.
Стиль IELTS
Разговорный тест: вопросы и ответы
Часть 1
1) Какой вид общественного транспорта
ты где живешь?
У нас есть автобусное сообщение в
моя территория.Это нормально для людей, которые живут в городах, но не так часто
живущие во многих маленьких деревнях.
Есть еще поезд , который идет
до ближайшего города несколько раз в день.
2) Вы предпочитаете общественный транспорт или частный? транспорт?
Мне определенно нравится частный транспорт лучший. С моим автомобилем я могу ехать куда захочу, когда захочу. выбрать.Чтобы совершить поездку на общественном транспорте , вы не такой независимый .
3) Как вы добираетесь до работы?
Зимой, когда холодно и мокрый, я езжу на своей машине на работу, но я всегда застрял в a t пробка . По мере улучшения погоды езжу на байке , чтобы избежать заторов .
4) Является велосипед хорошее средство передвижения?
Мост
конечно, потому что вы не задерживаетесь в интенсивном движении .
Кататься на велосипеде
также поддерживает вашу форму и является экологически чистым .
5) У вас думаете, что должна быть отдельная полоса для велосипедов?
Я думаю, что велосипедных полос — очень хорошая идея, поскольку они помогают защитить велосипедистов от автомобилей .С тех пор, как мы представили их в моей стране, все больше людей начали ездить на велосипеде, чтобы Работа.
Велоспорт поддерживает вашу физическую форму и является экологически чистым. Часть 2
Опишите способ
транспорт, которым вам нравится пользоваться.
Вы должны сказать:
- что вид транспорта это
- как часто вы его используете
- где
вы путешествуете на нем
и
объясните, почему вам это нравится.
Один вид транспорта , который я с нетерпением жду идет поезд . Это потому что я использую его только когда уезжаю куда-нибудь увлекательно, например, в отпуск или перерыв на выходных.
У нас довольно хорошая железнодорожная сеть в моей стране, так что легко добраться туда, куда вы хотите. Однако я живу в сельской местности и на весь регион всего одна железнодорожная станция и идет только до Ближайший город. Затем вам нужно сесть на другой поезд , чтобы отправиться куда-нибудь еще.Этот не очень удобно . Многие водят 30 миль до ближайшего города на главной линии и сесть на поезд там. Я тоже иногда так делаю.
Я вполне наслаждайтесь поездками на поезде . Они больше расслабляющий, чем вождение, и вы можете смотреть на пейзаж из окна. Имея сказал, что в последний раз я взял поезд , он был очень переполнен и я не мог сесть, поэтому мне пришлось стоять всю дорогу.
Мои последние
поездки были в Лондон на несколько дней с другом.
Это занимает около
три часа, чтобы успеть к утру. Пока мы в городе, мы
иногда используйте под землей , но
в основном обойти пешком .
Еще пользуюсь поезд , чтобы добраться до аэропорта, если я уезжает за границу. Вы выходите из в Читаем и ловим челнок в аэропорт. Спланировать поездку стало намного проще, потому что вы можете посмотреть расписание поездов онлайн.
Иногда езжу на поезде , когда езжу в другие страны.Это может быть лучший способ передвигаться, и это здорово, если вам нравится знакомство с местным населением. Однажды я ехал на поезде в Индии. Там было полно людей, но все были очень дружелюбны, и мы все поделился нашими закусками.
Единственный
в другой раз я езжу на поезде — это когда я
совершить поездку на паровой железной дороге. В моей части страны есть два, где
восстановлены старые поезда, железнодорожная ветка и станции. Там есть
что-то особенное в них, и они являются огромной достопримечательностью.
Всем нравится поездка на паровозе .
Часть 3
1) Как большинство людей путешествуют долго расстояния в вашей стране?
Я бы говорят, что машина самая популярная форма транспорта для дальних поездок . Моя страна довольно маленькая, поэтому вы можете добраться куда угодно за день и в большинство мест в течение нескольких часов.Вы независимый когда вы едете, и вы просто кладете свой багаж в машину , не таща его куда-либо.
А много людей используют поезд , оба для поездок на дальние расстояния и до до в города на работу. В наших городах большая проблема с загруженностью , и припарковать машину стоит дорого, так что больше разумно использовать железнодорожную сеть .
Там
также шаттл рейсов между
в крупных городах, поэтому многие бизнесмены ими пользуются.
Единственный раз, когда я летаю на самолете в пределах моей страны
когда я навещаю родственников в Шотландии, так как это далеко от
где я живу. Самолет самый быстрый
и самый простой способ добраться.
2) Как вы думаете, проблемы с транспортом больше в городской или сельской местности?
Это сложно сказать потому что транспорт вопросы в городах сильно отличаются от тех В деревне.
Самая большая проблема в наших городах — это загруженность .
Слишком много автомобилей и пробки жуткие. Там
всегда кажется дорожные работы идут
которые вызывают узких мест и делают
дела обстоят еще хуже. Более того, все автомобилей , грузовики и автобусы сидят в длинном трафике очередей испускает выхлопные газы что приводит к загрязнению воздуха ,
еще одна серьезная проблема в городских районах.
В в сельской местности, с другой стороны, основной проблемой является отсутствие адекватного общественного транспорта системы . Если вы живете в небольшой деревне, у вас может даже не быть автобуса , поэтому невозможно добраться вокруг, если у вас нет собственного частных транспорт .
Там раньше была разветвленная железнодорожная сеть обслуживает небольшие общины, но в 1960-х годах были закрыты сотни линий.Сейчас же добраться до основных городов можно только поездом .
Кому взвесив это, скажу, что транспорт проблемы одинаково серьезны как в городских и сельская местность. Есть просто разные вопросы.
3) Слишком много людей зависят от автомобили как средство передвижения в вашей стране?
В моем
По мнению, большинство людей полагается на свою машину слишком много. Многие из них слишком ленивы, чтобы ходить пешком или до добираться до на велосипеде и они
Не беспокойтесь: сядьте на автобус .
Большинство областей есть реальная проблема с час пик трафик . Хотя в этом всегда винят людей, которые едут на работу, это гораздо менее загружен на дорогах во время школьных каникул, что говорит о том, что реальная проблема — родители возят своих детей в школу на вагоне . Я думаю, что многие другие должны пройти путешествие пешком . Это было бы лучше для детского фитнеса, а также для сокращения скоплений .
Не все родители ленивы. У многих просто нет времени гулять, они спешат ушли на работу, но они могли хотя бы установить карпулов так как это поможет уменьшить тяжелых трафик по утрам.
Если бы у нас было лучше погода в моей стране, тогда я думаю, что больше людей будет добираться на работу на велосипеде и вы, конечно, увидите больше людей ездят на работу на велосипеде летом.
Машины застряли в пробке.
Щелкните эту ссылку, чтобы загрузить в формате PDF эти практические вопросы и образцы ответов.
Загрузить PDF сейчас
Транспортный словарь
* Важно
- Сделать не попробовать и выучите этот список транспортной лексики.
- Определить словарь, который вы найдете полезным для ответов на практические вопросы по этой теме.
- Запись в свою словарную тетрадь и регулярно их применяйте.
Рекомендую создать
ваши собственные ответы на вопросы о транспортировке на этой странице. Вы найдете много
другие вопросы практики в стиле IELTS, выполнив поиск в Интернете.
Для получения справки о том, как учиться
словарный запас, что учить и как это записывать, посетите эти страницы:
Как выучить словарный запас для IELTS
6 лучших типов IELTS Словарь и тематические списки слов
Транспортный словарь — общеупотребительные слова и фразы
Транспортный словарь, набор 1: ключевые определения
автомобиль — а машина, обычно с колесами и двигателем, используемая для вывоза людей или товаров из с места на место, особенно на дорогах
— Три автомобилей попали в аварии
рядом с моим домом.
для транспортировки — взять или перевозить людей или товары из одного места в другое на транспортном средстве
— Их мебели было перевезено в их новый дом в большом грузовике.
транспорт — а транспортное средство или система транспортных средств, таких как автобусы, поезда и т. д., для получения от одного место к другому
— Какой вид транспорта вы собираетесь использовать, чтобы добраться до аэропорта?
а средство / вид транспорта — любое транспортное средство, на котором вы можете путешествовать, или использовать для перевозки грузов в
— Велосипеды дешевый средство передвижения а также держать вас в форме.
транспортная система — а объект, состоящий из средств и оборудования, необходимого для перемещения пассажиров или грузов
— Транспортная система в моей стране нуждается в много улучшений.
общественный транспорт — а система транспортных средств, таких как автобусы и поезда, которые регулярно ходят по фиксированные маршруты, установленные тарифы и используются населением
— Это намного дешевле
пользоваться общественным транспортом по городу чем водить машину.
частный транспорт — средства передвижения которые не доступны для использования широкой публикой, например, ваш собственный автомобиль
— Большинство людей предпочитают воспользуйтесь частным транспортом общественным транспортом поскольку это делает их более независимыми.
трафик — в транспортные средства, пешеходы, корабли или самолеты, движущиеся по маршруту
— Сегодня утром на дорогах было много машин .
инфраструктура — основные системы и услуги, такие как транспорт и электроснабжение, которые страна или организация использует для эффективной работы
— Землетрясение нанесло серьезный ущерб транспортной инфраструктуры района .
поездка — в акт путешествия из одного места в другое, особенно в транспортном средстве
— Поезд путешествие провел их через красивые
сельская местность.
Транспорт Словарь Произношение
Транспортный словарь Набор 2: Транспортные средства
Транспортный словарь Произношение
Транспортный словарь Набор 3: Дороги и движение
дорога — длинное твердое покрытие построенный для транспортных средств, путешествующих по
— Шакира махнула рукой ее мама, когда автобус уехал по дороге .
переулок — участок дороги, обозначенный нарисованными линиями и предназначен для разделения одиночных линий движения; узкая сельская дорога
— мне это довольно страшно вождение по быстрой полосе автомагистраль.
цикл полоса — часть дороги, обозначенная нарисованными линиями, для использования велосипедистами
— Велосипедистов погибло гораздо меньше
на дорогах с тех пор, как правительство ввело велосипедных полос, в наших городах.
автобус переулок — участок обозначенной дороги с нарисованными линиями, для использования в автобусах
— Автомобиль водителям запрещено пользоваться автобусом переулок .
байпас / КАД / кольцевая — дорога, которая огибает город или город и позволяет вам ехать быстрее из одного города указать на другое.
— Обычно я еду по кольцевой дороге , чтобы навестить брата в качестве дороги через город всегда перегружены.
автострада / шоссе / скоростная — дорога общего пользования, часто с несколько полос движения, особенно важная дорога, соединяющая города или поселки вместе
— Движение в центре города двигалось медленно, но один раз Рауль ударил по автостраде было меньше трафик, и он смог ехать намного быстрее.
автострада (Великобритания) — дорога с тремя полосами движения в каждой путь
— Автострады являются
жизненно важен для перевозки грузов по Великобритании.
эстакада — мост, соединяющий одну дорогу с другой дорогой
— Никто не верил, что новая эстакада действительно уменьшит заторы на дорогах, но это принесло заметную разницу.
переход — на пересечении двух дорог
— Аксель только что пропустил машину, которая выехала впереди его на перекрестке .
с круговым движением — дорога перекресток, на котором движение движется в одном направлении вокруг центрального острова к выйти на одну из сходящихся к ней дорог
— Движение потекло намного лучше, когда заменили светофор на перекресток .
трафик свет — набор автоматически управляемые красные, желтые и зеленые огни для контроля движения на перекрестках дорог и пешеходных переходов
— надо проехать десять комплектов светофоров на способ на работу, и если я опоздаю, будьте уверены, они все остановятся на красном.
пробка — линия транспортных средств, движущихся очень медленно или не движущихся совсем
— Пробка возникла в результате дорожных работ
рядом с торговым центром.
Размещение:
- быть пойманным в пробке / пробке
— Маюри опоздала на поезд после того, как застряла в пробке по дороге на станцию.
- t o застревать в пробке
— Я почти всегда застреваю в пробке по дороге на работу.
Транспортный словарь Произношение
интенсивное движение — много автомобилей на дороге
— прогнозируются солнечные выходные, поэтому на дорогах будет загруженных автомобилей , когда люди направятся к побережью.
должна быть загружена — когда дорога или место настолько переполнены движением или людьми, что затрудняют или препятствуют свободе передвижения
— Дороги особенно загружены в час пик.
перегруженность — состояние перегруженности
— Перегрузка — серьезная проблема в большинстве городов по всему миру.
очередь — очередь людей или транспортных средств, ожидающих чего-то
— Было так много людей, направляющихся в город на распродажу, что мне пришлось встать в очередь на парковку.
дорожные работы — строительные или ремонтные работы на дороге
— дорожные работы вызвали длительные задержки для людей, ехавших на работу.
объезд — другой маршрут, используемый, потому что дорога закрыта
— Дорожная авария закрыла дорогу, и транспортным средствам пришлось проехать две мили объезд , чтобы попасть в город.
должна быть задержана должна быть остановлена и отложена из-за дорожных работ, объездов движения или аварии
— Су-мин извинилась за опоздание и объяснила, что она задержала в пробке.
узкое место — место, где дорога становится узкой, или место, где часто бывает интенсивное движение, в результате чего движение замедляется или останавливается
— Дорожные работы вызвали серьезное узкое место на главной дорога в город.
ограничение скорости — самая высокая скорость, с которой вам разрешено двигаться в определенной области
Если вас поймают на превышении ограничения скорости , вам придется заплатить штраф.
камера контроля скорости — камера, установленная на дороге для фотосъемки автомобилей, превышающих ограничение скорости
— Большинство водителей замедляют скорость, приближаясь к камере контроля скорости .
дорожно-транспортное происшествие / автокатастрофа — происшествие с участием транспортных средств, которое происходит неожиданно и непреднамеренно и обычно приводит к повреждению или травме
— Два человека были доставлены в больницу после автомобильной аварии на автостраде.
Транспортный словарь Произношение
Транспортный словарь Набор 4: Путешествие
для поездок на работу — регулярно путешествовать на некоторое расстояние между домом и местом работы
— Когда Талин получила новую работу, она переехала ближе к городу чтобы ей не приходилось каждый день ехать на слишком далеко.
для проезда по — для использования определенного вида транспорта, т.е.грамм. автобус, автомобиль, поезд, велосипед и т. д., чтобы добраться из одного места в другое
— Чтобы добраться до работы, я езжу на автобусе .
взять — использовать определенный вид общественного транспорта, например автобус, поезд, такси, самолет
— Она не хотела ждать автобус под проливным дождем, поэтому взяла такси.
, чтобы сесть на — чтобы сесть в автобус, поезд или самолет
— Они прибыли на станцию как раз вовремя , чтобы сесть на поезд до его отправления.
для выхода для выхода из автобуса, поезда или самолета
— Шона нажала кнопку звонка, так как она хотела, чтобы сойти с автобуса на следующей остановке.
автобусный маршрут — регулярный рейс на автобусе
— Одна из причин, по которой я переехал на новый адрес, заключается в том, что он находится на основном автобусном маршруте , ведущем в город.
автобусное сообщение — общественное учреждение , посредством которого широкая публика может путешествовать на автобусе из одного места в другое по установленным маршрутам за фиксированную плату
— Есть хорошее автобусное сообщение в город откуда я живу.
расписание / расписание — план времени, когда должны произойти определенные события
— Интервью Джареда было в 9.30, и расписание показало, что ранний поезд доставит его туда в большом количестве время.
час пик — время начала и конца рабочего дня, когда много людей
Поездки на работу или с работы
— Огаси настолько пресытился пробками в час пик , что он купил велосипед, чтобы ездить на работу.
автобаз (США) / лапа (Великобритания) — расположение между людьми, чтобы совершить обычное путешествие вместе в одном автомобиле, обычно по очереди ехать
— Если бы больше людей организовало парковок , дороги не были бы так перегружены.
park-and-ride — система уменьшения заторов городского движения, в какие водители оставляют свои машины на автостоянках на окраинах города или города и доехать до центра на общественном транспорте
— The Park-and-ride схема оказалась настолько успешной, что вторая была создана на другой стороне город.
окраина — районы, образующие внешнюю окраину города или деревни, дальше всего от центра
— Отлично жить на окраина . В город легко попасть, но мы также недалеко от сельская местность.
удобный — фитинг в колодце с потребности, занятия и планы человека
— Есть автобусная остановка прямо напротив моего дома, что делает его удобным для того, чтобы сесть на автобус на работу.
независимый — не подвержен влиянию или каким-либо образом контролируется другими людьми или событиями
— я так
гораздо больше независимых теперь, когда я
есть скутер, чтобы передвигаться.
переполнен — полный со слишком большим количеством людей, чтобы это было удобно или сейф
— Трубка так переполнено в час пик что невозможно получить место.
ненадежно — что-то или кто-то не заслуживает доверия или неэффективен
— Наш местный автобус очень ненадежный и обычно опаздывает.
Транспортный словарь Произношение
Транспортный словарь Набор 5: Транспортные системы
сеть — группа или система взаимосвязанных людей или вещей
— Новое правительство сделало приверженность к улучшению транспортной сети страны .
Совместное использование :
- дорога сеть — а система соединенных дорог
- рельс сеть — система взаимосвязанных железнодорожные пути
метро
/ метро / метро / метро — метро
железнодорожная сеть в городе
— Самый быстрый способ
передвигаться по Лондону можно на метро .




Высота такой эстакады небольшая, но она легкая, и может храниться в багажнике машины.

Нужно оставить без арматуры свободную часть длиной в 10 см. Это стыковочный узел. Вертикальное ребро профиля здесь прорезают до горизонтальной полки (лучше всего сделать это болгаркой). Потом стыковочные концы загибаются.
Можно исследовать днище, капот, проводить необходимые манипуляции.

К уголкам привариваются отрезы арматуры, расстояние можно определять по шаблонному уголку, «ёлочки» перекрещиваются. Уголки привариваются к заготовкам.
;