Покрасочная камера с водяной чертежи. Как работает покрасочная камера с водяной завесой? Для чего нужна водяная завеса? Видео и схема камеры
Покрасочная камера с водяной завесой»>Отличным бизнес-решением является покраска автомобилей в домашних условиях. Но чтобы иметь возможность красить автомобили, мало опыта и оборудования для покраски, необходимо иметь еще и помещение, в котором будет производиться окрашивание транспортных средств. В организациях, где занимаются покрасками автомобилей, уже давно производят покрасочные работы в камере с водяной завесой. Не секрет, что такое устройство можно сделать своими руками, лишь приложив некоторые усилия и потратив небольшую сумму денег, для покупки некоторого оборудования. Можно купить уже готовую, только стоимость ее будет очень высокой, а вкладывать большую сумму готов не каждый. Для того чтобы сделать устройство с водяной завесой своими руками, потребуются еще и некоторые знания.
Покрасочная камера с водяной завесой – это закрытое помещение, которое изготавливается из нержавеющей стали и имеет приточно-вытяжную вентиляцию.
Планировка камеры для покраски
Зная, из чего состоит покрасочная камера, необходимо определиться с размещением, где будет производиться обустройство, и сделать проект, по расположению основных конструктивных элементов. Отличным размещением для сооружения устройства может послужить гараж, или же построить новую пристройку, что займет больше времени и соответственно финансов.
Для изготовления устройства своими руками понадобятся элементы конструкции, из которых она будет основываться, системы отопления и вентиляции, фильтрации и освещения.
Схема покрасочной камеры с водяной завесой
Изготовление камеры для покраски
Сделав планировку, необходимо провести все технические расчеты, и приступать к монтажным работам.
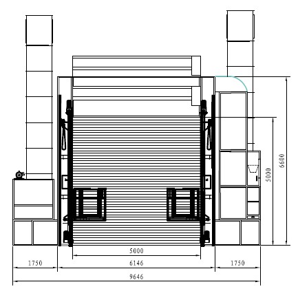
В первую очередь строится новое помещение или собирается каркас внутри гаража. Общие размеры должны быть: длина 10 метров, ширина 8 метров, высота 3,5 метра. Покрасочная камера соответственно имеет размер: 4 метра шириной и 6 длиной.
- Установка ворот.
Ворота использовать лучше всего утепленные, чтобы не было подсоса и потерь теплого воздуха, снаружи обшивается профнастилом. В месте соприкосновения ворот, утепляется специальной клейкой лентой. Места со щелями, необходимо запенить монтажной пеной. - Конструкция пола. Основание пола из бетона, внутри которого делается отверстие, и выводится на улицу металлическая труба диаметром 150 мм, для оттока воздуха. На пол ложится металлическая решетка по всей поверхности помещения на высоту 15-20 см.
- Стены.
Стены обшиваются профнастилом, а внутри утепляются, можно сделать сэндвич панели. - Система воздухообмена. Составные элементы: два электродвигателя и металлические трубы диаметрами 100 мм и 150 мм соответственно. Для приточной вентиляции используется электродвигатель мощностью 5 кВт, для вытяжной не менее 7 кВт.
- Потолок. Изготавливается из профнастила, с утеплителем. В потолке монтируется металлический каркас для притока воздуха. Электрокалорифер, который будет подавать теплый воздух в помещение, устанавливается на улице.
- Установка ворот.
- Очистка воздуха. Осуществляется с помощью фильтров и имеет трех уровневую очистку.
- 1 Уровень. Создается фронтальная водяная завеса, которая осуществляется путем стекания равномерных потоков воды;
- 2 Уровень. Очистка воздуха внутри устройства. Способствует фильтрации и очистке воздуха от отходов краски;
- 3 Уровень. Сухая фильтрация. Способствует полной очистке воздуха от частиц краски и выполняет функцию защиты вентилятора от налипания краски.

- Освещение. Монтируются светодиодные или люминесцентные лампы по потолку и стенам помещения.
Устанавливаются также автоматические датчики управления и контроля над системой приточно-вытяжных вентиляторов и фильтров.
Смонтировав все необходимое для водяной камеры, устанавливается оборудование для покраски.
Как осуществляется работа
Электрокалорифер нагнетает воздух из атмосферы в замкнутое пространство помещения.
В помещении поднимается температура за счет работы Тэнов. Начинается процесс покраски. Внизу на полу, начинает высасываться воздух из камеры, с помощью вытяжного вентилятора. Перед магистралью установлены водяные завесы, которые способствуют задержанию частиц краски. Здесь воздух проходит все три уровня очистки, если такие предварительно установлены. По такому же принципу работают камеры с водяной завесой и заводского производства.

Положительные моменты устройства своими руками
- Свободное планирование системы.
- Большая экономия средств.
- Возможность экономить на всех составных элементах.
- Способность употребления основных частей конструкции.
Недостатки устройства
- Возможны неточности в подсчетах, или недоделки в монтаже устройства.
- Нет возможности автоматизировать полностью процесс, так как элементы устройства состоят из отдельных частей.
- Нет никаких гарантий на работоспособность такого устройства.
Стоимость
Затраты на сооружение камеры с водяной завесой своими руками может занять длительное время, но стоимость ее будет равняться около 4000 долларов. Купить заводскую можно от 20000 долларов и выше. Для начала бизнеса, лучшим вариантом есть сооружение своими руками, что гораздо прибыльнее для начинающего бизнеса.
Каким образом работает покрасочная водяная с водяной завесой?
Задача любой покрасочной камеры обеспечить очистку воздуха в зоне распыления от окрасочного тумана и паров растворителя.
Водяные покрасочные камеры имеют несколько уровней очистки воздуха от краски.
1 Уровень — фронтальная водяная завеса — эта видимая часть покрасочной камеры с водяной завесой. По ней сплошным и непрерывным потоком стекает поток воды. Он должен быть равномерным и полностью покрывать всю лицевую площадь (поверхность) завесы.
2 Уровень — внутренняя очистка воздуха — пожалуй здесь осуществляется основная фильтрация и очистка воздуха от отходов краски. В зависимости от конструкции покрасочной камеры и производителя существуют различные системы внутренней очистки воздуха.
3 Уровень — сухая фильтрация — осуществляет финишную очистку воздуха от оставшихся частичек краски и защищает лопасти вентилятора от налипания краски. В зависимости от производителя сухая фильтрация осуществляется в Итальянских покрасочных камерах с водяной завесой в Российских покрасочных камерах — в прочих таких как Китай фильтрация отсуствует вовсе.
Ниже приведены схемы строения Итальянских покрасочных камер и Российских:
1) Схема водяной покрасочной камеры ZINCOVELO ZA Италия
2) Видео работы покрасочной камеры Италия
3) Схема водяной покрасочной камеры производства Россия
4) Видео работы покрасочной камеры Россия (встроенной в чистую комнату, камеру избыточного давления)
2
Принцип работы покрасочной камеры с водяной завесой заключается в следующем.
При распылении материала образуется окрасочный туман. Вентилятор, который установлен на крыше покрасочной камеры создает разряжение и затягивает загрязненный воздух через отверстие в покрасочной камеры в нижней части фронтальной завесы.
Также на фронтальную лицевую поверхность осаждаются частички краски и пыли, которые улавливаются и уносятся сплошным потоком в ванную покрасочной камеры и оседают в воде.
Загрязненный воздух, который с воздушным потоком попал во внутреннюю полость покрасочной водяной камеры подвергается дополнительной очистке.
Финальная очистка — сухая фильтрация установленная перед вентиляторами ( или )
Водяные покрасочные камеры могут быть различной модификации: с полом, с боковым стенками, без пола и без стенок. Выбор модели зависит от технологии покраски и изделия, а также требований к качеству покрытия.
Покрасочные камеры осуществляют функцию вытяжки и очистки воздуха.
При создании окрасочного участка очень важно обеспечить правильный микроклимат в зоне распыления (нужный температурный режим), а также поступающий воздух добжен быть очищен от пыли и грязи , это позводит добиться отличных условий для получения высокого качества покрытия.
Разберёмся, какие бывают камеры для покраски деталей мебели. В
зависимости от того, в каком количестве и каких размеров будут
окрашиваться детали, какими лакокрасочными материалами Вы будете
работать, подбирается нужная покрасочная камера .
2.
- покрасочная камера водяная без боковых стен и пола (только фронтальная завеса)
- покрасочная камера водяная с активным водяным полом
- покрасочная камера водяная без пола с боковыми стенками
- покрасочная камера водяная с активным водяным полом и боковыми стенками
- покрасочная камера водяная с активным водяным полом и активными водяными стенками
- небольшие покрасочные камеры, по-другому малогабаритные или лабораторные для покраски небольших изделий в штучном производстве, приборостроении длинной 1 и 2 метра.
Покрасочная камера с сухими фильтрами
Благодаря своей конструкции, при покраске в сухой покрасочной камере удаляется излишний окрасочный туман и загрязненный воздух из зоны нанесения краски, при этом происходит его очистка. Всё это работает при правильном подборе вентилятора.
Что происходит при работе покрасочной камеры с сухими фильтрами
При работе сухой покрасочной камеры происходят следующие процессы:
- удаление частиц краски и пыли с зоны распыления
- удаление окрасочного аэрозоля, при этом исключается его распространение в смежные помещения
- обеспечиваются условия для получения лакокрасочного покрытия высокого качества
- воздух, который удаляется из зоны окраски, очищается от
механических частиц краски, которые остаются в фильтрах, и
выбрасывается в атмосферу.

Как происходит фильтрация воздуха в сухой покрасочной камере?
Поток воздуха, который загрязнен лакокрасочными продуктами, с помощью вентилятора движется по инерции в проем камеры, где установлен один или два фильтра .
Какие бывают фильтры для сухой покрасочной камеры?Фильтры для сухой покрасочной камеры бывают: Картонный фильтрПринцип работы картонного фильтра следующий -частички краски и лака ударяются несколько раз о внутреннюю стенку фильтра и оседают не нём, а воздух по инерции продолжает движение, при этом не происходит потерь скорости воздуха при всасывания. Пример расчёта фильтрующей способности сухого фильтраНапример, у Вас сухая окрасочная камера длинной 2 метра с площадью всасывания 3,6 кв.м. Эта площадь соответствует двум отрезкам картонного фильтра высотой 0,9 метра и шириной 2 метра. Фильтр удерживает около 15 кг краски на 1 кв.м. Получается,
что фильтр нашей окрасочной камеры удержит 54 кг отходов
краски. Стекловолокнистый фильтрСтекловолокнистый фильтр изготовлен из ворсистого переплетенного стекловолокна, который пропитан специальным составом. Фильтр удерживает частицы окрасочного тумана. Стекловолокнистый фильтр может использоваться в качестве единственного или второго уровня очистки воздуха от окрасочного тумана. В варианте второго уровня фильтрации это фильтр устанавливают за картонным фильтром. Часто фильтр стекловолокнистый в рулоне устанавливают на пол в автомобильных камерах, отсюда его второе название – «напольный». Срок службы таких фильтров небольшой, всего 60 часов окраски. |
На какое время хватает фильтра для сухой покрасочной камеры?Этот вопрос, несомненно кроме технологической части, имеет ещё и экономическую составляющую. В основу расчёта «времени жизни» сухого фильтра заложены следующие составляющие:
Пример расчёта времени жизни сухого фильтраНапример, у Вас опять же 2-ух метровая сухая окрасочная кабина, расход ЛКМ за смену 20 литров в сутки (без учета растворителя), Вы используете краскораспылитель с традиционной системой распыления , коэффициент переноса материалов 40-45%, то есть 8 литров из 20 литров краски улетает в туман. Наш показал, что он может удерживать до 54 кг краски. Получается, что одной замены фильтра хватит 54/8 = 6,8 дней, то есть примерно на неделю работы. А если Вы купили рулон фильтра, то его хватит на месяц, что это будет в деньгах считайте уже сами . |
Покрасочная камера с водяной завесой
Покрасочная камера с водяной завесой обеспечивает максимальный уровень чистоты и удаление пыли в зоне покраски. Всё это позволяет создать идеальные условия для получения качественного глянцевого лакокрасочного покрытия.
Фронтальная водяная завеса улавливает окрасочный туман, а поток
воздуха, создаваемый вентилятором дополнительно втягивает
загрязненный воздух.
| Видео. 2. Покрасочная камера с водяной завесой |
Что происходит при работе покрасочной камеры с водяной завесой
При работе водяной покрасочной камеры происходят следующие процессы:
- удаление частиц краски и пыли из зоны распыления
- удаление окрасочного аэрозоля и исключение возможности его распространения в окружающие помещения
- обеспечение идеальных условий для создания высокого качества покрытий
- удаляемый воздух очищается от механических частиц краски и части аэрозольных паров и выбрасывается в атмосферу.
Как ухаживать за покрасочной камерой с водяной завесой?
Первое, что делается при эксплуатации камеры с водяной завесой это замена воды. Меняют её в зависимости от степени загрязнения в кабине.
Насколько быстро загрязняется камера, это зависит как от
интенсивности покраски, то есть сколько ЛКМ наносится за смену, так
и используемых окрасочных пистолетов.
У краскопультов с низким
коэффициентом переноса материла много краски уходит на
туманообразование, а значит и больше оседает в кабине. Если вода
грязная, то она хуже улавливает окрасочный
туман и пыль.
Как очищают воду от краски в покрасочной камере с водяной завесой?
На маленьких фабриках воду просто сливают в канализацию, что в принципе нельзя, а скопившуюся краску на дне вычерпывают лопатами и другими подручными средствами.
На «продвинутых» фирмах для удаления краски используют коагулянты и сборник лакокрасочных отходов. Добавление коагулянта позволяет превратить краску в хлопья, которые выпадают в осадок или всплывают на поверхность в виде хлопьев. Хлопья удаляют вручную или с помощью сборника отходов.
Как происходит очистка воздуха в окрасочной кабине с водяной завесой?
У водяных покрасочных камер три уровня очистки воздуха от краски:
- На первом уровне очистка воздуха производится с помощью фронтальной водяной завесы.
По этой части камеры сплошным и непрерывным
потоком стекает поток воды.

- На втором уровне происходит внутренняя очистка воздуха, здесь происходит основная фильтрация и очистка воздуха от отходов краски. В зависимости от конструкции покрасочной камеры и производителя существуют различные системы внутренней очистки воздуха.
- На третьем уровне осуществляется сухая фильтрация — воздух очищается от оставшихся частичек краски и защищает лопасти вентилятора от налипания краски.
Схемы конструкций водяных камер
У разных производителей покрасочных камер системы фильтрации отличаются, для примера приводим несколько схем водяных покрасочных камер.
Какой длины и ширины выбрать покрасочную камеру?Если максимальная длина окрашиваемых деталей 2,7 метра, то необходимая длина кабины 3 метра, а если 1,8 метра, то нужно 2 метра. Если хотите, чтобы в кабине работало два маляра, то цифры умножаем на два, как минимум. Глубина кабины зависит от размеров помещения, в котором будет
проводится покраска. Если помещение, например, 4 метра, а кабина 3 метра, то кабину можно установить без боковых стенок. Опять же, если две кабины установлены рядом, то боковые стенки обязательны, чтобы не было напыла с соседней камеры. |
Пример покрасочной камеры с мебельного производства
Приводим фото покрасочной камеры, которые были сделаны во время экскурсии на реальной действующем предприятии.
    Написать : [email protected]      
Сборники отходов ЛКМ
Покрасочные камеры с водяной завесой
Конструкция покрасочных камер с
водяной завесой изготавливается из первосортных оцинкованных
листов, гнутых под давлением. Камера оснащается складной завесой, что облегчает
ее обслуживание, кассетами с фильтрами типа «пэйнт-стоп
» (Paint-Stop
),
погруженным в воду циркуляционным насосом из нержавеющей стали, искрозащищенным вентилятором и взрывозащищенными
светильниками IP
66 .
Скорость движения воздуха в зоне покраски – 0,4–0,5 м/сек.
Комплектация: CVA — с короткой базой и CVA/G — с удлиненной базой, водяным полом и решеткой.
По Вашему запросу наши специалисты подготовят проект камеры избыточного давления («чистой» комнаты) на базе предлагаемых , а также подготовят Вам предложение по поставке окрасочных комплексов на базе систем низкого давления HVLP нанесения ЛКМ (компрессоров , краскораспылителей , в т.ч. HVLP , дистилляторов и др.).
Рекомендуем ознакомиться с некоторыми тезисами по организации работы малярных цехов на базе покрасочных камер с водяной завесой в зимний и осенне-весенний периоды времени.
Также предлагаем Вашему вниманию устройство для очистки воды от лакокрасочных отходов в покрасочных камерах с водяной завесой (Сборник отходов ЛКМ).
Кроме
поставки итальянских покрасочных камер мы также производим свои собственные,
соответственно отечественного производства.
Основные преимущества – низкая цена
и быстрые сроки (всего 15 дней)! Внимание! Новинка! Восстановленные до нового
состояния покрасочные
линии б/у
от Veneta
Revisioni (Италия)!
Покрасочные камеры с сухой фильтрацией
Конструкция изготавливается из сэндвич-панелей . Стенки сэндвич-панелей изготавливаются из покрашенных порошковой краской оцинкованных листов толщиной 30 мм, пространство между которыми заполняется вспененным пенополиуретаном .
Фильтрация загрязненного воздуха осуществляется при помощи набора стекловолоконных (напольных) и лабиринтных (в камерах без угольных элементов) фильтров типа «пэйнт-стоп » (Paint-Stop ) толщиной 50 мм, устанавливаемых фронтально. С целью снижения концентрации пыли в зоне покраски и зонах складирования и сушки рекомендуем использовать
Столярная мастерская (столярка) на даче своими руками — 50 фото
Содержание
- 1 Что лучше: строительство нового или использование старого
- 2 Выбор места под мастерскую: дельные советы
- 3 Проект мастерской: с чего начать
- 4 Тонкости в составлении проектов
- 5 Завершение проекта: последние штрихи
- 6 Строительство столярной мастерской своими руками
- 6.
1 Фундамент - 6.2 Стены
- 6.3 Пол
- 6.
- 7 Как оборудовать столярную мастерскую
- 7.1 Второе помещение столярной мастерской
- 7.2 Дополнительные фото столярной мастерской
- 7.3 Видео-экскурсия по столярной мастерской
В процессе строительства дачи ли загородного дома своими руками появляется желание сделать его настолько красивым и индивидуальным, чтобы у друзей и соседей проснулась зависть. Но даже у вас есть умение и желание столярничать, то необходим инструмент и помещение, в котором будут рождаться шедевры деревянного искусства. Предлагаем вам рассмотреть строительство столярной мастерской как воплощение в жизнь вашего хобби. Хотя может быть впоследствии она сможет стать вашим небольшим бизнесом.
В данной статье мы подробно рассмотрим, как оборудовать столярную мастерскую своими силами на готовом примере. Площадь мастерской представленной ниже, составляет примерно 400 м² (но можно сделать и маленькую). Вся мастерская разделена на два помещения, где располагаются рабочие обрабатывающие станки.
После прочтения этой статьи, рекомендуем ознакомиться с более компактным вариантом мастерской.
Что лучше: строительство нового или использование старого
Столярная мастерская будет выглядеть гораздо функциональнее в новом отдельно стоящем строении по ряду причин:
- Шум. Работу станков трудно назвать бесшумным производством, плюс работа вентиляционных систем.
- Запах. Нелегко избавится от запаха лакокрасочной продукции даже при условии хорошей вентиляционной системы.
- Мусор. Даже при тщательной уборке мастерской пыль невольно будет попадать в жилые помещения.
- Безопасность. Наличие режущего инструмента на станках и использование трехфазного электропитания, считается оборудованием повышенной опасности, и доступ посторонних лиц к нему запрещен.
- Производственная площадь. Вряд ли в доме найдется помещение достаточной квадратуры, чтобы комфортно поместить все необходимое оборудование для полноценной столярной мастерской.

- Вспомогательная площадь. Необходимо выбрать место под хранение инструмента, а также для складирования заготовок и готовой продукции.
Бытует мнение, что мастерская для столярных работ в домашних условиях должна занимать до 6-7 м2, но этого катастрофически мало. На такой площади не удастся поместить максимальное количество оборудования. Тем более, что рекомендованная длина помещения должна быть не менее 4 м. Даже если по счастливой случайности уместить все необходимое, то места для нормальной работы вам не останется. О хранении материала и готовых изделий и говорить нечего.
Столярная мастерская своими руками
С гаражом тоже не получиться. Это специализированное место для машины и рисковать ее целостностью во время работы не подходящий вариант. Кроме этого мастерская требует нормального температурного режима, который трудно поддерживать в гараже. Еще необходимо выделить пространство для хранения автомобильных запчастей и инструмента.
Сарай — это уже ближе, но все равно вряд ли подойдет.
Скорее такое решение потребует кардинальной перепланировки и перестройки, соизмеримой с новым строительством.
Для столярки необходим надежный фундамент из плит. Установленное не устойчиво оборудование будет давать вибрацию, что, в конце концов, приведет к его поломке.
Рассмотрев все варианты, принимаем решение поместить мастерскую во вновь построенном здании.
Выбор места под мастерскую: дельные советы
Место под строительство мастерской
При определении места под будущую столярную мастерскую необходимо учесть некоторые аксиомы ее размещения:
- Как можно дальше от жилой зоны и строений с домашней живностью, если такая имеется. Шум, производимый рабочим оборудованием, будет неблагоприятно действовать на нервную систему ваших домочадцев.
- Желательно подобрать открытое пространство. Отсутствие теней позволит немного сэкономить на обогреве мастерской в зимнее время и на освещении в течение года. Солнечное излучение будет обогревать, и освещать помещение.

- Для исключения подтопления строения во время дождей и снеготаяния не нужно строить его в местах с низким общим уровнем. Это может привести к проблемам с самой постройкой и даже к аварийным ситуациям, например короткому замыканию электропроводки.
- Желательно обеспечить удобство доступа в любых погодных условиях, чтобы зимой избежать постоянной расчистки снега, а во время весеннего снеготаяния предотвратить подтопление здания.
- Участок почвы не пригодной для земледелия станет прекрасным местом для будущего строитель
Проект мастерской: с чего начать
Первым шагом в осуществлении проектирования является определение, какими конкретно работами в мастерской вы будете заниматься. Желательно продумать и записать все планируемые работы, как в ближайшее время, так и в будущем. На основании этого перечня необходимо составить список вспомогательного оборудования необходимого для выполнения поставленных задач.
Далее определить наличие необходимого инструмента, (от стамески и молотка до дрели и электролобзика), гвоздей и саморезов, заготовок и готовых изделий. Не забудьте укомплектовать список порошковым огнетушителем и аптечкой. После чего определить, как разложить все вышеперечисленные вещи, какие для этого нужны шкафы, стеллажи и полки. Переходим к перечню основного оборудования. Список должен быть укомплектован:
- верстаком;
- станками, согласно перечню работ;
- перспективное оборудование;
- промышленным пылесосом;
- отопительными радиаторами;
- ящиком с песком;
- умывальником;
- емкостью с водой;
- шкафчиком для спец одежды;
- табуретом.
оборудование мастерской
После этого ко второму необходимо прибавить шкафы и стеллажи с предметами из первого списка. Далее определяем место под будущие заготовки. Рекомендованный минимальный размер такого стеллажа 1 м × 6 м, его тоже нужно добавить во второй список.
Такой подробный перечень позволит рассчитать габариты будущей столярки.
Тонкости в составлении проектов
Когда все приготовления закончены, наступает время проектирования. Итогом ваших усилий должен стать документ, являющийся проектом будущей мастерской. Для строительства нет необходимости составлять строительные чертежи по всем правилам, достаточно подробных эскизов с указанием реальных размеров будущего помещения и габаритов основного и вспомогательного оборудования, указанного вами во втором списке.
Эскизов должно быть несколько. На одной проекции тяжело указать все элементы строения. Поэтому на ваших набросках должны присутствовать все детали до мелочей. Наружные и внутренние размеры помещения и его элементов указываются без соблюдения масштаба, но должны отображать действительное положение предметов и строительных элементов.
Приблизительным расчетом необходимой площади для мастерской будет произведение площади всего оборудования, стеллажей и шкафов и коэффициента равного 1,5-2.
Все же, если компьютерная графика для вас представляется, как не паханая целина, то визуальную планировку столярки можно выполнить дедовским методом. Возьмите лист миллиметровой бумаги, начертите на ней помещение будущей столярки в масштабе 1:20, согласовав с приблизительным расчетом и заранее выполненными рисунками.
Из этой же бумаги вырежьте прямоугольники оборудования и вспомогательных конструкций в масштабе, но по настоящим размерам. Это даст возможность правильно разместить их в мастерской с учетом рабочих мест и проходов. При необходимости можно перемещать прямоугольные макеты, для определения совершенной компоновки мастерской:
- На листе миллиметровки проводим перпендикулярно две линии, означающее стены.
- Вычерчиваем дверь помещения. Размер дверного проема должен быть немного больше самого крупногабаритного оборудования. Тогда не возникнет проблем при его транспортировке. Выполняем расстановку оборудования;
- Дочерчиваем оставшиеся стены;
- Определяем месторасположение оконных проемов и наносим на чертеж.
Желательно оборудовать окнами восточные и южные стены. Это позволит получить больше солнечного света и тепла; - Замерьте все размеры и с учетом масштаба нанесите на планировку мастерской.
Это будет вашим руководством к дальнейшим действиям.
Завершение проекта: последние штрихи
Еще несколько необходимых действий, которые нужно обязательно выполнить, чтобы получить проект, имеющий право на жизнь.
В мастерской желательно предусмотреть несколько помещений:
- Основное, где непосредственно выполняются столярные работы;
- Вспомогательное, где производятся дополнительные работы не связанный с деревообработкой, например окраска и сушка готовой продукции;
- Подсобное, предназначенное для бытовых нужд, например переодевания и отдыха, оборудованное шкафчиком для одежды, столиком, чайником для организации перекуса, кушеткой для кратковременного перерыва.
Эти помещения помогут разделить сферы деятельности по зонам и будут способствовать комфорту при проведении рабочего процесса.
Схему подсобного помещения с размерами ее обстановки, необходимо выполнить на одном листе с основным цехом.
Место для хранения длинномерного леса или пиломатериала должно находиться напротив входной двери, для удобства складирования. Возле стеллажа должен быть размещен станок, для распиливания заготовок.
После получения планировки столярки, переходим составлению ее эскиза. Определяем материал для стен, их толщину и высоту. Выбираем вид крыши и материал кровли. Здесь рекомендуется полагаться на свои пожелания, бюджет и возможность сделать своими руками.
Важным вопросом в проектировании столярной мастерской является разработка вентиляционной системы. Она должна быть принудительной, приточно-вытяжной. Такая система обеспечит удаления стружки и вредных веществ, полную рециркуляцию воздуха и регулировку микроклимата не только в помещении столярки, но и в покрасочном отделении. Прочертите на эскизе все составляющие вентиляции с указанием параметров и размеров.
Завершающим этапом проектирования является создание схемы электропитания, освещения, как основного, так и индивидуального для каждого рабочего места, контура заземления.
Каждое рабочее место должно быть оборудовано розеткой с заземлением, каждый станок должен быть заземлен. По окончании делается эскиз подвода к зданию мастерской коммуникаций.
Строительство столярной мастерской своими руками
Место выбрано, проект подготовлен, можно приступать к возведению столярной мастерской. Строительство следует разделить на несколько этапов:
Фундамент
фундамент
- На заранее выбранном месте размечаем периметр будущей мастерской.
- Выбираем грунт на глубину 70 см под будущий плитный фундамент.
- По краю котлована ставим опалубку на 20 см выступающую над уровнем земли.
- Готовим основание из гравия и песка, тщательно утрамбовывая до толщины 20см.
- Выполняем армирование. Берем армосетку, укладываем на основание. Второй пласт армированной сетки прикручиваем к нижней с помощью кусков арматуры длиной 250 мм вязальной проволокой Ø1,5-2 мм.
- В местах монтажа станков устанавливаем анкерные болты.

- Заливаем бетоном марки М200.
- Накрываем бетон брезентом или пленкой и оставляем до полного затвердевания в течение 3-4 недель. При жаркой погоде бетон желательно периодически поливать водой.
Стены
Монтаж стен в первую очередь зависит от выбранного материала. Если строение будет деревянным, то для крепежа нижнего венца при заливке фундамента по его периметру необходимо заложить резьбовые шпильки. Дальше возведение стен сводится к строительству деревянного сооружения. Помещение на ваше усмотрение можно сделать кирпичным или пенобетонных блоков. После изготовления коробки установите оконные и дверные блоки. Крышу выполните по заранее подготовленному эскизу своими руками.
Пол
Полы в столярной мастерской играют важную роль. Обычно его делают из нескольких слоев. На фундаменте делают основу из песка толщиной 5 мм, затем покрывают толью и сверху кладут настилы из досок или укладывают армосетку и заливают бетоном. Второй вариант более надежен и популярен.
Если столярка сделана из дерева, то необходимо выполнить пропитку стен огнезащитными составами.
Далее необходимо завести в помещение все коммуникационные сети и выполнить разводку. Все кабельные линии по сечению должны соответствовать токовой нагрузке, возлагаемой на них в процессе дальнейшей эксплуатации. В мастерской из дерева в целях пожарной безопасности при коротком замыкании укладывают в металлические трубы, в других строениях применяют гофрированную трубу из самозатухающих полимеров.
Далее выполняем монтаж и подключение вентиляционной системы и станков, расставляем шкафы и стеллажи, устанавливаем полки, раскладываем инструмент.
Отопление в мастерской обустраивают с помощью масляных радиаторов или водяного автономного отопления. В качестве источника нагрева теплоносителя можно использовать электрокотел, а при возможности оборудования помещения под котельную можно использовать газовые или твердотопливные котлы. В деревянной мастерской котлы на твердом топливе лучше не использовать велика вероятность случайного возгорания.
Как оборудовать столярную мастерскую
Общий вид на мастерскую
Рис 1. Общий вид на мастерскую
В центре располагается распилочный станок, возле стены заготовочные станки, которые позволяют выполнить торцевую обработку доски, сделать распил и т.д.
Заготовочный участок
Рис 2. Заготовочный участок
Здесь складируется подготовленные или обработанные деревянные заготовки, шпон, заготовки на фасад мебели, дверей и т.д.
Торцовочный станок
Рис 3. Торцовочный станок
Торцовочный станок используется для «роспуска» пиломатериала. К примеру, 6 метровые доски укорачивают до 4 метров, длина выбирается в зависимости от типа обрабатывающего станка, размеров помещения и требуемых размеров готового изделия. Внизу станка складируются различные отходы после торцовки пиломатериалов.
Барабанно-шлифовальный станок
Рис 4.
Барабанно-шлифовальный станок
Возле торцевого станка располагается барабанно-шлифовальный, который также изготовлен своими руками.
Вытяжка
Рис 5. Вытяжка — как важный фактор устройства столярной мастерской
Данная вытяжка для барабанно-шлифовального станка предназначена для сбора всей древесной пыли после процесса шлифовки.
Циркулярный станок
Рис 6. Циркулярный станок
Рядом с барабанно-шлифовальным станком располагается циркулярный, которая также используется для «чернового» роспуска пиломатериалов.
Фуганок
Рис 7. Фуганок
В центре мастерской располагается фуганок, который был изготовлен еще в СССР. Длина стола составляет 2800 см, а ширина достигает 420 мм.
Рейсмус
Рис 8. Рейсмус
Рейсмус располагается рядом с фуганком с размером для заготовок 420 мм.
Аспирация
Рис 9.
Аспирация
Между рейсмусом и фуганком располагается мощная аспираторная установка, которая собирает в процессе обработки всю древесную пыль в специальный резервуар, который потом легко можно очистить.
Фрезерный станок сделанный своими руками
Рис 10. Фрезерный станок сделанный своими руками
Фрезерный механизм был позаимствован с заводского станка, а рабочий стол, каркас, аспирация и система управления изготавливались самостоятельно. В качестве столешницы использовали фрезерованный титан. Вал заводской от фрезерного станка был убран и согласно размерам рабочей части станка был выточен новый. Вал получился без всяких конусов под старые посадочные фрезы, что весьма удобно.
Вал фрезеровочного станка
Рис 11. Вал фрезеровочного станка
Токарный станок
Рис 12. Токарный станок
Станок ШЛДБ
Рис 13. Станок ШЛДБ
Торцовочный станок
Рис 14.
Торцовочный станок
Столярка выполненная своими руками потребует не только специфических навыков для точной настройки и сборки станков, но и существенных финансовых затрат на приобретение необходимых материалов.
Ленточная пила типа «Корвет 33» заводского исполнения
Рис 15. Ленточная пила типа «Корвет 33» заводского исполнения
Угловой торцовочный станок
Рис 16. Угловой торцовочный станок
Заточные станки: наждак, алмаз и войлок
Рис 17. Заточные станки: наждак, алмаз и войлок
Данные станки используются для заточки стамесок, сверл и других рабочих инструментов.
Долбежный станок
Рис 18. Долбежный станок
Некоторые элементы от долбежного станка были позаимствованы у фрезерного заводского станка. Каркасная основа, рабочий стол, элементы управления были изготовлены самостоятельно. Двигатель используется на 380 Вольт с установленным подшипником в задней части.
Подшипник был установлен для того, чтобы увеличить мощность двигателя, который под такой нагрузкой без доработки просто не работал.
Стапель раздвижной на треногах
Рис 19. Стапель раздвижной на треногах
Самодельный универсальный станок (рубанок, пила)
Рис 20. Самодельный универсальный станок (рубанок, пила)
Столешницы изготовлены из высококачественного и прочного титана.
Пильно-фрезерный заводской станок
Рис 20. Пильно-фрезерный заводской станок с возможностью регулирования высоты и угла обработки пиломатериалов.
Сверлильный станок
Рис 21. Сверлильный станок
На рисунке представлен сверлильный станок заводского исполнения времен СССР. Был доработан двигатель и переточены шкивы.
Верстак
Рис 22. Верстак
Стеллаж с метизами
Рис 23.
Стеллаж с метизами
Шкафчик для стамесок возле верстака
Рис 24. Шкафчик для стамесок возле верстака
Шкафчик для рабочих фрез
Рис 25. Шкафчик для рабочих фрез
Второе помещение столярной мастерской
Самодельный пресс
Рис 26. Самодельный пресс
Габариты пресса составляют 900 мм в длину и 2700 мм в ширину. На пластиковые упоры укладывается заготовка, которая после этого сдавливается прессом.
Универсальный заточной станок
Рис 27. Универсальный заточной станок
Здесь располагается фуганок, наждак для заточки фрез и ножей.
Барабанно-шлифовальный станок марки JET 16-32
Рис 28. Барабанно-шлифовальный станок марки JET 16-32 с доработанным рабочим столом и подающим валиком.
Барабанно-шлифовальный станок марки JET
Рис 29.
Барабанно-шлифовальный станок марки JET
Заводской станок с доработанными опорными пластинами, установлен внутренний кожух аспирации.
Покрасочное помещение
Рис 30. Покрасочное помещение
В этом месте на треноги устанавливаются обработанные заготовки, которые впоследствии выполняются лако-красочные работы при помощи пульверизатора, кисточек.
Компрессор для покраски
Рис 31. Компрессор для покраски
Одним из обязательных условий в лако-красочном помещении – создания эффективной приточно-вытяжной вентиляции. Следует учесть, что в зимний период данное помещение, где проходят покрасочные работы должно хорошо отапливаться. В противном случае Вы не сможете качественно выполнить окраску или нанести лак.
Стапель
Рис 32. Стапель
Стапель располагается в сборочно-шлифовальном помещении, где проходят завершающие этапы обработки изделий из дерева.
Стапель изготовлен из высококачественной ламинированной фанеры, которая закреплена на металлическом каркасе с возможностью регулировки по высоте. Это делается для того, что сделать идеально ровную поверхность в помещениях с неровными полами.
Дополнительные фото столярной мастерской
1. Стеллажи
Стеллажи
2. Торцовки
Торцовки применяют для разрезания (роспуска) заготовок. Возле торцовки можно сразу организовать место для складирования деревянных обрезков, которые могут быть использованы в будущем.
Для того чтобы можно было изготовить любое деревянное изделие лучше оснастить мастерскую несколькими торцовками – с шестиметровым продольным, с поперечным и с вращающимся столом.
Торцовки
Торцовки
Торцовки
Торцовки
3. Барабанно-шлифовальные станки
Барабанно-шлифовальные станки
Барабанно-шлифовальные станки
Барабанно-шлифовальные станки
4. Циркулярка
Циркулярка
5. Электрические фуганки
Электрические фуганки
Электрические фуганки
6.
Рейсмус
Рейсмус
7. Вертикальный фрезерный станок
Вертикальный фрезерный станок
Вертикальный фрезерный станок
Возле фрезерного станка лучше всего разместить шкаф для хранения различных фрез.
Шкаф для хранения фрез
8. Токарный станок
Токарный станок
9. Шлифовальные станки с бобиной и диском (ШлДБ)
Шлифовальные станки с бобиной и диском (ШлДБ)
Шлифовальные станки с бобиной и диском (ШлДБ)
10. Ленточнопильные станки
Такое оборудование предназначено для резки дерева с помощью ленточной пилы. В отличие от циркулярки и торцовки данный станок обеспечивает более низкую шероховатость обработанной поверхности, а значит, полученные в результате распиливания поверхности (торцы) не требуют финишной обработки.
Оборудовать столярку лучше двумя ленточнопильными станками – для распилки больших и мелких деталей.
Ленточнопильные станки.
Ленточнопильные станки.
11. Заточные станки
Заточные станки
Заточные станки
Заточные станки
Заточные станки
12.
Долбежный станок
В деревообработке долбежный станок необходим для создания прямоугольных и овальных пазов в деревянных заготовках.
Рабочий стол, с прикрепленной заготовкой, может перемещаться вдоль и поперек корпуса, а также наклоняться под определенным углом, что позволяет создавать пазы различных конфигураций.
Долбежный станок
13. Стапель раздвижной
Стапель раздвижной
14. Сверлильный станок
Столяру в мастерской не обойтись без сверлильного станка, обеспечивающего сверление отверстий различной глубины и диаметра.
Сверлильный станок
Возле сверлильного станка рационально расположить шкафчик со сменным инструментом –сверлами различных размеров.
Шкафчик со сменным инструментом
15. Аспирация
Аспирация
16. Пресс
Пресс
17. Место для выполнения работ по металлу
Зона для обработки металлических заготовок должна быть оснащена сопутствующим оборудованием и инструментами (тисками, наковальней, молотком, плоскогубцами и пр.
), которые лучше располагать на столе и окружающих его стеллажах и полках.
Место для выполнения работ по металлу
18. Столярный стол
Основным оборудованием столярной мастерской является надежный рабочий стол для выполнения чертежей, ручной обработки деревянных изделий и прочих настольных столярных операций.
Столярный стол
19. Зона для выполнения лакокрасочных работ
Идеальный вариант – выделить не зону, а целую комнату для выполнения работ по покраске и вскрытию лаком деревянных изделий. В любом случае данное место работы должно быть оборудовано хорошей вытяжкой и иметь окно.
Зона для выполнения лакокрасочных работ
20. Стапель для окончательной сборки
В качестве стапеля для сборки мебели можно использовать любую ровную и чистую поверхность. В идеале если площадь стапеля составляет не менее 10 м2.
Стапель для окончательной сборки
21. Козлики (ваймы)
Ваймы используют, чтобы облегчить сборку и склейку столярных изделий.
Козлики
22. Место для хранения столярных инструментов
Полки с инструментом (клея, скотчи, рулетка, отвертки, линейки, карандаши, циркули и т. д.) должны располагаться вблизи от верстака.
Место для хранения столярных инструментов
Место для хранения столярных инструментов
Для хранения стамесок лучше выделить шкаф, где каждый инструмент будет находиться в отведенным для него месте. Такая упорядоченность поможет повысить эффективность труда.
Место для хранения столярных инструментов
23. Место для хранения метизов
Всякие металлические крепежные изделия (гайки, болты, саморезы, гвозди и пр.) и фурнитуру (ручки, ножки, направляющие и пр.) лучше расфасовать по отдельным баночкам и подписать каждую из них. Распределенные по емкостям метизы размещаются на полках недалеко от зоны сборки мебели.
Место для хранения метизов
Перед тем как делать столярку или столярная мастерская на даче своими руками — необходимо приобрести подходящее помещение, а потом произвести закупку всего необходимого оборудования.
Все вышеописанные станки, необходимые для работы в столярной мастерской, можно приобрести у фирм-реализаторов металлорежущей и деревообрабатывающей техники на их сайтах или торговых площадках. Также можно посетить специальные выставки и подробно ознакомится с представленными экземплярами столярных приспособлений, чтобы выбрать оптимальный вариант для своей столярки.
Видео-экскурсия по столярной мастерской
Большая часть используемых деревообрабатывающих столярных станков на видео были изготовлены самостоятельно с использование уже готовых заводских некоторых элементов, которые прошли доработку и улучшение. Еще одним важным аспектом в столярной мастерской – эффективная аспирация. В данной статье более подробно ответили на вопрос — как сделать своими руками столярную мастерскую или столярку. Как видно из вышеописанного материала, это трудоемкий и затратный процесс. Однако, имея все необходимые деревообрабатывающие станки и инструменты, Вы сможете с легкостью изготовить не только деревянные окна, двери, предметы мебели и интерьера, но и отреставрировать особо ценные изделия из дерева прошлых веков.
Удачи.
Рекомендуем вам еще:
Камера для покраски авто своими руками
Главная » Разное » Камера для покраски авто своими руками
Камера для покраски автомобилей своими руками
После крупного корпусного ремонта или серьезного ДТП автомобиль обычно нуждается в покраске. Этот вид работ необходимо проводить в специализированном помещении. Тем, кто желает заниматься покраской на достаточно высоком уровне, можно быть интересна покрасочная камера, изготовленная своими руками и обустроенная по своему вкусу.
Промышленные конструкции продаются по ценам, не всегда доступным для обывателя. Ну а вариант самостоятельного изготовления сможет снизить стоимость и сбалансировать траты на этот объект.
Достоинства и недостатки самостоятельного изготовления
Как и в любом деле, в постройке такого объекта есть свои плюсы и минусы.
Покраска авто в камере
Достоинства:
- возможность выбора подходящих чертежей покрасочной камеры и схем рабочих ситем;
- существенная экономия при первоначальных стадиях возведения объекта;
- возможность выбора нужных (где дорогих, где дешевых, где самодельных) агрегатов для компоновки;
- более дешевое обслуживание, чем при поставке большого дорогого комплекса оборудования.

Недостатки:
- нет однозначного гарантированного результата по завершении всей сборки такой конструкции;
- вероятность ошибочных решений, недоделок, снижающих темп ввода в эксплуатацию и создающих дополнительные расходы;
- трата сил и времени на регулировку и отладку при различных режимах работы;
- отсутствие полной автоматизации процессов ввиду нестандартной комплектации всего блока и недоработка в системах безопасности.
Схема камеры для покраски
Необходимые материалы
Рассмотрим вариант, при котором в качестве помещения будет использоваться гараж или ангар. В список обязательных атрибутов входят:
- гаражное помещение;
- теплопушка;
- тепловой генератор;
- принудительная вентиляция.
Это из крупных объектов. Также «по мелочи» нужны будут ворота, качественные светильники дневного света или со светодиодными лампами, вентиляторы, блок управления и другое. На комплектацию такого объекта, как камера для покраски автомобилей, влияет общий бюджет.
Теплоизоляция покрасочной камеры
Кроме процесса покраски, должна проводиться и сушка готового транспортного средства. Поэтому необходимо позаботиться о наличии такого бокса, как «сушка».
Требования к покрасочным камерам
Если здание для камеры еще не возведено, то необходимо учитывать основные параметры для таких построек во время его проектирования и закладки или подогнать чертежи покрасочной камеры для изготовления своими руками под удовлетворяющие выходные характеристики. В том случае, когда переоборудуется готовый ангар или гараж, то вносятся изменения по ходу ремонта или перестройки внутренностей.
В любом из этих случаев необходимо, чтобы стены были:
- с огнеупорным покрытием;
- с них легко смывались брызги краски;
- основной цвет их был белым;
- не образовывался сквозняк из щелей.
Если стены ангара изготовлены из листового металла, то нужно изнутри его изолировать, закрыть теплоизоляционными плитами, чтобы получать стабильный температурный режим без внешнего влияния.
Кроме стен, необходимо оборудовать пол в самодельных камерах для покраски автомобилей. Необходимым условием для него является обеспечение удовлетворительной циркуляции воздуха в помещении. Такой эффект достигается за счет укладывания основы из нескольких решетчатых слоев, способствующих воздухоотводу.
Пример пола для покрасочной камеры
Для входных дверей также необходимо подбирать огнеустойчивые материалы. Дверь блокирует попадание нежелательного загрязнения и пыли снаружи. Герметичность ее является не последним фактором. Открытие должно быть простым и производиться наружу для обеспечения безопасности работникам этой камеры.
Оборудование вентиляции в малярных камерах
Грамотно установленная вентиляция покрасочной камеры сможет обеспечить не только безопасность при проведении малярных и сушильных работ, но и повысит качество получаемого результата. Роль такой системы заключается в очистке воздуха в помещении от пыли, а также избавлении от мелкодисперсных частиц краски, образовавшихся после распыления.
Принято выделять одномоторные и двухмоторные вентиляционные системы. В первом случае воздух нагнетается сверху, а ненужные частицы осаждаются и выводятся через отверстие внизу. Во втором случае применяется два мотора: нагнетательный и отсасывающий. Вторым аппаратом проводится выведение загрязнения.
В системах вентиляции используются мощные двухфазовые фильтры. На первой ступени отсеиваются более крупные частицы, а на второй ступени осуществляется очистка от мелких фракций загрязнения. Производительность системы лучше подбирать около 25 см3/с.
Читайте также: Как отремонтировать бампер своими руками
Фильтры должны регулярно проходить очистку, а в случае негодности их нужно заменять. Чаще всего будет загрязняться нижний фильтр воздуховода.
Оборудование вентиляцией покрасочной камеры
При правильном обеспечении циркуляции воздуха в помещении не возникает дополнительных нежелательных турбулентных потоков. Их появлению также способствуют загрязненные фильтры.
Для сушильных камер подбирается современный теплогенератор. Такие устройства могут работать на нескольких видах топлива:
- газ;
- бензин;
- масляная отработка.
Аппарат для сушки подбирается оптимальный по расходу и мощности. Иногда они снабжены автоматическими таймерами. Можно также воспользоваться для сушки инфракрасными лампами. На первоначальном этапе они снизят расход и обеспечат достаточный результат.
Освещение помещения
Внутри самодельной камеры для покраски необходимо кроме влажности и чистоты обеспечить качественное освещение. Это даст возможность правильно оценить полученный цвет и вовремя заметить появившиеся возможные недоделки.
Освещение покрасочной камеры
Согласно правилам санитарных норм, для таких промышленных помещений необходимо обеспечивать параметр на уровне 600-1000 люкс.
Распространенным вариантом является применение светильников с лампами «дневного» света. Такое люминесцентное освещение располагается как на потолке, так и на стенах внутри здания.
Для избегания ненужных бликов или затенений необходимо обеспечить качественный свет со всех сторон.
Работа со светом не должна быть помехой, поэтому нужно избегать установки светильников на треногах или других конструкций, неподразумевающих фиксации на каркасе здания.
Обустройство внутреннего пространства
При оборудовании экстерьера покрасочной камеры своими руками, не рекомендуется отделка стен деревянными плитами или вагонкой. Это является нарушением пожарной нормы. Больше подойдут металлические или другие негорючие материалы.
Чертежи покрасочной камеры
Отделка должна обеспечивать герметичность и нераспространение мелкой пыли и мусора. Недопустимым является использование ковров и ковровых покрытий, а также мебели с тканевым покрытием.
Желательно провести монтаж или предусмотреть установку в будущем автоматического пульта управления. Хотя он повысит бюджет оборудования камеры, но позволит увеличить производительность процесса, а система станет автономнее и совершение.
Для повышения маневренности должен обеспечиваться быстрый переход с «автомата» на ручное управление и в обратном направлении.
Покрасочная камера из гаража
Любителям и начинающим малярам, для которых покраска авто чаще выступает в качестве прибыльного хобби, стоимость профессионального оборудования может показаться завышенной, поэтому чаще всего оборудование собирается постепенно, а в качестве колерной и основного помещения для работ используется обычный гараж. По крупицам приходится собирать информацию о сборке покрасочной камеры своими руками, видео, схемы, расчеты для электросети и пр. При правильном подходе и знании теории, самодельная камера ни в чем не будет уступать настоящей, но экономия окажется существенной, ведь основная наценка связана со сложностями расчета и малым количеством информации в общем доступе.
Общие требования к покрасочной камере
Отведенный для покраски бокс (по-умолчанию предполагается, что это стандартный гараж), не должен зависеть от температуры окружающей среды, т.е. помещение нужно отделить от улицы не только стенками, но и хорошими теплоизоляторами. В зимнее время решение проблемы обогрева может быть обеспечено как хорошей системой прогрева воздуха (при инфракрасных пушках – автомобиля), так и эффективной теплоизоляцией. За счет чего добиваться поддержания температуры, решать проектировщику, но комбинация должна долгое время обеспечивать температуру в 20-25 ˚C и поверхности авто, и воздуха. Добиться этого можно с помощью мощных тэнов, но экономичнее сделать ставку на хорошую изоляцию, тем более что температурные перепады во время сушки не должны покидать диапазона 3,5 ˚C, а при резком нагревании и охлаждении добиться этого проблематично.
Освещение должно работать одновременно на весь бокс и хорошо освещать рабочее место, т.е. светильники комбинируются для создания освещения в 1000-2000 Lx (дневной свет) и бестеневого освещения центральной части камеры.
Недопустимы мерцание и слишком холодные (теплые) оттенки света в покрасочном помещении. Предпочтение отдается взрывозащищенным лампам, в противном случае светильники требуют хорошей изоляции от общей атмосферы комнаты.
На качество покраски напрямую влияет чистота воздуха и воздушное давление. Одномоторная покрасочная камера (т.е. имеющая только приточную вентиляцию воздуха) легко собирается своими руками, но эффективнее вентиляция, создаваемая двумя моторами (на входе и выходе). Предпочтительнее формирование вертикальных воздушных потоков – в любом случае вытяжка должна находиться на уровне пола. Фильтры должны обеспечивать не только защиту от пыли, но и фильтрацию масляной взвеси. Имеет значение и правильное распределение воздуха в покрасочной комнате, без создания мертвых зон и слабовентилируемых участков. Общие рекомендации по обустройству стандартного гаража можно увидеть на этом видео:
Теплоизоляция
Чаще всего самодельная покрасочная камера имеет теплоизоляцию из минеральной ваты или негорючих полимеров.
В простейшем варианте стены обшиваются дранкой, поддерживающей листы изолятора, однако правильным является монтаж двух стенок, пространство между которыми заполняется изолятором. В крайнем случае, можно воспользоваться горючими материалами, но надежно изолировать их от основного объема. Примером бюджетного решения может послужить комбинация ЦСП в 2 см толщиной на потолке и гипсокартон на стенах, однако для зимнего времени эта изоляция недостаточна. Наличие в ЦСП цемента снижает горючесть материала практически до минимума, но следует исключить накопление на плите осадков от поднимаемого распылителями тумана.
С точки зрения сохранения тепла идеальным материалом кажется пенополиуретан, однако большинство любителей останавливается на обычном пенопласте, заливая щели монтажной пеной и обшивая плиты железом, ПВХ-панелями и пр. Оба материала относятся к категории Г4, т.е. сильногорючих веществ, кроме того, пенопласт легко разрушается агрессивными веществами (растворителем, бензином и пр.
). Таким образом, единственной хорошей и безопасной изоляцией можно считать правильную кирпичную кладку.
Другая сторона вопроса – неизбежный этап очистки помещения и мытья стен после окончания работ с авто. Стены должны быть не только огнеупорными, но и моющимися. В зимнее время покрасочная камера в гараже легко вычисляется по большой шапке льда, образующегося из-за перепада температур. Для пожарных инспекторов это сигнал о необходимости проверки, за которой могут последовать штрафные санкции.
Вентиляция покрасочной камеры
Система вентиляции должна организовывать равномерную подачу воздуха по всей площади камеры. Чистый свежий воздух – одно из основных требований к покрасочной комнате, но при проектировании редко учитывается возможность создания мертвых зон, а монтаж вентиляции своими руками часто заканчивается банальной установкой вентилятора. Трубы от приточной вентиляции должны равномерно выводить воздух в нескольких точках и в обязательном порядке – над основными объектами.
За один час через помещение с окрашиваемым авто должен проходить объем воздуха равный 10 объемам помещения, при отсутствии мертвых зон эти воздушные потоки должны приводить к 8-10 кратному обновлению атмосферы. Это минимальные требования.
Воздушный фильтр – обязательный элемент на приточном вентиляторе, поскольку пыль – главный враг покраски автомобиля. В идеальной камере фильтруется и выходящий воздух, при этом сам вентилятор должен отфильтровывать туман от краски и иметь клапан на случай взрыва. Мелкий фильтр от пыли будет постоянно забиваться частицами, поэтому экономичнее использовать систему двойной фильтрации, при которой сначала отсеиваются крупные частицы, а фильтр от пыли располагается на внутреннем уровне.
Расчет мощности вентиляторов производится по заводским показателям. Приточный вентилятор должен быть в 1.5-2 раза мощнее, чем расположенный на вытяжке, однако многое зависит от объема помещения. Фильтры на вентиляторе непрерывно забиваются, снижая эффективность его работы, что необходимо учесть при расчете, а при проектировании бокса для покраски предусмотреть возможность быстрой очистки вытяжки и замены фильтров.
Частый элемент гаражей – полки с хламом, инструментом, ковры, пиломатериалы и пр. Самодельная покрасочная камера не должна содержать никаких пылесобирающих материалов: ковры и тряпки должны быть удалены навсегда, а стены лучше всего покрыть белой краской. На белой поверхности лучше заметны следы, от нее хорошо отражается свет, не меняя при этом свой теплоты.
Освещение
Лучшим решением по цене и качеству являются галогенные лампы, однако имеется у таких светильников существенный недостаток – безопасность. Из-за сильного нагревания пользоваться ими нужно с осторожностью (выносить в отдельные короба, изолировать дополнительным стеклом), поэтому чаще предпочтение отдается лампам люминесцентным. Лампы размещаются в несколько рядов на потолке и на двух стенах.
Для лучшего освещения нижней части авто можно использовать переносные лампы или разместить на стене одну-две продольные лампы с хорошей защитой на случай неосторожного движения. Количество боковых ламп – примерно 20-25% от общего числа.
Размещать их нужно верхней части стены с наклоном по отношению к стене в сторону пола, как на фото.
Нюансы проектирования
Сделать покрасочную камеру можно из обычного гаража. При таком раскладе начинать нужно с требований к безопасности, потому что покраска авто является опасной процедурой из-за токсичности и взрывоопасности веществ. Следует хорошо продумать принцип обогрева помещения и равномерность вентиляции. Отведенные под нагревание ТЭНы не должны иметь возможности зажечь туман от краскопульта (иначе взрыва не избежать), но подавать прогретый воздух на поверхность авто. В идеальном случае воздух подается в камеру уже нагретым, а нагреватель отделен от помещения коробом или находится в соседнем помещении. Циркуляция воздуха не должна приводить к попаданию на нагреватель взрывоопасных газов: взвесь должна прибиваться к полу.
Электричество – энергия, на которой работает стандартная окрасочная камера, своими руками можно собрать разве что другой генератор, но вероятнее всего будут использоваться стандартные «220».
При расчете следует учесть суммарную и что особенно важно пусковую нагрузку: стандартная электросеть не способна выдерживать большие токи. Кроме того, нужно иметь представление о возможностях проводки, сечении кабеля на выходе.
Сушка авто производится инфракрасными лампами – это наиболее доступный для среднестатистического автомаляра вариант. Лампы могут включаться в обычные розетки – отдельные УЗО в покрасочной камере нужны для розеточной группы, сварочного аппарата, генератора и освещения. Общий ток, на который нужно рассчитывать, – 40-60 А. Если монтаж щитков своими руками никогда не производился, лучше воспользоваться помощью электриков. Ворота гаража должны обеспечивать хорошую изоляцию и возможность быстрого выхода из помещения, хорошим вариантом являются роллетные ворота, работу которых можно увидеть на этом видео:
Если же по каким-то причинам вы решили пойти по пути приобретения готового оснащения, то спешим предложить вам лучшее оборудование для покраски автомобилей по оптовым ценам.
Как сделать покрасочную камеру своими руками в гараже
Проведение качественной покраски машины дано не каждому.
В современном мире представлено большое число станций технического обслуживания, в которых предоставляется подобная услуга, однако, это ничуть не гарантия качества.
Несмотря на это большая конкуренция ничуть не сказывается на работе СТО, они могут безответственно выполнять свои задачи, что может негативно сказаться на внешнем виде вашего авто.
Процесс покраски не займет много сил и знаний, главное подобрать качественное оборудование и окрасочную камеру.
Если будут соблюдены все технические нормы и стандарты, ваше авто будет выглядеть прекрасно.
Если вы решили сделать покрасочную камеру, то для экономии средств развернуть все производство можно и в собственном гараже, закупив необходимое оборудование.
Это оказывается совсем не сложным процессом, главное только проявить стремление и идти к своей цели.
Даже высокий уровень конкуренции не пугает работников СТО, и они продолжают безответственно выполнять возложенные на них задачи.
Что предполагает процесс окраски?
Окраска машины проводиться в боксах, которые специально оборудованы для этого дела. Фильтры, теплообменник, вытяжки – все это необходимость для работы покрасочного оборудования.
Принцип работы заключается создание зоны с вентиляцией и включает такие рабочие циклы:
- Очистка воздуха с применением фильтра от отработанного воздуха и остатков лакокрасочных материалов.
- Проведение окраски авто.
- Проведение сушки авто.
Проведение окраски в этих камерах имеет ряд преимуществ. Герметичность гарантирует защиту от попадания пыли, предметов, собирающих пыль.
Конструкция бокса предполагает защиту от падания нежелательных потоков воздуха, сквозняков или пыли. Внутренние поверхности очистить легко, ведь они не требуют особого ухода.
Что в гараже, что в подвале, можно поместить аппаратуру для проведения покрасочных работ. Если не хватает средств, чтобы приобрести готовый бокс, вы всегда можете создать его своими силами.
Множество идей по созданию таких боксов представлены непосредственно авторами. Люди создают такие боксы из различных материалов – дерева, металла, пластика – всего, что есть под руками.
Необходимое оборудование уже закупается в специализированных магазинах. Вентилятор, фильтры, лампы или светильники – все это дополнительные компоненты, необходимые для бокса.
Устройство малярной камеры
Покрасочная камера представляет собой качественно укомплектованное помещение, созданное для производственного процесса – покраски транспорта.
Чтобы провести все покрасочные работы, необходимо продумать все до мелочей. Например, в этом процессе весьма важна вытяжка для покрасочной камеры.
Но это не единственное требование, которое необходимо исполнить. Если рассмотреть поэтапную покраску автомобиля, то можно осознать какие требования не останутся без соблюдения составляющих этапов:
- Шлифовка кузова, во время этого процесса подразумевает очищение поступающего в камеру воздуха.

- Окрашивание авто невозможно без очистки воздуха.
- В процессе сушки воздух должен нагреваться и циркулировать.
Покрасочная камера состоит из закрытого помещения, предполагающего оборудование для покраски сушки, тепло генератора для подогрева воздуха, системы вентиляции и прочими фильтрами.
В помещении должна находиться качественная теплоизоляция с температурным режимом 20-25 градусов без резких перепадов температур.
Освещение должно обеспечивать видимость на рабочем месте, без какого-либо мерцания. Следует сочетать бестеневое освещение и лампы дневного света.
Качество покраски зависит напрямую от вентиляции воздуха, поэтому необходимо оснащение одномоторной и двухмоторной вентиляцией. Первая работает в приоритетном направлении, а вторая на входе и выходе, что более эффективно.
Вентиляция должна располагаться на уровне пола, циркуляция воздуха должна быть по всему периметру. Очистка воздуха не только от пыли, но и масляных известей.
Системы вентиляции воздуха
Вентиляция должна обеспечить равномерную циркуляцию воздуха и избежать наличия мертвых зон.
Потолочные и напольные фильтры располагаются вдоль всего помещения.
Главная вентиляция должна обеспечивать вывод воздуха со всех точек, если нет мертвых зон, то воздух обновляется не менее 8-10 раз.
Вентиляционная система должна быть очищена от пыли, которая сказывается на качестве покрытия, а входящий воздух должен быть очищен от паров краски.
Покрасочные камеры представлены двух разновидностей:
- У одномоторных систем воздух поступает из верхнего короба. За счет поступающего воздуха туман краски снижается к полу и чрез отверстия снизу уходит наружу.
- Двухмоторные системы укомплектованы моторами, расположенными вверху, снизу же мотор, отвечающий за вытяжку воздуха.
Более эффективный результат могут оказать два мотора. Этот вариант будет стоить дороже, но оправдывает себя. Установка такой системы требует помощи специалистов.
Такой вариант себя оправдывает, если количество машин для покраски много, в противном случае выгоднее осуществить установку одного мотора.
Чтобы вывести воздух с пылью, прорывают траншеи в самом полу. Если пол выполнен из металла, то он уже приподнят, поэтому траншеи проделывать не стоит.
- Фильтры быстро засоряются, что задерживает воздух, в связи с этим вентиляция должна регулировать поток воздуха.
- Фильтр должен удобно располагаться, чтобы можно было его вытащить и в любой момент произвести чистку.
Поскольку на качество покраски влияет наличие пыли, ее необходимо свести к минимуму, а значит перед ней необходимо расчистить от хлама помещение, убрать все ковры и тряпки.
Вопросу пожарной безопасности необходимо уделить особое внимание, ведь из-за лакокрасочных материалов регулярно происходят пожары.
В связи с этим для проведения отделки и теплоизоляции должны применяться негорючие материалы. Все вещи, которые расположены внутри не должны быть взрывоопасными.
Если используются электроприборы, то все они должны пройти заземление, а теплообменники стоит укомплектовать термостатами от перегрева.
Помещение, в котором будут проводиться лакокрасочные работы, должно быть оборудовано системой пожаротушения.
Осветительное оборудование
Не менее важным фактором для покраски авто является освещение и приборы, которые необходимы для этого. Освещение должно располагаться не только на потолке, но и по стенам покрасочной камеры.
Лампы стоит устанавливать на равномерном расстоянии, перпендикулярно полу. Более экономичными и эффективным окажется освещение с помощью ламп дневного накаливания. На кузове авто будут видны каждые частички.
Многие предпочитают установить светодиодные лампы, которые гарантируют яркий и равномерный свет без мерцания и прочих выходов из строя.
Эти приборы позволяют значительно сэкономить на электроэнергии, ведь они экономичнее дневного света. Малярная камера должна быть максимально освящена, даже самые мелкие пылинки должны быть видны.
Оборудование для окрашивания
Покрасочная камера предполагает использование такого оборудования:
- Краскопульты бывают нескольких видов — высокого и низкого давления.
Для их работы необходим компрессор, а вот приборы низкого давления работают уже не на сжатии. - Краскопульты безвоздушного типа бывают электрические и пневматические.
- Комбинированное оборудование совмещает несколько вариантов, оно весьма эффективное.
- Механический метод предполагает погружение элементов в краску. Хорошо если детали небольшого размера еще можно так покрасить, а вот уже кузов гораздо сложнее, необходима специализированная конвейерная линия.
Из всех существующих методов самым оптимальным является применение безвоздушного оборудования.
В окрасочной камере из пистолета распыляются частички краски. Размер каждой капли непосредственно зависит от размера и формы сопла, а также самого давления.
К основным преимуществам безвоздушного оборудования стоит отнести:
- Значительно меньшее использование количества лакокрасочных материалов;
- Значительная экономия растворителя, ведь такой вид оборудования легко справляется с густыми смесями.

- С таким оборудованием достаточно установить одномоторную вентиляцию, которая является гарантией качественного покрытия кузова авто.
Если вы постоянно меняете цвет, то такое оборудование точно не подойдет. Его используют для одноразовой покраски в качестве мини покрасочной камеры.
Каждый мастер самостоятельно определяет, какой распылитель использовать, но во время выбора лучше всего проконсультироваться со специалистами.
Оборудование для покраски подбирается с учетом таких критериев как размер бокса и тип вентиляции.
Оборудование для проведения сушки
Как и оборудование для покраски, оборудование для сушки может быть совершенно разным.
Если покраска одноразовая, то вполне достаточно и простой системы, а если это постоянное использование, то без специализированной техники не обойтись:
1. Тепловые генераторы на любом топливе – идеальный вариант для одноразовой покраски. Такое оборудование работает на газе, дизельном топливе или масле.
Существуют модели теплового генератора, которые устанавливают постоянный уровень температуры и поддерживают его.
2. Чтобы сэкономить на электроэнергии и получить качественное просушивание используются не легеменные инфракрасные станки.
С помощью этой системы, возможно, осуществить просушку на этапе грунтовых работ. При этом ускоряется и процесс самого окрашивания, что позволяет мастеру значительно сэкономить время.
После того, как краска на авто обсохнет полностью, ему необходимо дать время отстояться. При этом стоит включить вентиляцию, такими методами можно ускорить высыхание лака и краски.
Стоит выделить несколько дней и только тогда можно быть уверенным, что покрытие полностью затвердеет.
Малярная камера позволит не только освежить вид своего автомобиля, но и если разбираться во всем, вы сможете запустить собственное дело, пригласив сначала на покраску друзей.
Знакомых, а там уже и другие люди подтянуться. Дополнительный источник дохода еще никому никогда не помешал.
Вот только не каждый владелец авто может похвастаться наличием собственного гаража, который можно было бы сделать настоящей мастерской.
Стоит отметить, что покрасив свое авто и имея несколько заказав, вы сможете окупить все свои затраты.
Мастера на станции СТО работают не над своим авто, поэтому не будут настолько щепетильны, как вы, поэтому стоит отметить, что порой покраска, проведенная в гараже, оказывается более качественной, чем в автосервисе.
Автовладелец при самостоятельном окрашивании более внимателен, и уж точно никуда не спешит. Кто уже успел открыть собственную камеру для покраски, успел оценить все ее преимущества и больше не может отказаться от этой работы.
Если дефекты проявляются, то их можно устранить сразу же, а значит результат будет блистательным, поэтому свое новое авто другого цвета можно смело демонстрировать друзьям.
Если что-то не так близкие люди никогда не промолчат, а вы сможете на своем опыте снова перекрасить авто.
Покрасочные камеры: своими руками (чертежи)
Покраска автомобиля или мебели является достаточно сложным и ответственным процессом, который наиболее часто доверяют специалистам, имеющим в наличии оборудованные камеры.
Однако изготовить такое устройство вполне можно самостоятельно, при этом вам удастся не только сэкономить средства, но и организовать собственный бизнес. Перед началом работ нужно ознакомиться с требованиями, которые важно соблюсти для достижения наилучшего эффекта.
Подготовительные работы
Покрасочные камеры изготавливаются с помощью перечня определенных инструментов, а также материалов. Помимо прочего, важно найти помещение, в котором будет расположено оборудование. В качестве него может выступить гараж. Запаситесь тепловым вентилятором, вентиляционной системой и тепловой пушкой. Этот перечень является обязательным. При расширении списка можно добавить двери, вентиляторы, ворота, светильники, пульт управления и прочее. Все будет зависеть от желания и финансовых возможностей. Камера должна быть автоматизирована и иметь способность выполнять не только окрашивание автомобиля или иных изделий, но и их сушку. В качестве функциональных составляющих выступает приточная вентиляция, которая снабжена разноуровневыми фильтрами для очистки.
Сюда нужно отнести камеру для окрашивания и дальнейшей сушки, тепловой насос, вентиляционную установку и автоматику. Вентиляционное оборудование должно работать по вытяжному принципу и обладать воздушным фильтром.
Покрасочные камеры изготавливаются с учетом требований, которые предъявляются к помещению. Стены должны быть огнеупорными, моющимися и максимально герметичными. С перечисленными пунктами не должно возникнуть особенных сложностей. Стены наиболее часто изготавливаются из стали и хорошо изолируются. Два слоя, которые лягут в основу системы, нужно заполнить теплосберегающими безопасными материалами. Пол тоже необходимо выполнить с учетом некоторых правил, среди них следует выделить проектирование данной части помещения с использованием нескольких слоев решетчатого покрытия, что будет обеспечивать отвод воздуха. Огнеупорный материал должен лечь в основу запасных и входных дверей, которые оберегают автомобиль от пыли и других загрязнений, поступающих с улицы. Именно поэтому столь важна герметичность.
Дверь должна легко открываться, что будет обеспечивать безопасность мастера.
Покрасочные камеры изготавливаются с учетом обустройства подходящей системы освещения. Использованием ламп дневного света можно обеспечить наилучшую видимость и отсутствие бликов, а также ненужных теней. По технологическим правилам, освещенность должна составить от 600 до 1000 люкс. Наиболее удачным и эффективным вариантом является использование люминесцентных ламп, которые располагаются на боковых стенах и под потолком. Однако такой подход предполагает некоторые недостатки, во время окрашивания мастер не будет иметь обзорности нижней части автомобиля или изделия. Для того чтобы исключить ненужные блики и недостаточное количество света, нужно расположить вдоль стены большие продолговатые лампы. Покрасочные камеры изготавливаются на основе требований свободного пространства, которое будет гарантировать удобство работы. Не следует выбирать помещение, площадь которого меньше чем 4 x 6 метров. Камеру рекомендуется устанавливать на бетонную основу, однако стоит учесть, что данный подход является весьма дорогостоящим.
Можно прибегнуть к альтернативному решению, которое предполагает использование в качестве основы металлического каркаса. Нужно расположить под полом клапан, вытяжную систему и фильтр.
Устройство вентиляционной системы
Покрасочная камера должна обладать качественной системы вентиляции, так как она выступает одним из ключевых факторов. Система должна снабжаться фильтром, что обеспечит очистку воздуха, исключая осаждение тумана краски. В продаже есть одномоторные и двухмоторные установки. Первая разновидность нагнетает воздух сверху, в результате туман осаждается вниз и выводится через специальное отверстие. Два мотора обеспечивают нагнетание и отсасывание воздуха. Когда изготавливается покрасочная камера, то можно снабдить ее и воздушным фильтром. Лучше всего выбрать двухфазную разновидность, эта модель будет способна улавливать крупные загрязнения, а также станет избавлять от мелких частиц. Важно выбирать вентиляционные системы, скорость воздуха потока которых равна пределу от 20 до 25 см в секунду.
Выбор сушки для покрасочной камеры
Если будет изготавливаться покрасочная камера своими руками, чертежи которой представлены в статье, то важно снабдить ее сушкой. Теплогенераторы, которые можно найти на современном рынке, работают на отработанном масле, газе и топливе. В зависимости от потребностей камеры можно предпочесть генератор разной мощности, он может быть снабжён автоматическим таймером и другим функционалом. Для просушки окрашенных автомобилей и изделий наиболее часто используются инфракрасные лампы. Они просты в эксплуатации и обеспечивают нужный эффект при значительных финансовых затратах.
Устройство внутреннего пространства камеры
Стоит полностью исключить внутри наличие всевозможных материалов, на которых способна собираться пыль. Сюда можно отнести мебель, ковры, тканевые материалы и мягкие уголки. Владелец при этом сможет достаточно просто производить уборку, обеспечивая нормальное состояние внутреннего пространства.
Выбор цвета для камеры
Когда изготавливаются покрасочные камеры для мебели, то стены и потолок наиболее часто окрашиваются в белый цвет.
Специалисты рекомендуют использовать для этого порошковую краску. Подобный подход обеспечит правильную цветопередачу, а также облегчает процесс окрашивания. Желательно снабдить камеру подсобным помещением, в котором будут храниться всевозможные предметы, оборудование и инвентарь.
Оборудование для окрашивания
Если будет изготавливаться покрасочная камера, инструкция, представленная в статье, может использоваться вами для проведения данных работ. Важно подготовить оборудование для окрашивания. Подойдут краскопульты, которые могут работать при высоком и низком давлении. Первая разновидность предполагает необходимость использования компрессора, который нагнетает воздух, создавая давление для окрашивания.
Что касается пневматических приборов низкого давления, то они функционируют на сжатом воздухе. В продаже можно найти и безвоздушные краскопульты, которые могут быть пневматическими и электрическими. Дорогостоящее оборудование — это комбинированные автоматы, совмещающие в себе первый и второй тип устройств.
Подобные системы объединяют лучшие характеристики безвоздушного и воздушного методов. Покрасочная камера, фото которой представлено в статье, может быть оборудована одним или сразу несколькими из вышеперечисленных устройств. Специалисты рекомендуют использовать безвоздушное оборудование, так как оно является наиболее оптимальным и эффективным. При этом из пистолета под внушительным давлением будут распыляться частицы лака и краски.
Заключение
Если вами будет создаваться покрасочная камера с водяной завесой, то можно использовать безвоздушное оборудование, которое обеспечивает экономию материалов, расходуемых при проведении работ. Если речь идет о порошковой камере, то с помощью нее удастся сэкономить растворители. Данное оборудование позволяет работать при функционировании одномоторной вентиляции, гарантируя качественное покрытие поверхности кузова автомобиля или любого другого изделия.
«Питер — АТ»
ИНН 780703320484
ОГРНИП 313784720500453
своими руками (чертежи).
Купить покрасочную камеру для мебели по выгодной ценеМебельные покрасочные камеры используются в мебельной промышленности для покрытия готовых изделий и различных заготовок лакокрасочными материалами. Кроме того, покрасочная камера сводит на нет вероятность заболевания легких у маляра из-за отравления парами краски.
Конструкция такой покрасочной камеры зависит от требований к покрытию и типов используемых лакокрасочных материалов. Поэтому, чтобы удовлетворить потребности различных областей покраски, покрасочная камера для дерева имеет следующие опции:
Вытяжной шкаф с сухой фильтрацией или с водяной завесой (гидроэкраном). Основная функция таких шкафов – отведение и очистка загрязненного воздуха из зоны покраски. Они идеально подходят вместо покрасочных камер для мебели, когда площадь окрашиваемой поверхности за смену невелика или происходит неравномерное окрашивание.
Окрасочная станция — предусматривает комплект оборудования (вытяжной шкаф с сухой или водяной фильтрацией и приточно-вытяжную установку с приточно-подвесным потолком).
Благодаря приточной вентиляции покрасочная станция не зависит от окружающего воздуха — количество подаваемого воздуха равно количеству вытяжного воздуха. Поэтому попадание пыли и других загрязняющих частиц на изделие в процессе покраски сведено к минимуму.
Камера покраски мебели, в отличие от покрасочной, отличается наличием герметичной и теплоизолированной камеры. Кабина покрасочной камеры предусматривает исключение вероятности попадания пыли или других загрязнений на поверхность окрашиваемого изделия, а также соблюдение определенного теплового режима внутри камеры. Благодаря тепловому вентиляционному оборудованию можно задавать температуру подаваемого воздуха в диапазоне от 20 до 80°С.
Покрасочные линии имеют покрасочную камеру и сушильную камеру. При этом покрасочная камера постоянно работает в одном температурном режиме, а сушильная камера в другом, что приводит к тому, что время на переход из режима окраски в режим сушки не тратится впустую.
Покрасочная камера для изделий из дерева и панелей МДФ состоит из:
- рабочее помещение;
- воздухозаборник;
- воздуховод; 9фильтры 0020;
- нагревательные элементы; Панель управления
- с основными режимами работы.

Среди основных требований к таким покрасочным камерам:
- система вентиляции и поддержания температуры;
- освещение ящика для покраски;
- наличие систем пожаротушения и др.
Вентиляционная система покрасочной камеры для дерева является обязательным конструктивным элементом и представляет собой сложный лабиринт из воздуховодов, клапанов и вентиляторов. При этом сочетается с системами фильтрации воздуха и обогрева помещения. Сделать отдельную конструкцию выхлопной системы своими руками практически невозможно, а для покрасочных камер это нерационально. Сборная, сложная, но эффективная система воздухообмена с фильтрацией и параллельным подогревом при ближайшем рассмотрении может быть упрощена и оптимизирована.
В таких камерах система вентиляции выполняет сразу несколько функций в виде:
потолочная — отличается тем, что светильники для покрасочной камеры могут быть разделены на навесные и встроенные в потолок.
Такие особенности могут привести к нарушению техники безопасности, что вызвано амплитудой перемещения подвесных светильников и из-за проблем с окраской вертикальных поверхностей многослойным покрытием;
потолок-стена – более рациональный вариант, предусматривающий улучшение визуальных возможностей качества покрытия и общей схемы покраски автомобилей, мебели или металлоконструкций;
досветка задней стенки покрасочной камеры — эта схема чаще всего используется специалистами по покраске. В результате получается качественный технологический процесс как сушки, так и покраски автомобиля.
Характеристика лакокрасочных материалов
Малярные работы являются составной частью общего технологического процесса изготовления изделий из дерева. Работы по нанесению лакокрасочных покрытий на различные объекты (поверхности) предназначены для защиты объекта от повреждений (коррозии, гниения) и придания ему надлежащего вида.
Окрашиваемые поверхности должным образом подготовлены перед покраской.
Подготовка состоит из:
очистки поверхности от загрязнений (ржавчины, пыли, старых слоев краски и т.п.) и обезжиривания;
грунтовки– нанесение антикоррозийных покрытий, одновременно обеспечивающих хорошее сцепление краски с поверхностью;
шпаклевки — выравнивание поверхности путем нанесения на нее (особенно в местах вмятин) специальной массы с последующим сглаживанием выступов и шероховатостей путем шлифовки высохшей поверхности.
Окраску начинают, как правило, с нанесения грунтовочно-проявочного слоя, позволяющего выявить дефекты подготовленной поверхности, которые затем устраняют. Завершает окраску двух- или трехслойным финишным покрытием, разделенным периодами частичного или полного высыхания отдельных слоев.
В настоящее время в промышленности применяются различные способы окраски изделий из дерева с ручным или автоматизированным способами нанесения краски:
- окунанием;
- обливание;
- напыление;
- гальваника и др.

Самый распространенный пневматический пистолет-распылитель. Каждый маляр при ручной росписи обычно выполняет комплекс последовательно чередующихся операций по подготовке и покраске неношеных изделий.
Окрасочная камера для дерева — краски и лаки
Краски и лаки, готовые к нанесению, в виде вязких жидкостей и представляют собой пленкообразующие вещества (нитроцеллюлозу и натуральные или искусственные смолы), растворенные в летучих жидкостях. Через некоторое время после нанесения летучая часть покрытия испаряется и на поверхности изделия остается защитная пленка. Во многих случаях пленку подкрашивают путем добавления в составы покрытий пигментов (белил, сурика и кроны, сажи и др.).
Все лакокрасочные материалы подразделяются на:
Пневматическая покрасочная камера для изделий из дерева и панелей МДФ
При пневматическом распылении лакокрасочный материал, захватываясь потоком воздуха из емкости, распыляется на изделие из древесины , образующий факел аэрозоля краски с углом раскрытия 60 0 .
Струя смеси краски с воздухом на выходе из сопла, имеющая скорость звука 330 м/с (при обычно используемом давлении воздуха выше 2 атм), быстро теряет свою скорость, которая на окрашенной поверхности на расстоянии 300-400 мм от сопла по оси составляет около 10-15 м/с.
Краска наносится краскораспылителем, к которому подается краска и сжатый воздух. Сжатый воздух под давлением 2-5 кгс/м2 подается от компрессора. Краска подается по трубам или краскопультам под давлением 0,2-2,5 кгс/м2.
Распылители малярные предназначены для нанесения лакокрасочных материалов с относительной вязкостью не более 50 с по вискозиметру при температуре 18-23 0 С. 90%. Разбавители выпускаются с форсунками различного диаметра (от 1,5 до 2,5 мм) с номинальной производительностью от 100 до 500 м2 окрашиваемой поверхности в час и расходом краски 15-30 кг/ч.
В деревообрабатывающей промышленности для автоматизированной покраски дверных и оконных блоков стали широко применяться высокопроизводительные и экономичные высокопроизводительные и экономичные установки, обеспечивающие благоприятные условия труда с последующей выдержкой в парах растворителей.
Покрасочная камера для мебели — пожарная безопасность
Окрасочные участки небезопасны с точки зрения пожарной безопасности. Поэтому в покрасочных камерах должны соблюдаться все нормы и требования в области пожарной безопасности.
Покрасочные камеры всех размеров должны иметь исключительно взрывозащищенные системы вентиляции. Кроме того, для каждой покрасочной камеры требуется теплоизоляция из минеральных материалов с высокой огнестойкостью.
Покрасочная камера должна быть оборудована системой пожаротушения. В противном случае в проекте должно быть предусмотрено место для установки такой системы.
Сушильная камера отличается наличием температурного режима сушки с помощью теплообменника. Для безопасного использования теплообменник снабжен термостатом, отключающим его при перегреве.
Для электрооборудования камер требуется защитное заземление.
Пульт управления, благодаря которому осуществляется управление покрасочной камерой, должен предусматривать возможность отключения подачи сжатого воздуха, перекрытия клапана подачи.
Сушильные камеры продуваются воздухом с целью удаления горючих веществ, образующих вместе с кислородом воздуха пожароопасные смеси. Покрасочная камера, в которой используется рециркуляционный воздух, должна иметь противодавление на входе. Именно эта подложка исключает образование взрывоопасной смеси.
Купить покрасочные камеры для изделий из дерева и плит МДФ в Украине по выгодной цене
Специалисты нашего интернет-магазина «Вент-Заводы» занимаются разработкой покрасочных камер индивидуально под требования заказчика, поэтому Вам предоставляется возможность пользоваться такими услугами. Ведь только здесь:
- широкий выбор товаров;
- профессиональные консультации специалистов;
- оперативность обработки заказов;
- служба доставки во все города Украины.
Или мебель – достаточно сложный и ответственный процесс, которому чаще всего доверяют специалисты, имеющие в наличии оборудованные камеры.
Однако такое устройство вполне реально изготовить самостоятельно, при этом у вас получится не только сэкономить, но и организовать собственный бизнес. Перед началом работы необходимо ознакомиться с требованиями, которые важно соблюдать для достижения наилучшего эффекта.
Подготовительные работы
Покрасочные камеры изготавливаются с использованием определенного набора инструментов и материалов. Кроме всего прочего, важно найти помещение, в котором будет располагаться оборудование. В качестве него может выступать гараж. Запаситесь тепловентилятором, системой вентиляции и тепловой пушкой. Этот список обязателен. При расширении списка можно добавить двери, вентиляторы, ворота, светильники, панель управления и прочее. Все будет зависеть от желания и финансовых возможностей. Камера должна быть автоматизирована и иметь возможность выполнять не только покраску автомобиля или других изделий, но и их сушку. В качестве функциональной составляющей выступает приточная вентиляция, которая оснащена многоуровневыми фильтрами очистки.
Сюда входит камера покраски и дальнейшей сушки, тепловой насос, приточно-вытяжная установка и автоматика. Вентиляционное оборудование должно работать по принципу вытяжки и иметь воздушный фильтр.
Подготовка помещения
Покрасочные камеры изготавливаются с учетом требований, предъявляемых к помещению. Стены должны быть огнеупорными, моющимися и максимально герметичными. С перечисленными пунктами особых сложностей возникнуть не должно. Стены чаще всего выполнены из стали и хорошо утеплены. Два слоя, которые будут составлять основу системы, необходимо заполнить теплосберегающими безопасными материалами. Пол также нужно выполнить с учетом некоторых правил, среди них следует выделить оформление этой части помещения с использованием нескольких слоев решетчатого покрытия, которое обеспечит вытяжку воздуха. должны составлять основу запасных и входных дверей, защищающих автомобиль от пыли и других загрязнений, поступающих с улицы. Вот почему так важна герметичность. Дверь должна легко открываться, что обеспечит безопасность мастера.
Устройство системы освещения
Покрасочные камеры изготавливаются с учетом компоновки подходящей. Использование люминесцентных ламп позволяет обеспечить наилучшую видимость и отсутствие бликов и ненужных теней. По технологическим правилам освещенность должна быть от 600 до 1000 лк. Самый удачный и эффектный вариант – использование люминесцентных ламп, которые располагаются на боковых стенах и под потолком. Однако этот подход имеет некоторые недостатки; во время покраски у мастера не будет видимости нижней части автомобиля или изделия. Для того чтобы исключить ненужные блики и недостаточное освещение, нужно вдоль стены разместить большие продолговатые светильники. Покрасочные камеры изготавливаются с учетом требований к пространству, что гарантирует простоту использования. Не стоит выбирать комнату размером меньше 4 х 6 метров. Камеру рекомендуется устанавливать на бетонное основание, но стоит учитывать, что такой подход очень затратный. Можно прибегнуть к альтернативному решению, предполагающему использование в качестве основы металлического каркаса.
Под полом необходимо расположить клапан, вытяжную систему и фильтр.
Устройство системы вентиляции
Покрасочная камера должна иметь качественную систему вентиляции, так как она является одним из ключевых факторов. Система должна быть оборудована фильтром, который будет обеспечивать очистку воздуха, исключая осаждение тумана краски. В продаже есть одномоторные и двухмоторные агрегаты. Первый тип нагнетает воздух сверху, в результате чего туман оседает и выводится через специальное отверстие. Два двигателя обеспечивают нагнетание и всасывание воздуха. При изготовлении покрасочной камеры также может быть предусмотрен воздушный фильтр. Лучше всего выбрать двухфазный вариант, эта модель сможет улавливать крупные загрязнения, а также позволит избавиться от мелких частиц. Важно выбирать системы вентиляции, скорость воздушного потока которых равна предельным значениям от 20 до 25 см в секунду.
Выбор сушки для покрасочной камеры
Если будут изготавливаться чертежи которых представлены в статье, то важно снабдить ее сушкой.
Теплогенераторы, которые сегодня можно найти на рынке, работают на отработанном масле, газе и топливе. В зависимости от потребностей камеры можно предпочесть генератор разной мощности, он может быть оснащен автоматическим таймером и другим функционалом. Чаще всего используется для сушки окрашенных автомобилей и изделий. Они просты в эксплуатации и обеспечивают нужный эффект при значительных финансовых затратах.
Устройство внутреннего пространства камеры
Стоит полностью исключить наличие внутри всевозможных материалов, на которых может скапливаться пыль. Это мебель, ковры, ткани и мягкие уголки. При этом владелец сможет достаточно просто произвести уборку, обеспечив нормальное состояние внутреннего пространства.
Выбор цвета для камеры
При изготовлении кабин для покраски мебели стены и потолок чаще всего окрашивают в белый цвет. Специалисты рекомендуют использовать для этого порошковую краску. Такой подход обеспечит правильную цветопередачу, а также облегчит процесс окрашивания.
Желательно оборудовать камеру подсобным помещением, в котором будут храниться всевозможные предметы, оборудование и инвентарь.
Красильное оборудование
Если изготавливается покрасочная камера, инструкция, представленная в статье, может быть использована вами для проведения этих работ. Важно подготовить оборудование для окрашивания. Подойдут краскопульты, которые могут работать при высоком и низком давлении. Первый тип предполагает необходимость использования компрессора, который нагнетает воздух, создавая давление для окрашивания.
Что касается пневматических устройств низкого давления, то они работают на сжатом воздухе. В продаже можно найти и которые могут быть пневматическими и электрическими. Дорогостоящее оборудование представляет собой комбинированную машину, сочетающую в себе первый и второй типы устройств. Такие системы сочетают в себе лучшие характеристики безвоздушного и воздушного методов. Покрасочная камера, фото которой представлено в статье, может быть оснащена одним или несколькими вышеперечисленными устройствами.
Специалисты рекомендуют использовать безвоздушное оборудование, так как оно является наиболее оптимальным и эффективным. При этом частицы лака и краски будут распыляться из пистолета под внушительным напором.
Заключение
Если вы собираетесь создавать покрасочную камеру с водяной завесой, то вы можете использовать безвоздушное оборудование, что экономит расходуемые при работе материалы. Когда дело доходит до порошковой камеры, это экономит растворители. Данное оборудование позволяет работать с работой одномоторной вентиляции, гарантируя качественное покрытие поверхности кузова автомобиля или любого другого изделия.
Мы проектируем, производим и устанавливаем покрасочные камеры и чистые помещения всех типов и размеров! Сложные и нестандартные проекты – наша сильная сторона!
Покраска мебели является основным этапом производства, влияющим как на внешний вид, так и на эксплуатационные характеристики мебели. Качественная покраска деталей мебели невозможна без такого оборудования, как покрасочная камера для покраски мелких деталей.
Ведь камера превращает покрасочный цех в рабочую зону с приемлемыми условиями труда для персонала. Покрасочная камера для мебели Эксперт по цене 45 000 руб. Кабины с сухим фильтром и водяной завесой есть в наличии на складе производителя окрасочного оборудования «Эксперт Групп».
Камера с сухим фильтром проще и дешевле в эксплуатации, чем камера с водяной завесой, особенно это актуально на небольших производствах, где количество постов не более трех. Ведь функционирование водяной завесы связано с необходимостью постоянного слива и удаления ила с помощью специальных химикатов и оборудования. Кроме того, «Мокрая» камера потребляет электроэнергию на циркуляцию воды, что сопоставимо по затратам, а иногда и превышает затраты на замену фильтров. Рекомендуемая нами мебельная покрасочная камера является оптимальным решением для оснащения современных мастерских.
Окрасочно-сушильная установка «ЭКСПЕРТ» спроектирована в среде 3D Solid Works, вырезана из оцинкованного листа лазером, согнута в панель на гибочном станке с ЧПУ.
Окрасочно-сушильная камера — устройство местной аспирации (газоочистная установка). При расширении покрасочной камеры в отдельное помещение, которое комплектуется отапливаемой приточно-вентиляционной установкой и рециркуляционным клапаном, покрасочная камера превращается в покрасочную камеру. Покрасочная камера может быть сблокирована с покрасочными стойками, расположенными в ряд, напротив или иным образом для экономии места.
Мы готовы спроектировать и изготовить качественные покрасочные камеры для фасадов любых размеров, с различными системами обогрева (дизель, электричество, вода). Мы разработаем индивидуальный проект по оборудованию вашего участка, учтем все ваши пожелания, посоветуем оптимальную технологию, чтобы довести малярный участок до современных стандартов. И покрасочная камера «Эксперт» начнет приносить прибыль вам и вашей компании, а не отравлять жизнь вашему маляру. Заказывайте покрасочные камеры для элитной мебели на выгодных условиях.
ПОКРАСНАЯ КАМЕРА
Для начинающих — В лизинг
Купить камеру в лизинг теперь совсем не сложно.
Покрасочная камера «Эксперт», купленная в аренду, быстро вернет вложенные в нее средства и начнет приносить прибыль вам и вашей компании, ведь без покрасочной камеры сложно качественно и быстро покрасить многие детали. Камера сушки краски для мебели, которую вы можете купить у нас в различных вариантах, представляет собой эффективное оборудование, отвечающее современным стандартам. Обращайтесь к нам, если хотите использовать профессиональное оборудование для покраски мебели!
КАМИ предлагает многофункциональные и производительные покрасочные камеры с доставкой по России. Заказать оборудование вы можете на сайте нашей компании. Есть большой выбор машин и дополнительного оборудования, есть техника б/у.
Все имеющиеся камеры делятся на два типа:
Используются на крупных мебельных фабриках, работающих в несколько смен. Предназначен для нанесения морилок, грунтовок или лаков. Покраска осуществляется автоматически с помощью пневматических или безвоздушных пистолетов. Вмешательство оператора в процесс не требуется.
На сайте КАМИ представлены автоматические камеры карусельными и проходными покрасочными установками, двухцветными печатными линиями, полировальными машинами и другими.
Подразделяются на покрасочные камеры с сухой фильтрацией и с водяной завесой. Предназначен для обработки небольших партий изделий или штучной покраски. Конструкция состоит из стальной кабины, которая включает в себя встроенную систему пылеудаления, освещения и эффективной системы фильтрации. Также комплектуется дополнительными опциями в зависимости от типа лакокрасочного покрытия.
Установки сухой фильтрации просты и экономичны в обслуживании и требуют регулярной замены фильтров. Работа «мокрой» покрасочной камеры связана с постоянной циркуляцией воды. Он позволяет лучше удалить излишки лака, краски или клея с рабочей зоны. Соответственно, качество получаемого покрытия намного лучше. Мусор попадает в поддон для воды под рабочей зоной и быстро удаляется.
Купить покрасочную камеру для мебели по выгодной цене
Заказать покрасочные камеры и дополнительное оборудование к ним — пистолеты и насосы — можно на сайте КАМИ.
Перед покупкой проконсультируйтесь со специалистом компании. Сотрудник подберет тип оборудования, наиболее подходящий для вашего бизнеса. Оставляйте заявки на сайте или звоните на горячую линию.
Для многочисленных фабрик и мастерских по изготовлению мебели очень важно точно следовать дизайнерским решениям. Согласно требованиям современной моды, мебель может иметь необычный, причудливый вид и цвет. При этом качество покраски каждой детали комода или другого предмета должно быть очень высоким и выполняться быстро. Является оптимальным решением в данном случае. Для ускорения покраски перед проведением данной операции необходимо очистить изделие c.
Компания «Техсервис Веко» производит различные виды окрасочных аппаратов для различных и специфических нужд. Они отличаются исполнением, требованиями к финишному покрытию, типом лакокрасочного покрытия, которое вы планируете использовать. Размер камеры небольшой, мощность установленного оборудования тоже не очень высокая. Но было бы ошибкой думать, что устройство простое.
Наоборот, работа организована хитро: чем меньше изделие, тем тщательнее наносится покрытие.
Пройденные этапы развития
Если ваша мебельная мастерская еще маленькая и изделия редко красятся, есть смысл приобрести и установить обычный вытяжной шкаф. Может быть оборудован водяным экраном (водяной завесой) или блоком сухой фильтрации. Разумеется, в данном устройстве отсутствует принудительная вентиляция и герметичная кабина, что оставляет возможность попадания частиц пыли на окрашенную поверхность. Возможно оборудовать помещение приточно-вытяжным шкафом для забора воздуха. В результате получилась покрасочная станция. Несмотря на приемлемую стоимость поста, мебель выгоднее. Они полностью герметичны – попадание даже мельчайших частиц пыли полностью исключено. Стены кабины, утепленные специальным материалом, позволяют поднять в ней температуру до необходимых параметров. В среднем температура устанавливается от 20 до 70 градусов, но в особых случаях может подниматься до 250-300.
Такие устройства более востребованы на крупных заводах, где требуется совместить качество покрытия и скорость производства.
Следующим шагом в эволюции покрасочных участков стало объединение процессов покраски и сушки в единый комплекс. Этот шаг значительно ускорил процесс нанесения покрытия и оптимизировал потребление энергии. Работа комплекса делится на покраску и сушку без траты времени и электроэнергии на перепрограммирование. Камера покраски мебели потребляет заранее рассчитанное количество электроэнергии без скачков, возникающих в момент перехода с одного режима на другой. Кроме того, нет необходимости останавливать рабочие процессы, ожидая перехода устройства в заданный режим. При больших объемах покраски в малярном участке может быть несколько комплексов, настроенных на разные виды ЛКМ. Специалисты нашей компании проведут монтаж устройств и настройку необходимых параметров.
Более подробную информацию о разнообразии покрасочных камер производства «Техсервис Веко» Вы можете получить, позвонив по телефону, указанному выше. Ищете экономичное и эффективное оборудование? Специально для вас сотрудники Weko соберут комплект оборудования! Позвоните нам!
Завершенные проекты камер для покраски мебели:
Как сделать поворотный стол для покрасочной камеры своими руками
Привет, ребята! Если вы когда-нибудь красили что-либо из баллончика, этот пост для вас. Сегодня я собираюсь показать вам, как сделать поворотный стол для покрасочной камеры своими руками, или некоторые могут назвать его ленивой сьюзан для окраски распылением. Это очень простой и легкий в реализации проект, но он имеет огромное значение при распылении отделки (краски, прозрачного покрытия, полиуретана и т. д.) на ваших проектах. И все, что вам нужно, это оборудование на 5 долларов и немного фанеры.
Вы устанавливаете свой проект на проигрыватель и можете свободно вращать его на 360 градусов.
Вместо того, чтобы перемещаться по всему проекту, пытаясь проникнуть во все уголки, вы просто стоите на одном месте и вращаете ленивую базу Сьюзен. Круто то, что эту идею можно масштабировать до любого размера, который вам нужен, и это упростит распыление ваших проектов.
Для этого поста я сотрудничал с HomeRight, чтобы использовать их укрытия для покраски в сочетании с поворотным столом для покрасочной камеры. Я покажу вам, как я их использовал после того, как пройдусь по сборке ленивой сьюзан и насколько они удобны. И как ни странно, у моей подруги Кэти из Addicted2DIY была точно такая же идея, как и у меня. Она делится своей версией в рамках своей сборки классной доски «Сделай сам». Вы можете проверить версию Кэти, чтобы узнать о другом подходе к этому проекту.
Прежде чем мы начнем, обязательно подпишитесь на меня в Instagram, Facebook, YouTube и Pinterest, чтобы быть в курсе всех моих последних сборок и бесплатных проектов!
Вот что вам понадобится для проекта:
Используемые инструменты
- Малый аэрозольный приют HomeRight
- Насадка-распылитель HomeRight
- Приспособление для карманных отверстий
- Лицевой зажим
- Настольная пила (или циркулярная пила)
- Аккумуляторная дрель
- Головоломка
- Шлифовальный станок
Материалы/Принадлежности
- Фанера 24″ x 24″ 3/4″
- 6-дюймовая ленивая фурнитура
- Пирамида художника
- Винты с потайным отверстием 1-1/4″
- Винты с полукруглой головкой 5/8″
На этой странице используются партнерские ссылки.
См. мою страницу раскрытия информации о партнерских программах.
[vc_separator]
Я же говорил вам, что это очень простой проект, и я вас не разочарую. Все это сделано из одной фанерной панели размером 24″x24″ 3/4″. Это отличное применение для оставшихся отходов, или вы можете купить их в большом ящике по очень низкой цене. Моя ленивая Сьюзен имеет квадрат 16 дюймов, но вы можете использовать этот метод практически для любого размера.
Сборка основания поворотного стола окрасочной камеры
Из проектной панели размером 24 дюйма вырежьте квадрат размером 16 x 16 дюймов. Один из обрезков будет полосой длиной 16 дюймов и шириной чуть менее 8 дюймов, это будет ваша основная базовая часть. Другой отросток должен быть 24 дюйма в длину и чуть меньше 8 дюймов. Отрежьте от полоски 2 куска размером 4″ x ~8″ каждый.
Вы останетесь с этими кусочками.
С помощью шаблона для отверстий в карманах просверлите 2 отверстия в карманах на одной длинной стороне каждой детали размером 4″ x 8″.
Отцентрируйте и прикрепите детали к основному основанию с помощью винтов с потайной головкой 1-1/4″.
Скругленные углы и крепление Lazy Susan Hardware
Чтобы избежать ударов об острые края, скруглите углы распылительной платформы, а также основания. Я использовал чашку, чтобы наметить кривые на платформе, вырезал их лобзиком, а затем отшлифовал заподлицо с помощью шлифовальной машины.
Аппаратное обеспечение, которое я использую, представляет собой 6-дюймовое оборудование Lazy Susan. Это всего 5 долларов, так что это не лучший в мире, но идеально подходит для этого приложения. Чтобы установить оборудование, начните с рисования линий по центру каждой стороны основания и платформы, чтобы сформировать знаки «плюс». Выровняйте отверстия в основании так, чтобы линии проходили под центром каждого отверстия.
Прикрепите оборудование к основанию винтами с полукруглой головкой 5/8″.
Затем поверните верхнюю часть оборудования на 45 градусов, чтобы она образовала 8-конечную звезду. Используйте карандаш, чтобы отметить расположение больших отверстий на деревянной основе.
Отодвиньте оборудование в сторону и используйте сверло 1/2″, чтобы просверлить основание в местах, которые вы только что отметили. Вы будете использовать эти отверстия для крепления оборудования к верхней части через мгновение.
Поднимите основание и поверните оборудование для ленивой сьюзен так, чтобы вы могли видеть монтажные отверстия в верхней части через отверстия для доступа, которые вы только что просверлили. Положите основание вверх дном и выровняйте монтажные отверстия так, чтобы они перекрывали линии карандаша, которые вы только что нарисовали, как раньше.
Используйте винты с полукруглой головкой 5/8 дюйма, чтобы прикрепить основание к верхней части через монтажные отверстия.
И все! Как я уже сказал, очень просто.
Опрыскивание мелких предметов с помощью поворотного стола
Преимущество самодельного поворотного стола для покрасочной камеры заключается в том, что вы можете использовать его как для небольших, так и для крупных работ. Я специально сделал этот размер для работы с новым небольшим укрытием от брызг от HomeRight. Это складная покрасочная камера, которую можно установить за считанные секунды, и она предотвращает разбрызгивание брызг по всему цеху. Вот как это выглядит прямо из сумки.
Когда вы снимаете ремешок, он мгновенно выдвигается и дает вам покрасочную камеру прямо в вашем магазине, которую вы можете поставить на плоскую поверхность. Он отлично работал на этой небольшой рабочей поверхности, которая стоит на моих козлах.
Я поместил ленивую Сьюзен в укрытие от брызг и использовал некоторые из этих малярных пирамид, чтобы поднять заготовку над поверхностью.
Это позволяет мне распылять со всех сторон, кроме нижней, не касаясь изделия.
Просто поворачивайте поворотный стол покрасочной камеры во время распыления, и когда вы закончите, вы можете дать ему высохнуть в укрытии от брызг, что также помогает защитить его от пыли.
через GIPHY
Опрыскивание больших объектов с помощью поворотного стола
Маленькое укрытие от брызг вмещает предмет приличного размера, но если вам нужно сделать что-то большее, например, шкаф или большой стол, вы также можете использовать для этого поворотный стол. HomeRight также прислал мне свое большое укрытие от брызг, которое я использую снаружи. Для настройки требуется немного. В первый раз у меня ушло около 15 минут, а во второй всего около 10 минут.
После установки вы можете стоять внутри укрытия от брызг во время опрыскивания. Если вам нужно использовать поворотный стол для покрасочной камеры с более крупными деталями, вы можете построить больший поворотный стол или просто положить большую доску для отходов поверх устройства, удерживаемую на месте с помощью двустороннего скотча.
Это сработало отлично, когда я распылил эти части деревенской тачки, и я смог быстро справиться с работой.
И я думаю, что одной из самых крутых особенностей укрытия от брызг является сетчатый экран спереди. После того, как вы распылите пальто, вы можете опустить сетчатый экран, и комбинация палатки и сетки предотвратит попадание всех листьев и жуков, пока вы закончите сушку. Это действительно замечательная функция и основная причина, по которой я использую палатку.
Вот и все! Теперь вы знаете, как сделать свой собственный поворотный стол для покрасочной камеры своими руками, и я надеюсь, что это поможет вам быстрее закончить проекты. Чтобы узнать о других замечательных постройках магазина, перейдите на мою страницу «Проекты магазина».
Компания HomeRight предоставила мне товар и/или денежную компенсацию в качестве спонсора этой сборки. Все мнения являются моими собственными и не фильтруются спонсором.
Как построить покрасочную камеру
Вам нравится красить мебель или шкафы, как и мне, но вы беспокоитесь о перерасходе краски и пыли? Тогда вам нужна покрасочная камера, и сегодня я здесь, чтобы показать вам, как вы можете построить ее самостоятельно.
Я работаю над тем, чтобы обустроиться в своем новом магазине, и мне нравится все пространство, с которым мне приходится работать, но я изо всех сил пытался найти лучший способ настроить вещи для использования. мой краскораспылитель. Заманчиво выровнять дверцы шкафа и распылить все пространство, которое у меня есть, но проблему пыли и избыточного распыления краски нельзя игнорировать. Раньше я устанавливал барьер для избыточного распыления с помощью моего удивительного Zipwall (который я люблю и до сих пор использую, когда опрыскиваю кухни — он прекрасно защищает от пыли и избыточного распыления везде ). Кроме того, его очень легко настроить, что значительно экономит время. Однако в моем новом помещении потолки в моем магазине слишком высоки, чтобы я мог использовать Zipwall, поэтому мне приходится придумывать другой способ установки покрасочной камеры и удержания пыли и излишков краски. Итак, сегодня я собираюсь поделиться с вами своими знаниями о том, как построить покрасочную камеру.
Давайте начнем с быстрого списка поставок. Вот что вам понадобится:
- Навес 10×10
- Пластиковая пленка – толщина 4-6 мл
- Канифольная бумага
- Малярная лента
- Воздушные фильтры
- Коробчатый вентилятор(ы)
Давайте сначала взглянем на мой магазин, чтобы вы имели представление о логистике всего этого. Вот вид, когда я вхожу со стороны двери гаража.
А это с противоположного конца магазина. Хорошей новостью является то, что у меня есть отличный источник свежего воздуха с дверью. Опять же, вы заметите потолки и то, как они не поддаются моему Zipwall. Слишком высоко, и куча вещей на пути туда. Время для плана Б.
Мне нужно было что-то, что могло бы удерживать избыточное напыление, а это также означало, что мне нужна была какая-то «крыша», чтобы удерживать все внутри. Именно здесь на сцену выходит навес для улицы. Я предлагаю купить один с прямыми ногами, а не с угловыми, так как проще добавить пластиковую пленку к прямой конструкции, чем к угловой (здесь я говорю из личного опыта).
Итак, что-то в этом роде будет работать — купол 10×10.
Отсюда я использовал пластиковую пленку, чтобы добавить боковые стороны. Убедитесь, что вы используете защитное покрытие, которое имеет некоторый вес, так как вы не хотите рисковать тем, что оно порвется или легко развеется. Чем выше количество ML, тем толще пленка, поэтому я бы рекомендовал около 4-6 ML — это солидная толщина, которая создаст прочный барьер. Вам понадобится на три стороны навеса.
Вы также должны быть уверены, что покрыли пол канифольной бумагой или чем-то в этом роде и заклеили ее малярным скотчем.
Отсюда мне нужно было подумать о вентиляции и притоке воздуха. У меня есть дверь гаража, чтобы впустить свежий воздух, но я также добавил вентиляторы, чтобы помочь с циркуляцией воздушного потока. Простые коробочные вентиляторы сделают свое дело.
Вам также понадобятся воздушные фильтры — в итоге я использовал два воздушных фильтра меньшего размера — 16x20x1.
Вот как я обустраиваю свое пространство. Я настоятельно рекомендую, чтобы кто-нибудь помог вам установить палатку. Это определенно работа для двух человек (как сказал кто-то, кто собирал ее сам).
Отсюда я прикрепил пластик к бокам палатки — в верхней части палатки есть маленькие застежки-липучки, поэтому я хорошо использовал их, чтобы удерживать брезент на месте.
Затем я заклеил оставшиеся открытые участки скотчем, чтобы плотнее прилегать. Я также выделил место в задней части покрасочной камеры для своих фильтров. Я знаю, что это некрасиво, но это работает. Обратите внимание, что в нижней части пластик имеет провисание, поэтому пыль краски и брызги краски не могут выйти.
Вот вид на заднюю сторону покрасочной камеры. Коробчатый вентилятор снаружи помогает вытягивать поток воздуха, а фильтры предотвращают засорение вентилятора пылью краски.
Я добавил еще один корпусной вентилятор снаружи покрасочной камеры, чтобы обеспечить приток свежего воздуха (через открытую дверь гаража).
Как я уже сказал, моей целью было свести к минимуму пыль и брызги краски. Я поставил сушилки за покрасочной камерой, подальше от воздушного потока.
Я проверил шкафы на наличие пыли от краски с новой установкой, и они прошли испытание. Нет пыли! Ура!
Единственное, что мне нужно добавить, это дополнительное освещение. Может быть, клипса или один из тех рабочих фонарей, чтобы я мог видеть немного лучше. Но в остальном я очень доволен этой установкой!
Если бы я только заметил эту потрясающую палатку – у меня была бы огромная зона распыления (а потом место для вечеринки). 😉
Ты сейчас что-нибудь рисуешь?
Дженни
О Дженни
Я Дженни, жена с 23-летним стажем, мать троих детей, бросившая корпоративный бизнес. Я блогер с творческим складом ума, владелец бизнеса и мастер «сделай сам», и мне нравится переделывать мебель, шкафы и комнаты в моем доме. Я помешан на красках, и меня всегда поражала сила краски в создании бюджетных обновлений вашего дома.

Стены обшиваются профнастилом, а внутри утепляются, можно сделать сэндвич панели.

Для расчета мы просто перемножаем удерживающую
способность фильтра на его площадь:
15 кг/м.кв.*3,6 м.кв. = 54 кг.

Если маляр будет внутри кабины, то
ориентируйтесь на максимальные размеры окрашиваемых деталей.
1 Фундамент

Желательно оборудовать окнами восточные и южные стены. Это позволит получить больше солнечного света и тепла;
